Egerton Park, Birkenhead
Brennan Ayre O'Neill logo

Egerton Park, Birkenhead

By Brennan Ayre O'Neill

£ 275,000

Reviews

3 out of 5 stars

Brennan Ayre O'Neill says ..

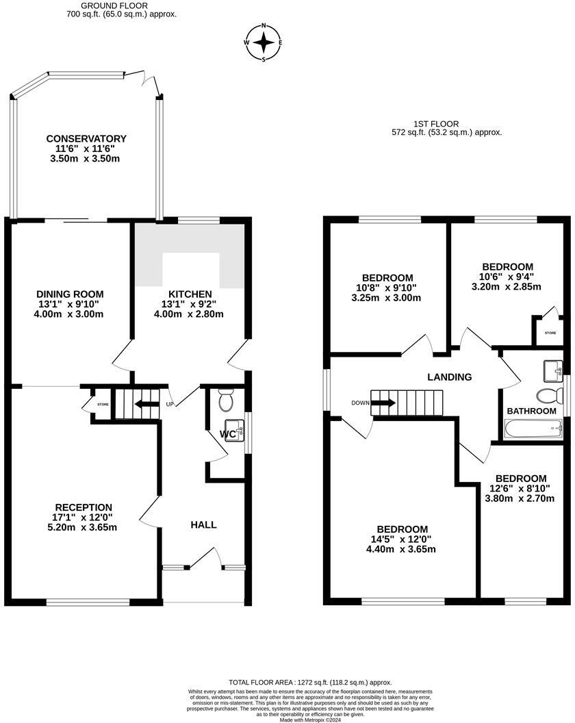
**NO CHAIN** Take a moment to appreciate the potential this property offers. A spacious detached with 3 reception rooms, kitchen and WC on the ground floor whilst upstairs you will find 4 bedrooms and a bathroom. Pleasant gardens, off road gardens and garage.

Property Oracle says ..

This four-bedroom, two-bathroom detached house in Egerton Park, Rock Ferry offers potential but needs consideration. The property benefits from a good location near Rock Ferry train station and several well-regarded primary schools, making it suitable for families. The substantial garden is a significant plus. However, the interior of the property displays features which appear dated, suggesting modernisation is required. While the kitchen and bathrooms seem functional, they are not modern. The overall presentation would be improved with some updates. The property is listed at £275,000. This price point must be analysed carefully against comparable properties in the area which have a significant price range. More detailed information on local amenities and more comparable properties would support a more definitive analysis. Buyers should factor in the cost of potential renovations when evaluating this property.

Therefore, we give this property 6 / 10. *Disclaimer: This is our option and does constitute a recommendation or financial advice. Do your own research. *

Price
7
Condition
5
Location
7
Land
6
Bedrooms
4
Bathrooms
2
Sqft (est)
1,272.29

The heatmap indicates the level of crime in the area. The color of the heatmap indicates the crime severity and recency.

Metrics Year-on-Year

Average area value
248,333.00 £
Increased by 73.97 %
from 142,743.00 £
Est sale value
260,819.45 £
Increased by 22.02 %
from 213,744.72 £
Average area rental value
733.00 £/mo
Increased by 10.39 %
from 664.00 £/mo
Est letting value
0.00 £/mo
from 0.00 £/mo
Est rental Yield
3.54 %
Decreased by 36.56 %
from 5.58 %
Crime Rate
5.00 %
Unchanged by 0.00 %
from 5.00 %

Agent Activity

  • Brennan Ayre O'Neill created the listing.

Nearby Schools

NameTypeOfstedDistance
Well Lane Primary SchoolCommunity SchoolGood0.62 KM
Bedford Drive Primary SchoolCommunity SchoolGood0.64 KM
Prenton High School For GirlsAcademy ConverterGood0.83 KM
St Anne'S Catholic Primary SchoolVoluntary Aided SchoolGood0.91 KM
Rock Ferry Primary SchoolCommunity SchoolGood1.00 KM

Images

DSC_0004.jpg DSC_0007.jpg DSC_0021.jpg DSC_0014.jpg DSC_0012.jpg DSC_0027.jpg DSC_0032.jpg DSC_0029.jpg DSC_0006.jpg DSC_0019.jpg DSC_0018.jpg DSC_0023.jpg DSC_0031.jpg DSC_0035.jpg DSC_0036.jpg DSC_0037.jpg DSC_0038.jpg DSC_0039.jpg DSC_0040.jpg DSC_0034.jpg DJI_0972.jpg DSC_0008.jpg DSC_0042.jpg DSC_0028.jpg DSC_0033.jpg DJI_0973.jpg IMG_0146.jpg IMG_0149.jpg IMG_0150.jpg IMG_0147.jpg DSC_0007.jpg DSC_0001.jpg DSC_0012.jpg DSC_0002.jpg DSC_0003.jpg DSC_0009.jpg DSC_0006.jpg DSC_0013.jpg DSC_0014.jpg DSC_0015.jpg DSC_0016.jpg DSC_0018.jpg DSC_0011.jpg DSC_0008.jpg DSC_0005.jpg DSC_0019.jpg

Nearby Streets

NameAverage PriceAverage SqftDistance
Well Lane £ 000.00 KM
Richardson Road £ 130,00000.00 KM
Meadow Lane £ 000.00 KM
Shakespeare Avenue £ 000.00 KM
Victoria Park Road £ 000.00 KM

Nearby Transport

NameNLCTLCDistance
Rock Ferry2189RFY0.87 KM
Green Lane2218GNL1.48 KM
Birkenhead Central2217BKC2.05 KM
Bebington2188BEB2.12 KM
Conway Park3624CNP2.64 KM

Nearby Listings

AddressPriceTypeScoreDistance
Egerton Park, Birkenhead £ 275,000BUY6 / 100.00 KM
Egerton Park, Rock Ferry, Wirral £ 80,000BUY6 / 100.06 KM
Egerton Park, New Ferry, Wirral £ 40,000BUY4 / 100.06 KM
Delyn Close, Birkenhead, CH42 £ 215,000BUY7 / 100.07 KM
Egerton Park, Birkenhead £ 90,000BUY6 / 100.07 KM

Nearby Properties

AddressPriceDistance
41 Egerton Park £ 158,0000.07 KM
25 Egerton Park £ 320,0000.07 KM
25a Egerton Park £ 325,0000.07 KM
23 Egerton Park £ 42,0000.07 KM
1 Delyn Close £ 150,0000.07 KM