Cedar Grove, London
NO

Cedar Grove, London

By Northfields

£ 350,000

Reviews

3 out of 5 stars

Northfields says ..

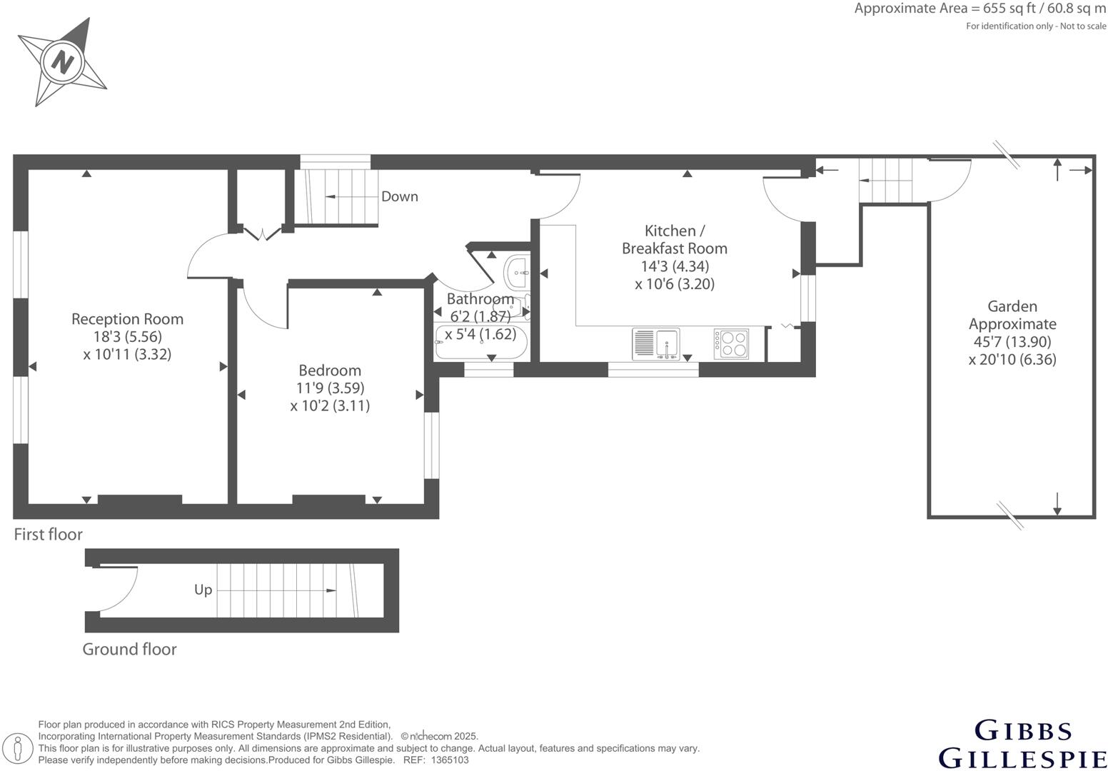
Introducing a unique opportunity to acquire this charming one bedroom maisonette located on Cedar Grove, W5. Nestled on a quiet residential street, this home features a large reception room, large bedroom, a spacious tiled kitchen and providing a solid foundation for a modern makeover. The privat...

Property Oracle says ..

This is a one-bedroom apartment located in Ealing Common, London. The property is listed for £350,000 and has a square footage of 50.47. While the location is desirable, the property appears to be in need of renovation. It does, however, benefit from a garden, which is a plus for city living. The price seems reasonable given the location and size, but potential buyers should factor in the cost of renovations.

Therefore, we give this property 6 / 10. *Disclaimer: This is our option and does constitute a recommendation or financial advice. Do your own research. *

Price
7
Condition
5
Location
7
Land
7
Bedrooms
1
Bathrooms
1
Sqft (est)
50.47

The heatmap indicates the level of crime in the area. The color of the heatmap indicates the crime severity and recency.

Metrics Year-on-Year

Average area value
683,580.00 £
Decreased by 10.48 %
from 763,602.00 £
Est sale value
39,518.01 £
Increased by 44.46 %
from 27,354.74 £
Average area rental value
2,333.00 £/mo
Increased by 12.11 %
from 2,081.00 £/mo
Est letting value
100.94 £/mo
Increased by 100.00 %
from 50.47 £/mo
Est rental Yield
4.10 %
Increased by 25.38 %
from 3.27 %
Crime Rate
1.00 %
Unchanged by 0.00 %
from 1.00 %

Agent Activity

  • Northfields created the listing.

Nearby Schools

NameTypeOfstedDistance
Grange Primary SchoolCommunity SchoolGood0.51 KM
University Of West LondonHigher Education InstitutionsGood0.55 KM
Grange Children'S CentreChildren's Centre Linked Site0.58 KM
Mount Carmel Catholic Primary SchoolVoluntary Aided SchoolGood1.00 KM
Little Ealing Primary SchoolCommunity SchoolGood1.04 KM

Images

1365103-1-68e6323... 1365103-12-68e633... 1365103-15-68e633... 1365103-13-68e633... 1365103-8-68e632f... 1365103-9-68e6331... 1365103-11-68e633... 1365103-10-68e633... 1365103-6-68e6327... 1365103-4-68e6325... 1365103-3-68e6324... 1365103-5-68e6327... 1365103-7-68e632d... 1365103-2-68e6323... 1365103-14-68e633...

Nearby Streets

NameAverage PriceAverage SqftDistance
Maple Grove £ 000.00 KM
Pope's Lane £ 649,97500.00 KM
Roberts Alley £ 000.00 KM
Liverpool Road £ 700,00000.00 KM
South Road £ 780,00000.00 KM

Nearby Transport

NameNLCTLCDistance
Ealing Broadway3190EAL1.37 KM
Brentford5552BFD1.96 KM
Kew Bridge5593KWB2.08 KM
West Ealing3188WEA2.49 KM
Gunnersbury5588GUN3.04 KM

Nearby Listings

AddressPriceTypeScoreDistance
Cedar Grove, London £ 350,000BUY6 / 100.00 KM
Cedar Grove, Ealing £ 499,999BUY6 / 100.07 KM
Cedar Grove, South Ealing, London, ., W5 4AT £ 350,000BUY8 / 100.09 KM
Ash Grove, Ealing £ 425,000BUY6 / 100.16 KM
Ash Grove, Ealing £ 425,000BUY7 / 100.16 KM

Nearby Properties

AddressPriceDistance
66 Cedar Grove £ 510,0000.01 KM
84 Cedar Grove £ 575,0000.01 KM
82 Cedar Grove £ 362,0000.01 KM
88 Cedar Grove £ 375,0000.01 KM
78a Cedar Grove £ 500,0000.01 KM