Syr Dafydd Avenue, OAKDALE, NP12
By Cariad Property
£ 199,999
Reviews
3 out of 5 stars
Cariad Property says ..
SUPERB FAMILY HOME! Traditional attractive design, popular village position, three bedrooms, two WCs, large, fitted kitchen, garage to the rear, a real gem.
Property Oracle says ..
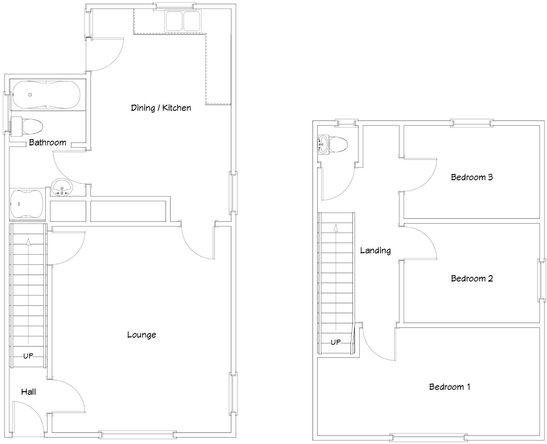
The property is a 3-bedroom end of terrace house located on Syr Dafydd Avenue in Oakdale, Caerphilly, Wales. The list price is £199,999. Based on the provided images, the property appears to be in good condition. The interior has been recently decorated and modernised, with updated bathrooms and kitchen. There is evidence of some traditional features, but the overall style leans towards modern. The exterior also appears well-maintained. The property benefits from a garden, which appears to include a pond and shed. The size isnt specified but it seems relatively sizeable for an end of terrace property in this area. Considering the average house price in the area is £253,462 and the average price per square foot is £322, the asking price of £199,999 for this 857.88 sqft property seems reasonable, potentially even slightly below average. However, the lack of plot size information makes a definitive statement on value difficult. The nearby comparable properties on Syr Dafydd Avenue show a range of prices, with some significantly lower than the listing price and others higher. This suggests that the price is competitive within the immediate vicinity. The proximity to schools and transportation links could also positively influence the property’s value. The property is located near several primary and secondary schools, and is within reasonable distance of several train stations. This makes it a potentially desirable location for families.
Therefore, we give this property 7 / 10. *Disclaimer: This is our option and does constitute a recommendation or financial advice. Do your own research. *
- Price
- 7
- Condition
- 8
- Location
- 7
- Land
- 7
- Bedrooms
- 3
- Bathrooms
- 2
- Sqft (est)
- 857.88
The heatmap indicates the level of crime in the area. The color of the heatmap indicates the crime severity and recency.
Metrics Year-on-Year
- Average area value
- 333,429.00 £Increased by 23.91 %
- Est sale value
- 245,353.68 £Increased by 10.85 %
- Average area rental value
- 995.00 £/moIncreased by 7.57 %
- Est letting value
- 0.00 £/mo
- Est rental Yield
- 3.58 %Decreased by 13.32 %
- Crime Rate
- 57.00 %Unchanged by 0.00 %
Agent Activity
Cariad Property marked this listing as sold.
Cariad Property created the listing.
Nearby Schools
| Name | Type | Ofsted | Distance |
|---|---|---|---|
| Rhiw Syr Dafyedd Primary | Welsh Establishment | 0.35 KM | |
| Pontllanfraith Primary School | Welsh Establishment | 2.75 KM | |
| Libanus Primary School | Welsh Establishment | 2.89 KM | |
| Blackwood Comprehensive School | Welsh Establishment | 3.14 KM | |
| Blackwood Primary School | Welsh Establishment | 3.26 KM |
Images
Nearby Streets
| Name | Average Price | Average Sqft | Distance |
|---|---|---|---|
| Harp Field | £ 263,500 | 0 | 0.00 KM |
| Cae'R Garreg | £ 0 | 0 | 0.00 KM |
| Cae'r Hen Dy | £ 0 | 0 | 0.00 KM |
| B4251 | £ 599,950 | 0 | 0.00 KM |
| Pen-Y-Groes | £ 315,000 | 0 | 0.00 KM |
Nearby Transport
| Name | NLC | TLC | Distance |
|---|---|---|---|
| Newbridge | 9919 | NBE | 4.14 KM |
| Llanhilleth | 9916 | LTH | 5.09 KM |
| Gilfach Fargoed | 4022 | GFF | 5.49 KM |
| Bargoed | 4011 | BGD | 5.96 KM |
| Pengam | 4021 | PGM | 5.99 KM |
Nearby Listings
| Address | Price | Type | Score | Distance |
|---|---|---|---|---|
| Syr Dafydd Avenue, OAKDALE, NP12 | £ 199,999 | BUY | 7 / 10 | 0.00 KM |
| Syr Dafydd Avenue, OAKDALE, NP120LA | £ 179,995 | BUY | 7 / 10 | 0.00 KM |
| Tir-berllan, OAKDALE, NP12 | £ 315,000 | BUY | 7 / 10 | 0.10 KM |
| Tir-Berllan, Oakdale, NP12 | £ 290,000 | BUY | 7 / 10 | 0.10 KM |
| Tir-Berllan, Oakdale, Blackwood | £ 305,000 | BUY | 7 / 10 | 0.10 KM |
Nearby Properties
| Address | Price | Distance |
|---|---|---|
| 36 Syr Dafydd Avenue | £ 105,000 | 0.00 KM |
| 2 Syr Dafydd Avenue | £ 122,000 | 0.00 KM |
| 1 Syr Dafydd Avenue | £ 114,950 | 0.00 KM |
| 29 Syr Dafydd Avenue | £ 112,000 | 0.00 KM |
| 31 Syr Dafydd Avenue | £ 29,250 | 0.00 KM |