Adams Real Estate says ..
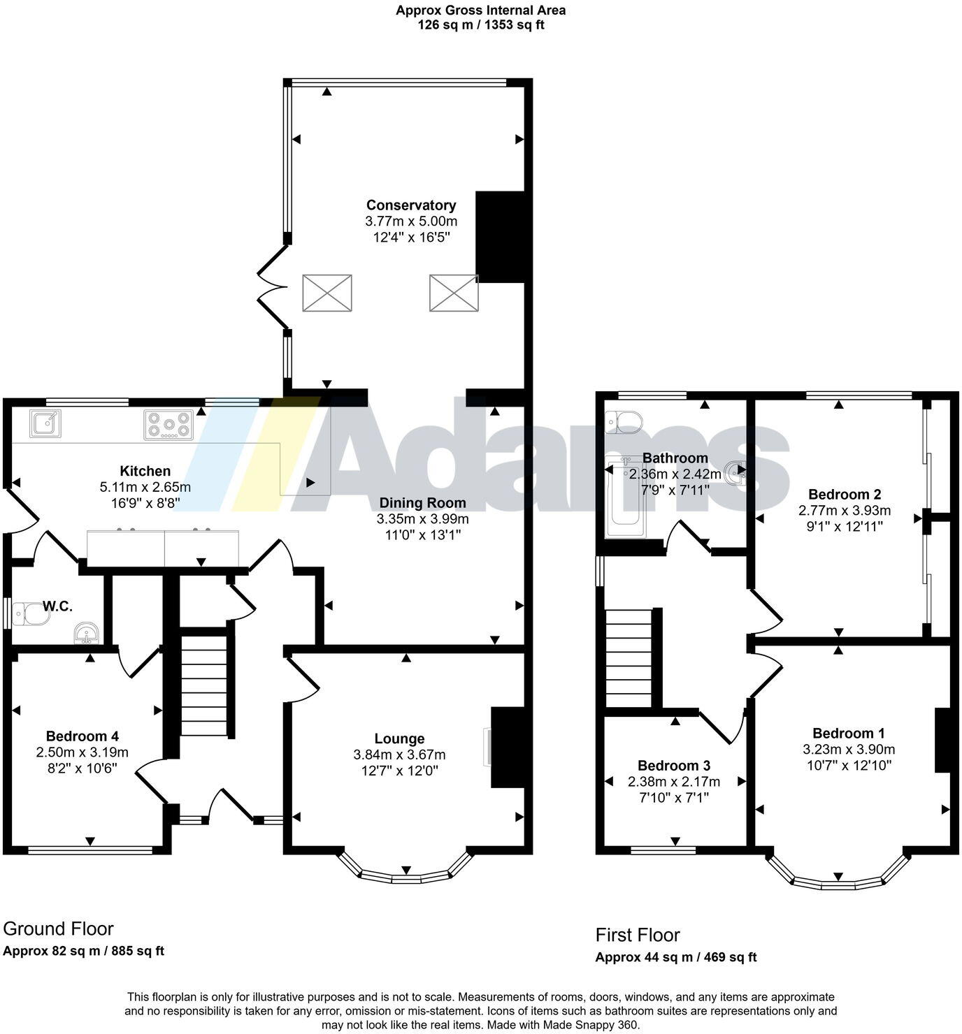
**FOUR BEDROOMS. SEMI DETACHED. STYLISH OPEN PLAN LIVING. MOVE IN READY. EARLY VIEWING ADVISED. FREEHOLD TENURE. OFF ROAD PARKING.**
Property Oracle says ..
Therefore, we give this property 7 / 10. *Disclaimer: This is our option and does constitute a recommendation or financial advice. Do your own research. *
- Price
- 6
- Condition
- 8
- Location
- 7
- Land
- 7
- Bedrooms
- 4
- Bathrooms
- 2
The heatmap indicates the level of crime in the area. The color of the heatmap indicates the crime severity and recency.
Metrics Year-on-Year
- Average area value
- 290,444.00 £Increased by 45.57 %
- Average area rental value
- 1,060.00 £/moIncreased by 29.74 %
- Est rental Yield
- 4.38 %Decreased by 10.79 %
- Crime Rate
- 8.00 %Unchanged by 0.00 %
from 199,519.00 £
from 817.00 £/mo
from 4.91 %
from 8.00 %
Agent Activity
Adams Real Estate created the listing.
Nearby Schools
| Name | Type | Ofsted | Distance |
|---|---|---|---|
| Westfield Primary School | Community School | Requires improvement | 0.44 KM |
| Victoria Road Primary School | Community School | Good | 0.74 KM |
| Runcorn All Saints Cofe Primary School | Voluntary Aided School | Good | 0.92 KM |
| St Clement'S Catholic Primary School | Voluntary Aided School | Good | 0.92 KM |
| Weston Point College | Other Independent Special School | Good | 0.97 KM |
Images
Nearby Streets
| Name | Average Price | Average Sqft | Distance |
|---|---|---|---|
| Cavendish Street | £ 0 | 0 | 0.00 KM |
| Whitley Close | £ 0 | 0 | 0.00 KM |
| Brindley Street | £ 0 | 0 | 0.00 KM |
| Wellington Street | £ 70,000 | 0 | 0.00 KM |
| Coombe Drive | £ 0 | 0 | 0.00 KM |
Nearby Transport
| Name | NLC | TLC | Distance |
|---|---|---|---|
| Runcorn | 2291 | RUN | 0.27 KM |
| Widnes | 2391 | WID | 4.71 KM |
| Frodsham | 2284 | FRD | 4.92 KM |
| Hough Green | 2303 | HGN | 5.51 KM |
| Helsby | 2149 | HSB | 7.63 KM |
Nearby Listings
| Address | Price | Type | Score | Distance |
|---|---|---|---|---|
| Roland Avenue, Runcorn | £ 210,000 | BUY | Unknown | 0.00 KM |
| Roland Avenue, Runcorn | £ 210,000 | BUY | Unknown | 0.00 KM |
| Roland Avenue, Runcorn | £ 180,000 | BUY | Unknown | 0.00 KM |
| Roland Avenue, Runcorn | £ 300,000 | BUY | 7 / 10 | 0.00 KM |
| Roland Avenue, Runcorn, WA7 | £ 275,000 | BUY | 7 / 10 | 0.00 KM |
Nearby Properties
| Address | Price | Distance |
|---|---|---|
| 20 Roland Avenue | £ 150,000 | 0.01 KM |
| 40 Roland Avenue | £ 96,000 | 0.01 KM |
| 43 Roland Avenue | £ 124,500 | 0.01 KM |
| 47 Roland Avenue | £ 262,500 | 0.01 KM |
| 87 Roland Avenue | £ 112,500 | 0.01 KM |