45 Shakespeare Crescent, Eccles, Manchester, M30 0PB
By McHugh & Co
£ 70,000
Reviews
2 out of 5 stars
McHugh & Co says ..
LOT 49 **FOR SALE BY ONLINE AUCTION** on 22nd October 2025 Six Week Completion or Earlier Freehold House Vacant Possession
Property Oracle says ..
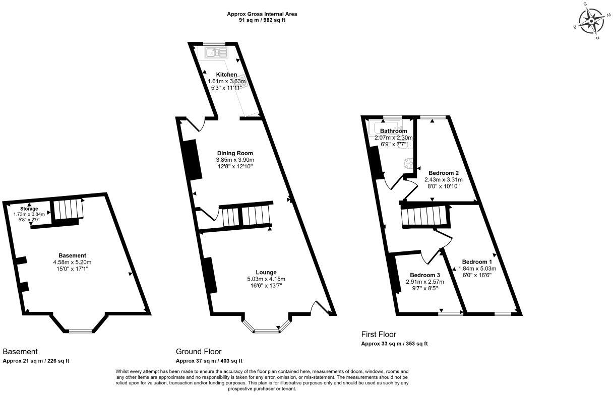
This is a three-bedroom terraced house in Eccles, Manchester. The property’s key selling point is its price, which is considerably lower than the average for the area. However, this is reflective of the property’s condition, which requires significant renovation throughout. The location is reasonably good, with access to local schools and transport links. The property includes a small garden. Overall, this property presents an opportunity for investors or those willing to undertake a comprehensive renovation project.
Therefore, we give this property 5 / 10. *Disclaimer: This is our option and does constitute a recommendation or financial advice. Do your own research. *
- Price
- 9
- Condition
- 2
- Location
- 6
- Land
- 4
- Bedrooms
- 3
- Bathrooms
- 0
The heatmap indicates the level of crime in the area. The color of the heatmap indicates the crime severity and recency.
Metrics Year-on-Year
- Average area value
- 425,000.00 £Increased by 8.28 %
- Average area rental value
- 1,208.00 £/moIncreased by 22.89 %
- Est rental Yield
- 3.41 %Increased by 13.29 %
- Crime Rate
- 0.00 %
Agent Activity
McHugh & Co created the listing.
Nearby Schools
| Name | Type | Ofsted | Distance |
|---|---|---|---|
| Lewis Street Primary School | Community School | Good | 0.46 KM |
| Christ Church Cofe Primary School | Voluntary Aided School | Good | 0.54 KM |
| Holy Cross And All Saints Rc Primary School | Voluntary Aided School | Good | 0.74 KM |
| Brambles School | Other Independent Special School | Good | 0.84 KM |
| Maple House School | Other Independent Special School | Good | 0.84 KM |
Images
Nearby Streets
| Name | Average Price | Average Sqft | Distance |
|---|---|---|---|
| Lynwood Avenue | £ 400,000 | 0 | 0.00 KM |
| Lime Street | £ 0 | 0 | 0.00 KM |
| Foundry Close | £ 0 | 0 | 0.00 KM |
| Eccles Definitive Footpath 36 | £ 0 | 0 | 0.00 KM |
| Pleasant Road | £ 300,000 | 0 | 0.00 KM |
Nearby Transport
| Name | NLC | TLC | Distance |
|---|---|---|---|
| Patricroft | 2916 | PAT | 0.85 KM |
| Eccles (Manchester) | 2950 | ECC | 1.80 KM |
| Moorside | 2799 | MSD | 3.63 KM |
| Swinton (Manchester) | 2800 | SNN | 3.77 KM |
| Urmston | 2938 | URM | 3.95 KM |
Nearby Listings
| Address | Price | Type | Score | Distance |
|---|---|---|---|---|
| 45 Shakespeare Crescent, Eccles, Manchester, M30 0PB | £ 70,000 | BUY | 5 / 10 | 0.00 KM |
| Shakespeare Crescent, Manchester, M30 | £ 150,000 | BUY | 6 / 10 | 0.06 KM |
| Shakespeare Crescent, Eccles, M30 | £ 190,000 | BUY | Unknown | 0.08 KM |
| 17 Shakespeare Crescent, Eccles, Manchester, Greater Manchester M30 0PB | £ 110,000 | BUY | 4 / 10 | 0.11 KM |
| Pembroke Avenue, Eccles, M30 | £ 300,000 | BUY | 6 / 10 | 0.17 KM |
Nearby Properties
| Address | Price | Distance |
|---|---|---|
| 15 Shakespeare Crescent | £ 170,000 | 0.04 KM |
| 14 Shakespeare Crescent | £ 132,000 | 0.04 KM |
| 16 Shakespeare Crescent | £ 152,000 | 0.04 KM |
| 19 Shakespeare Crescent | £ 165,000 | 0.04 KM |
| 21 Shakespeare Crescent | £ 107,000 | 0.04 KM |