Mansell McTaggart says ..
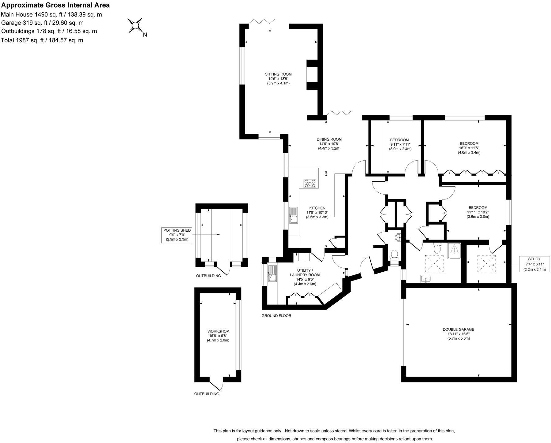
A FABULOUS 3 BEDROOM DETACHED BUNGALOW (1,490 sq ft). **EVENING + WEEKEND VIEWINGS AVAILABLE** Generous South West Corner Plot situated in a sought after Private Road.
Property Oracle says ..
This is a well-presented, modern detached bungalow in the sought-after village of Ardingly. The property benefits from a modern kitchen and bathroom, a good-sized garden, and a garage. The location is convenient for families, with a primary school within walking distance and easy access to transport links. While the price is above the average for the area, the property offers good value for money considering its size, condition, and location. The inclusion of a home office is a definite plus.
Therefore, we give this property 7 / 10. *Disclaimer: This is our option and does constitute a recommendation or financial advice. Do your own research. *
- Price
- 6
- Condition
- 8
- Location
- 7
- Land
- 7
- Bedrooms
- 3
- Bathrooms
- 1
- Sqft (est)
- 1,597.04
The heatmap indicates the level of crime in the area. The color of the heatmap indicates the crime severity and recency.
Metrics Year-on-Year
- Average area value
- 469,167.00 £Decreased by 15.00 %
- Est sale value
- 1,071,613.84 £Increased by 40.67 %
- Average area rental value
- 4,750.00 £/moIncreased by 210.86 %
- Est letting value
- 9,582.24 £/moIncreased by 500.00 %
- Est rental Yield
- 12.15 %Increased by 265.96 %
- Crime Rate
- 36.00 %Unchanged by 0.00 %
Agent Activity
Mansell McTaggart created the listing.
Nearby Schools
| Name | Type | Ofsted | Distance |
|---|---|---|---|
| St Peter'S Cofe Primary School | Voluntary Controlled School | Good | 0.75 KM |
| Ardingly College | Other Independent School | 1.30 KM | |
| Philpots Manor School | Other Independent Special School | Good | 3.24 KM |
| Lindfield Primary Academy | Academy Converter | Outstanding | 3.90 KM |
| Blackthorns Community Primary Academy | Academy Converter | Outstanding | 4.12 KM |
Images
Nearby Streets
| Name | Average Price | Average Sqft | Distance |
|---|---|---|---|
| Burstowhill Lane | £ 500,000 | 0 | 0.00 KM |
Nearby Transport
| Name | NLC | TLC | Distance |
|---|---|---|---|
| Haywards Heath | 5490 | HHE | 5.06 KM |
| Balcombe | 5492 | BAB | 6.20 KM |
| Wivelsfield | 5341 | WVF | 9.95 KM |
Nearby Listings
| Address | Price | Type | Score | Distance |
|---|---|---|---|---|
| Sumners, Ardingly, RH17 | £ 875,000 | BUY | 7 / 10 | 0.00 KM |
| College Road, Ardingly, RH17 | £ 1,450,000 | BUY | 7 / 10 | 0.03 KM |
| Munnion Road, Ardingly, RH17 | £ 562,500 | BUY | 6 / 10 | 0.18 KM |
| Monks Meadow, Ardingly, RH17 | £ 750,000 | BUY | 8 / 10 | 0.18 KM |
| Lodgelands, Ardingly | £ 525,000 | BUY | 7 / 10 | 0.21 KM |
Nearby Properties
| Address | Price | Distance |
|---|---|---|
| 17 Munnion Road | £ 295,000 | 0.09 KM |
| 3 Munnion Road | £ 400,000 | 0.09 KM |
| 19 Munnion Road | £ 430,000 | 0.09 KM |
| 7 Munnion Road | £ 290,000 | 0.09 KM |
| 1 Munnion Road | £ 610,000 | 0.09 KM |