Foxtons says ..
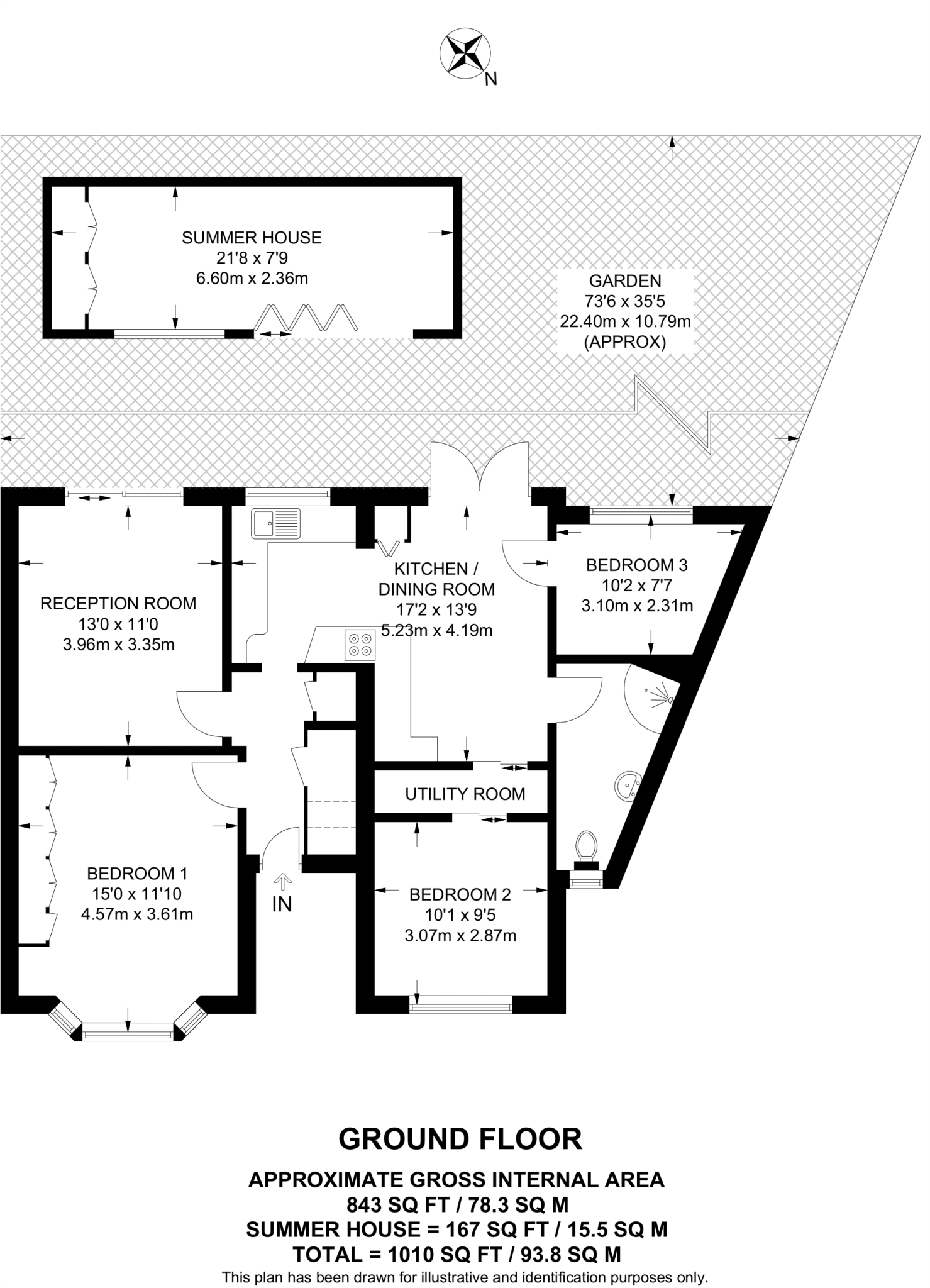
This fantastic 3 bedroom freehold ground floor apartment boasts bright and spacious living throughout with modern dine-in kitchen, amazing rear garden and summer house.
Property Oracle says ..
Therefore, we give this property 7 / 10. *Disclaimer: This is our option and does constitute a recommendation or financial advice. Do your own research. *
- Price
- 7
- Condition
- 7
- Location
- 8
- Land
- 7
- Bedrooms
- 3
- Bathrooms
- 1
- Sqft (est)
- 1,009.65
- Lot (est)
- 2,601.27
The heatmap indicates the level of crime in the area. The color of the heatmap indicates the crime severity and recency.
Metrics Year-on-Year
- Average area value
- 364,000.00 £Decreased by 29.95 %
- Est sale value
- 269,576.55 £Decreased by 53.08 %
- Average area rental value
- 1,700.00 £/moDecreased by 10.62 %
- Est letting value
- 1,009.65 £/moDecreased by 50.00 %
- Est rental Yield
- 5.60 %Increased by 27.56 %
- Crime Rate
- 1.00 %Unchanged by 0.00 %
from 519,658.00 £
from 574,490.85 £
from 1,902.00 £/mo
from 2,019.30 £/mo
from 4.39 %
from 1.00 %
Agent Activity
Foxtons created the listing.
Nearby Schools
| Name | Type | Ofsted | Distance |
|---|---|---|---|
| All Saints Benhilton Cofe Primary School | Voluntary Aided School | Good | 0.67 KM |
| Greenshaw High School | Academy Converter | Good | 0.74 KM |
| Newminster Children'S Centre | Children's Centre Linked Site | 1.07 KM | |
| Malmesbury Primary School | Community School | Good | 1.10 KM |
| Abbey Primary School | Academy Converter | 1.17 KM |
Images
Nearby Streets
| Name | Average Price | Average Sqft | Distance |
|---|---|---|---|
| All Saints Road | £ 400,000 | 0 | 0.00 KM |
| Green Lane | £ 0 | 0 | 0.00 KM |
| Rosehill Court Parade | £ 0 | 0 | 0.00 KM |
| Goodson House | £ 0 | 0 | 0.00 KM |
| Dovercourt Lane | £ 0 | 0 | 0.00 KM |
Nearby Transport
| Name | NLC | TLC | Distance |
|---|---|---|---|
| Sutton Common | 5436 | SUC | 0.83 KM |
| St Helier | 5290 | SIH | 1.65 KM |
| Sutton | 5385 | SUO | 2.08 KM |
| West Sutton | 5293 | WSU | 2.20 KM |
| Morden South | 5291 | MDS | 2.28 KM |
Nearby Listings
| Address | Price | Type | Score | Distance |
|---|---|---|---|---|
| Rose Hill Park West, Sutton, SM1 | £ 450,000 | BUY | 7 / 10 | 0.00 KM |
| Rose Hill Park West, Sutton, Surrey | £ 450,000 | BUY | 7 / 10 | 0.04 KM |
| Roseacre Close, Sutton | £ 475,000 | BUY | 7 / 10 | 0.11 KM |
| Gloucester Gardens, Sutton, SM1 | £ 350,000 | BUY | 7 / 10 | 0.15 KM |
| Gloucester Gardens, Sutton, SM1 | £ 450,000 | BUY | 6 / 10 | 0.18 KM |
Nearby Properties
| Address | Price | Distance |
|---|---|---|
| 39 Rose Hill Park West | £ 580,000 | 0.02 KM |
| 29 Rose Hill Park West | £ 651,000 | 0.02 KM |
| 59 Rose Hill Park West | £ 519,000 | 0.02 KM |
| 53 Rosehill Park West | £ 245,000 | 0.02 KM |
| 67 Rose Hill Park West | £ 447,500 | 0.02 KM |