Garden Plot 1, Wellnage, Station Road, Duns, Berwickshire, TD11
By EDWIN THOMPSON
£ 110,000
Reviews
2 out of 5 stars
EDWIN THOMPSON says ..
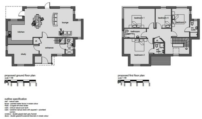
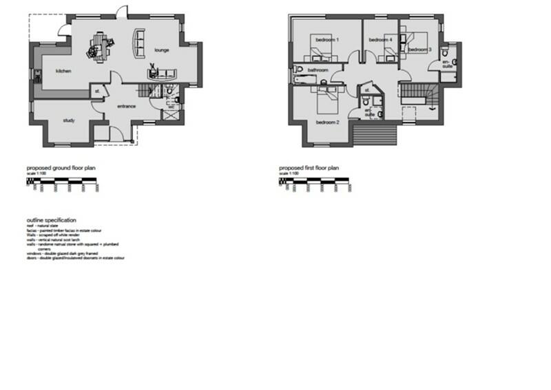
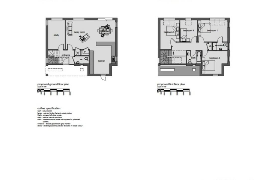
Residential Building Plot: Garden Plot 1, Wellnage, Station Road, Duns, TD11 3JEEast Facing Position, Tarmacadam Access, In Situ Views Toward Parkland, Generous Plot Size.Offers Over £110,000
Property Oracle says ..
This listing presents a residential building plot in Duns, Scottish Borders. The plot, identified as Garden Plot 1 at Wellnage, Station Road, offers an east-facing position with tarmac access and views towards parkland. The architectural plans show a proposed two-story house with four bedrooms and a study. The site benefits from what seems to be a generous plot size, suitable for a substantial dwelling. Nearby streets such as Malt Wynd and Golden Square show a range of average house prices, while Black Bull Street displays significantly higher values, suggesting a desirable area. However, information regarding schools, transportation, and the precise plot size is missing, preventing a comprehensive evaluation of the property’s specific advantages and disadvantages. The current state of the land is undeveloped, meaning a significant investment in building is required. While the listing price appears to be competitive given the other plots in the area, a thorough market appraisal including square footage of both the plot and planned house is needed for a definitive judgment on value.
Therefore, we give this property 5 / 10. *Disclaimer: This is our option and does constitute a recommendation or financial advice. Do your own research. *
- Price
- 7
- Condition
- 3
- Location
- 6
- Land
- 7
- Bedrooms
- 0
- Bathrooms
- 0
The heatmap indicates the level of crime in the area. The color of the heatmap indicates the crime severity and recency.
Metrics Year-on-Year
- Average area value
- 376,133.00 £Increased by 50.19 %
- Average area rental value
- 1,250.00 £/moIncreased by 20.42 %
- Est rental Yield
- 3.99 %Decreased by 19.72 %
- Crime Rate
- 0.00 %
Agent Activity
EDWIN THOMPSON created the listing.
Images
Nearby Streets
| Name | Average Price | Average Sqft | Distance |
|---|---|---|---|
| Trinity Lane | £ 0 | 0 | 0.00 KM |
| Murray Crescent | £ 0 | 0 | 0.00 KM |
| Malt Wynd | £ 132,000 | 0 | 0.00 KM |
| Golden Square | £ 165,000 | 0 | 0.00 KM |
| Norris Close | £ 105,000 | 0 | 0.00 KM |
Nearby Listings
| Address | Price | Type | Score | Distance |
|---|---|---|---|---|
| Garden Plot 1, Wellnage, Station Road, Duns, Berwickshire, TD11 | £ 110,000 | BUY | 5 / 10 | 0.00 KM |
| Garden Plot 2, Wellnage, Station Road, Duns, Berwickshire, TD11 | £ 110,000 | BUY | 5 / 10 | 0.00 KM |
| 2 Wellnage Myre, Station Road, Duns, TD11 3FP | £ 485,000 | BUY | 8 / 10 | 0.15 KM |
| Trinity Park, Duns, Berwickshire, TD11 | £ 255,000 | BUY | Unknown | 0.24 KM |
| 18/3 Bridgend, Duns TD11 3ER | £ 110,000 | BUY | 5 / 10 | 0.41 KM |