Chancellors says ..
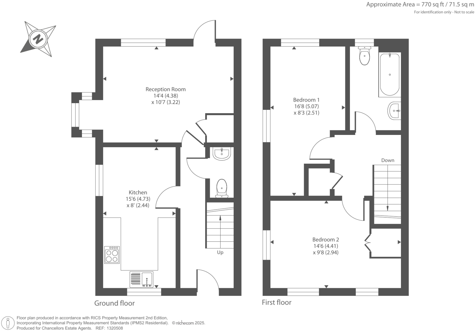
This is this well presented spacious 2 bedroom end of terrace property with 1 allocated parking space, which has been well maintained by the current vendors.
Property Oracle says ..
Therefore, we give this property 7 / 10. *Disclaimer: This is our option and does constitute a recommendation or financial advice. Do your own research. *
- Price
- 8
- Condition
- 8
- Location
- 7
- Land
- 7
- Bedrooms
- 2
- Bathrooms
- 1
The heatmap indicates the level of crime in the area. The color of the heatmap indicates the crime severity and recency.
Metrics Year-on-Year
- Average area value
- 1,258,750.00 £Increased by 38.62 %
- Average area rental value
- 2,017.00 £/moDecreased by 42.17 %
- Est rental Yield
- 1.92 %Decreased by 58.35 %
- Crime Rate
- 12.00 %Unchanged by 0.00 %
from 908,045.00 £
from 3,488.00 £/mo
from 4.61 %
from 12.00 %
Agent Activity
Chancellors created the listing.
Nearby Schools
| Name | Type | Ofsted | Distance |
|---|---|---|---|
| Octopus Children'S Centre | Children's Centre | 0.32 KM | |
| Pebbles Children'S Centre | Children's Centre | 0.32 KM | |
| The Austen Academy | Free Schools Special | 0.33 KM | |
| Marnel Junior School | Academy Sponsor Led | 0.45 KM | |
| Marnel Community Infant School | Community School | Outstanding | 0.53 KM |
Images
Nearby Streets
| Name | Average Price | Average Sqft | Distance |
|---|---|---|---|
| Wordsworth Close | £ 0 | 0 | 0.00 KM |
| Pear Tree Way | £ 0 | 0 | 0.00 KM |
| Reading Road | £ 0 | 0 | 0.00 KM |
| Walnut Way | £ 0 | 0 | 0.00 KM |
| Darcy Close | £ 400,000 | 0 | 0.00 KM |
Nearby Transport
| Name | NLC | TLC | Distance |
|---|---|---|---|
| Basingstoke | 5520 | BSK | 1.65 KM |
| Bramley (Hampshire) | 5500 | BMY | 5.91 KM |
Nearby Listings
| Address | Price | Type | Score | Distance |
|---|---|---|---|---|
| Basingstoke, Hampshire, RG24 | £ 300,000 | BUY | 7 / 10 | 0.00 KM |
| Shelley Close, Popley, Basingstoke | £ 160,000 | BUY | 6 / 10 | 0.04 KM |
| Shelley Close, Basingstoke | £ 295,000 | BUY | 6 / 10 | 0.04 KM |
| Shelley Close, Basingstoke RG24 9BZ | £ 190,000 | BUY | 5 / 10 | 0.05 KM |
| 9 Shelley Close, Basingstoke, Hampshire, RG24 9BZ | £ 225,000 | BUY | 5 / 10 | 0.05 KM |
Nearby Properties
| Address | Price | Distance |
|---|---|---|
| 43 Shelley Close | £ 160,000 | 0.04 KM |
| 43a Shelley Close | £ 122,000 | 0.04 KM |
| 39 Shelley Close | £ 225,000 | 0.04 KM |
| 44 Shelley Close | £ 137,000 | 0.04 KM |
| 33 Shelley Close | £ 150,000 | 0.04 KM |