Battle Road, St. Leonards-On-Sea
PC

Battle Road, St. Leonards-On-Sea

By PCM Estate Agents

£ 275,000

Reviews

3 out of 5 stars

PCM Estate Agents says ..

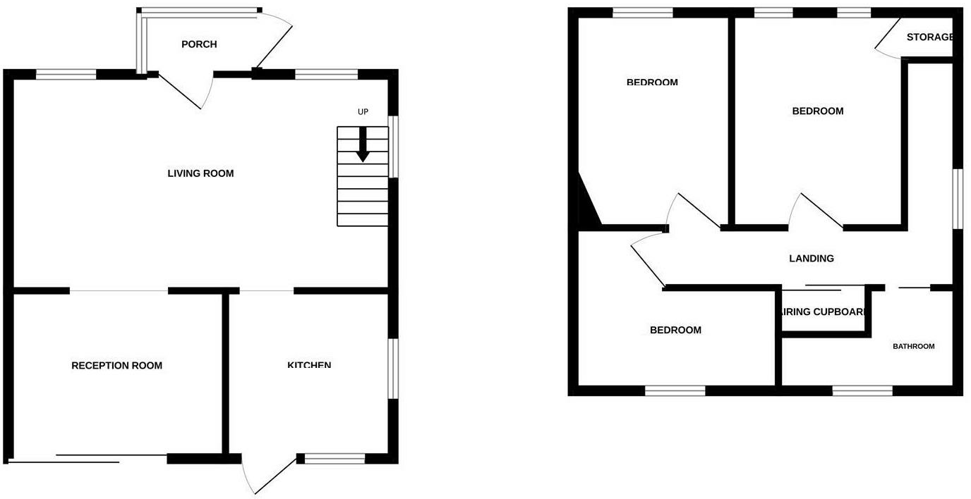
PCM Estate Agents are delighted to present to the market an opportunity to secure this CHAIN FREE DETACHED THREE BEDROOM HOUSE, TUCKED AWAY IN A QUIET POSITION, in this favourable region of St Leonards, close to popular schooling establishments and nearby amenities. The property offers ...

Property Oracle says ..

This property on Battle Road, St. Leonards-On-Sea, presents a traditional three-bedroom home with a garden. While it requires some modernization, its location near schools and transportation, combined with a competitive price, makes it an attractive opportunity. The property includes a garden with a shed, adding to its appeal. The interior features a mix of traditional elements, offering a canvas for renovation and personalization. Overall, this property offers potential for buyers looking to invest in a home with character and improve its value through upgrades.

Therefore, we give this property 6 / 10. *Disclaimer: This is our option and does constitute a recommendation or financial advice. Do your own research. *

Price
7
Condition
5
Location
7
Land
6
Bedrooms
3
Bathrooms
1
Sqft (est)
1,166.00

The heatmap indicates the level of crime in the area. The color of the heatmap indicates the crime severity and recency.

Metrics Year-on-Year

Average area value
320,226.00 £
Decreased by 3.08 %
from 330,386.00 £
Est sale value
443,080.00 £
Increased by 13.77 %
from 389,444.00 £
Average area rental value
1,231.00 £/mo
Decreased by 1.52 %
from 1,250.00 £/mo
Est letting value
1,166.00 £/mo
Unchanged by 0.00 %
from 1,166.00 £/mo
Est rental Yield
4.61 %
Increased by 1.54 %
from 4.54 %
Crime Rate
1.00 %
Unchanged by 0.00 %
from 1.00 %

Agent Activity

  • PCM Estate Agents created the listing.

Nearby Schools

NameTypeOfstedDistance
Hollington Primary AcademyAcademy ConverterGood0.19 KM
New Horizons School (Part Of The Sabden Multi Academy Trust)Academy Special ConverterOutstanding0.32 KM
Silverdale Primary AcademyAcademy ConverterGood0.98 KM
Ark Little Ridge Primary AcademyAcademy Sponsor LedGood0.99 KM
Churchwood Primary AcademyAcademy ConverterGood1.35 KM

Images

1.jpg Battle Road (38)_Alto.jpg Battle Road (45)_Alto.jpg Battle Road (32)_Alto.jpg Battle Road (46)_Alto.jpg Battle Road (8)_Alto.jpg Battle Road (12)_Alto.jpg Battle Road (35)_Alto.jpg Battle Road (53)_Alto.jpg Battle Road (43)_Alto.jpg Battle Road (4)_Alto.jpg Battle Road (21)_Alto.jpg Battle Road (27)_Alto.jpg Battle Road (16)_Alto.jpg 4.jpg Battle Road (5)_Alto.jpg Battle Road (3)_Alto.jpg Battle Road (1)_Alto.jpg Battle Road (11)_Alto.jpg Battle Road (23)_Alto.jpg Battle Road (25)_Alto.jpg Battle Road (52)_Alto.jpg Battle Road (17)_Alto.jpg Battle Road (19)_Alto.jpg 4.jpg 3.jpg 1.jpg 2.jpg DSC06108_Alto.jpg DSC06082_Alto.jpg DSC06086_Alto.jpg DSC06090_Alto.jpg DSC06083_Alto.jpg DSC06094_Alto.jpg DSC06100_Alto.jpg DSC06091_Alto.jpg DSC06096_Alto.jpg DSC06117_Alto.jpg DSC06081_Alto.jpg DSC06080_Alto.jpg DSC06078_Alto.jpg DSC06085_Alto.jpg DSC06087_Alto.jpg DSC06088_Alto.jpg DSC06098_Alto.jpg DSC06092_Alto.jpg DSC06104_Alto.jpg DSC06116_Alto.jpg DSC06114_Alto.jpg

Nearby Streets

NameAverage PriceAverage SqftDistance
Hertford Close £ 260,00000.00 KM
Newhaven Walk £ 000.00 KM
Adam Close £ 260,00000.00 KM
Ashdown House £ 000.00 KM
Tile Barn Road £ 000.00 KM

Nearby Transport

NameNLCTLCDistance
St Leonards Warrior Square5239SLQ2.83 KM
West St Leonards5242WLD3.02 KM
Hastings5219HGS3.81 KM
Ore5021ORE4.85 KM
Crowhurst5233CWU5.42 KM

Nearby Listings

AddressPriceTypeScoreDistance
Battle Road, St. Leonards-On-Sea £ 275,000BUY6 / 100.00 KM
Battle Road, St. Leonards-On-Sea £ 210,000BUY4 / 100.01 KM
Old Church Road, St Leonards-on-Sea, TN38 £ 109,950BUY6 / 100.05 KM
Battle Road, St Leonards-on-sea £ 450,000BUY6 / 100.06 KM
Hollington Old Lane, St. Leonards-On-Sea £ 220,000BUY6 / 100.11 KM

Nearby Properties

AddressPriceDistance
2 Old Church Road £ 90,0000.06 KM
220 Battle Road £ 185,0000.10 KM
226 Battle Road £ 105,0000.10 KM
230 Battle Road £ 100,0000.10 KM
246 Battle Road £ 176,5000.10 KM