Orchard Road, Burpham, Guildford, Surrey, GU4
By Seymours
£ 1,075,000
Reviews
3 out of 5 stars
Seymours says ..
Tucked away in the charming village of Burpham, this detached character cottage offers a delightful blend of traditional features and untapped potential. With its inviting façade, long private driveway, and leafy front garden framed by hedges and trees, the property immediately sets a tran...
Property Oracle says ..
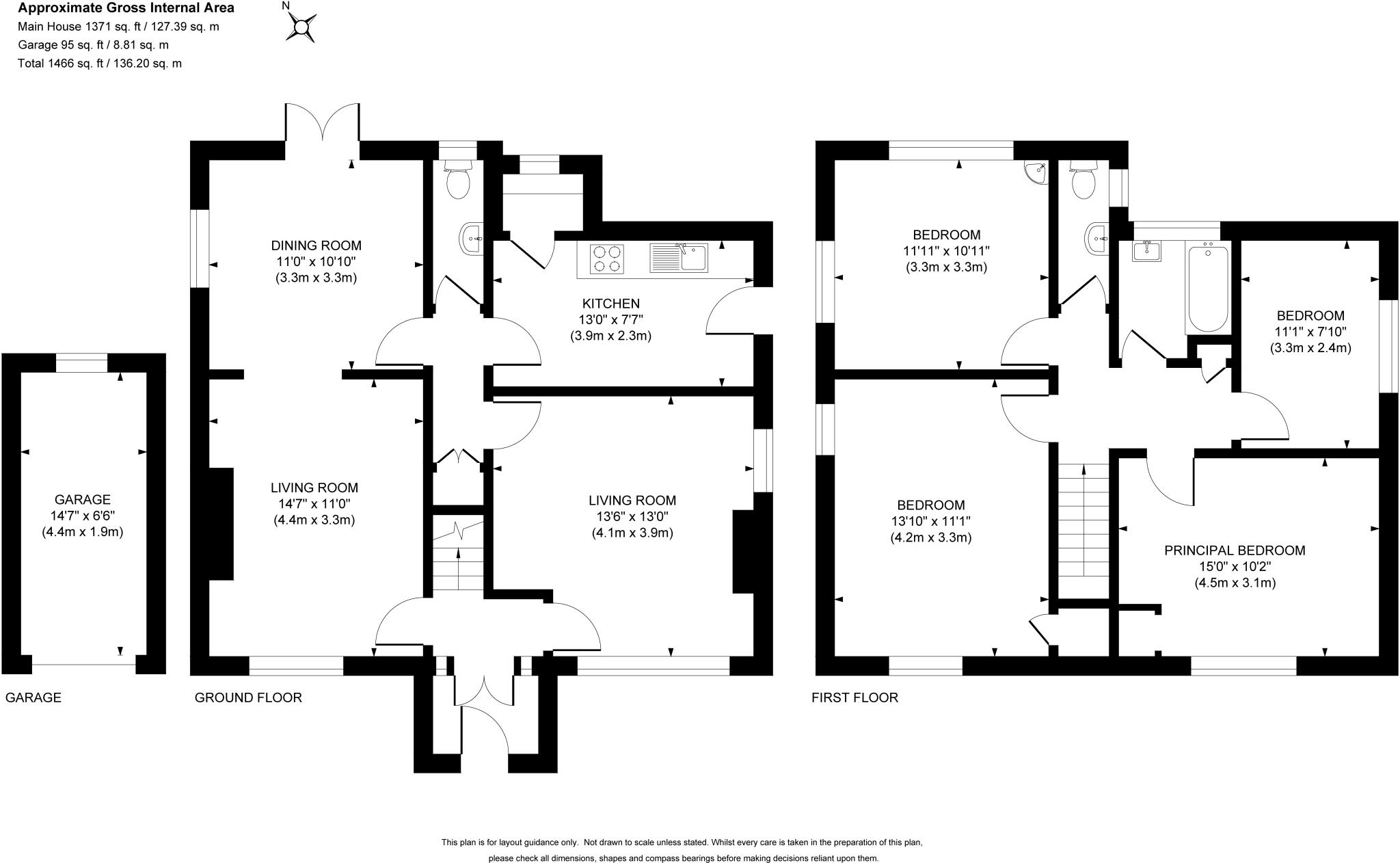
This is a four-bedroom detached house located on Orchard Road, Burpham, Guildford. The property offers a good amount of living space at 1,173.60 sq ft and includes a large garden. While the location is desirable, the property requires significant renovation, which is reflected in the price.
Therefore, we give this property 6 / 10. *Disclaimer: This is our option and does constitute a recommendation or financial advice. Do your own research. *
- Price
- 5
- Condition
- 4
- Location
- 7
- Land
- 8
- Bedrooms
- 4
- Bathrooms
- 1
- Sqft (est)
- 1,173.60
The heatmap indicates the level of crime in the area. The color of the heatmap indicates the crime severity and recency.
Metrics Year-on-Year
- Average area value
- 176,875.00 £Decreased by 63.05 %
- Est sale value
- 461,224.80 £Increased by 0.26 %
- Average area rental value
- 1,454.00 £/moDecreased by 26.68 %
- Est letting value
- 3,520.80 £/moIncreased by 200.00 %
- Est rental Yield
- 9.86 %Increased by 98.39 %
- Crime Rate
- 12.00 %Unchanged by 0.00 %
Agent Activity
Seymours created the listing.
Nearby Schools
| Name | Type | Ofsted | Distance |
|---|---|---|---|
| George Abbot School | Academy Converter | Good | 1.02 KM |
| Burpham Foundation Primary School | Foundation School | Outstanding | 1.04 KM |
| St Peter'S Catholic School | Academy Converter | 1.56 KM | |
| Boxgrove Sure Start Children'S Centre | Children's Centre | 1.61 KM | |
| Merrow Cofe Controlled Infant School | Voluntary Controlled School | Outstanding | 1.63 KM |
Images
Nearby Streets
| Name | Average Price | Average Sqft | Distance |
|---|---|---|---|
| Belmont Place | £ 0 | 0 | 0.00 KM |
| Hawthorne Way | £ 855,000 | 0 | 0.00 KM |
| The Cloisters | £ 0 | 0 | 0.00 KM |
| Paddocks Road | £ 1,195,000 | 0 | 0.00 KM |
| Meadow Road | £ 1,400,000 | 0 | 0.00 KM |
Nearby Transport
| Name | NLC | TLC | Distance |
|---|---|---|---|
| London Road (Guildford) | 5632 | LRD | 3.41 KM |
| Clandon | 5555 | CLA | 4.28 KM |
| Guildford | 5631 | GLD | 5.04 KM |
| Chilworth | 5296 | CHL | 5.33 KM |
| Worplesdon | 5686 | WPL | 5.58 KM |
Nearby Listings
| Address | Price | Type | Score | Distance |
|---|---|---|---|---|
| Orchard Road, Burpham, Guildford, Surrey, GU4 | £ 1,075,000 | BUY | 6 / 10 | 0.00 KM |
| Orchard Road, Burpham, Guildford, Surrey, GU4 | £ 1,175,000 | BUY | 5 / 10 | 0.00 KM |
| Belmont Place, Burpham, Guildford, Surrey, GU4. | £ 1,399,950 | BUY | 8 / 10 | 0.14 KM |
| Winterhill Way, Burpham, Guildford, Surrey, GU4 | £ 575,000 | BUY | Unknown | 0.15 KM |
| Briar Way, Guildford | £ 750,000 | BUY | 6 / 10 | 0.16 KM |
Nearby Properties
| Address | Price | Distance |
|---|---|---|
| 25b Orchard Road | £ 760,000 | 0.08 KM |
| 3 Orchard Road | £ 930,000 | 0.08 KM |
| 20 Orchard Road | £ 970,000 | 0.09 KM |
| 24 Orchard Road | £ 387,000 | 0.09 KM |
| 18 Orchard Road | £ 950,000 | 0.09 KM |