The Lawns, Hatch End, Pinner, HA5
By Rawlinson Gold
£ 1,000,000
Reviews
3 out of 5 stars
Rawlinson Gold says ..
This very attractive four bedroom three bath/shower room semi detached home provides very spacious family accommodation having been skillfully extended to the rear, side and into the 2nd floor. Set in a most sought after residential crescent very conveniently positioned for Hatch End's Broadway a...
Property Oracle says ..
This is a semi-detached property located in Hatch End, Pinner. It features four bedrooms, three bathrooms, and a well-maintained garden. The property appears to be in good condition, with a modern kitchen and updated amenities. Its location offers convenient access to transportation and schools, making it suitable for families and commuters. The asking price of £1,000,000 seems reasonable considering the property’s size, features, and location within the Greater London area.
Therefore, we give this property 7 / 10. *Disclaimer: This is our option and does constitute a recommendation or financial advice. Do your own research. *
- Price
- 7
- Condition
- 8
- Location
- 7
- Land
- 7
- Bedrooms
- 4
- Bathrooms
- 3
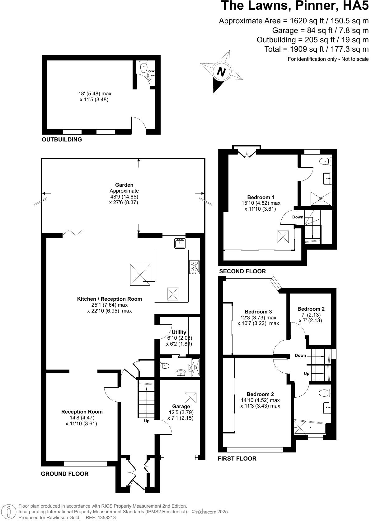
- Sqft (est)
- 1,909.00
- Lot (est)
- 1,344.75
The heatmap indicates the level of crime in the area. The color of the heatmap indicates the crime severity and recency.
Metrics Year-on-Year
- Average area value
- 1,310,000.00 £Increased by 70.76 %
- Est sale value
- 998,407.00 £Decreased by 6.27 %
- Average area rental value
- 2,509.00 £/moIncreased by 14.46 %
- Est letting value
- 1,909.00 £/moUnchanged by 0.00 %
- Est rental Yield
- 2.30 %Decreased by 32.94 %
- Crime Rate
- 12.00 %Unchanged by 0.00 %
Agent Activity
Rawlinson Gold created the listing.
Nearby Schools
| Name | Type | Ofsted | Distance |
|---|---|---|---|
| Hatch End High School | Academy Converter | Good | 0.54 KM |
| Shaftesbury High School | Community Special School | Outstanding | 0.69 KM |
| St Teresa'S Catholic Primary School And Nursery | Voluntary Aided School | Good | 0.72 KM |
| Cedars Manor School | Community School | Good | 0.92 KM |
| Cedars Children'S Centre | Children's Centre | 0.92 KM |
Images
Nearby Streets
| Name | Average Price | Average Sqft | Distance |
|---|---|---|---|
| Pinewood Avenue | £ 800,000 | 0 | 0.00 KM |
| Ross Close | £ 0 | 0 | 0.00 KM |
| Derby Avenue | £ 0 | 0 | 0.00 KM |
| Fenton Road | £ 623,317 | 0 | 0.00 KM |
| Mulberry Place | £ 895,000 | 0 | 0.00 KM |
Nearby Transport
| Name | NLC | TLC | Distance |
|---|---|---|---|
| Headstone Lane | 1434 | HDL | 0.87 KM |
| Hatch End | 1398 | HTE | 1.11 KM |
| Harrow And Wealdstone | 1397 | HRW | 3.34 KM |
| Carpenders Park | 1442 | CPK | 3.63 KM |
| Harrow-On-The-Hill | 598 | HOH | 4.20 KM |
Nearby Listings
| Address | Price | Type | Score | Distance |
|---|---|---|---|---|
| The Lawns, Hatch End, Pinner, HA5 | £ 1,000,000 | BUY | 7 / 10 | 0.00 KM |
| The Lawns, Hatch End, Pinner HA5 | £ 1,100,000 | BUY | 6 / 10 | 0.00 KM |
| The Lawns, Pinner | £ 750,000 | BUY | 7 / 10 | 0.09 KM |
| The Lawns, Pinner, Middlesex | £ 975,000 | BUY | 7 / 10 | 0.09 KM |
| Oxhey Lane, Pinner | £ 775,000 | BUY | 7 / 10 | 0.17 KM |
Nearby Properties
| Address | Price | Distance |
|---|---|---|
| 20 The Lawns | £ 490,000 | 0.09 KM |
| 16 The Lawns | £ 675,000 | 0.09 KM |
| 18 The Lawns | £ 680,000 | 0.09 KM |
| 24 The Lawns | £ 575,000 | 0.09 KM |
| 11 The Lawns | £ 1,040,000 | 0.09 KM |