DPSH Ltd says ..
DPSH PROUDLY PRESENTS THIS BEAUTIFUL STONE-BUILT FOUR-BEDROOM MID-TERRACE HOME IN THE HEART OF MORLEY! BOASTING HIGH CEILINGS, PERIOD FIREPLACES, AND A STYLISH MODERN INTERIOR, THIS SPACIOUS FAMILY HOME SEAMLESSLY BLENDS CHARACTER WITH CONTEMPORARY LIVING. COMPLETE WITH A PRIVATE REAR GARDEN.
Property Oracle says ..
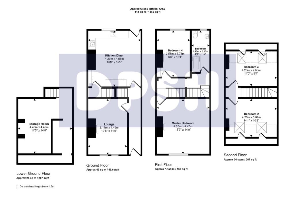
This four-bedroom terraced house on Victoria Road, Morley, Leeds, presents a compelling opportunity for families seeking a property in a convenient location. The property benefits from proximity to highly-rated Morley Victoria Primary School and other schools, as well as a train station offering good links to Leeds. The kitchen has undergone a stylish and modern update, enhancing the appeal and functionality of the space. The rest of the house appears well-maintained, although some original features are visible. The garden, while not expansive, provides outdoor space suitable for family use. While the lack of precise plot size and square footage data for comparable properties makes a definitive price per square foot analysis challenging, the asking price of £260,000 seems fairly aligned with the market in the area, taking into account the property’s features and location. Potential buyers should, however, conduct thorough due diligence and consider the long-term maintenance needs of the property and its location within the broader Leeds context.
Therefore, we give this property 6 / 10. *Disclaimer: This is our option and does constitute a recommendation or financial advice. Do your own research. *
- Price
- 7
- Condition
- 7
- Location
- 7
- Land
- 4
- Bedrooms
- 4
- Bathrooms
- 1
- Sqft (est)
- 1,550.00
The heatmap indicates the level of crime in the area. The color of the heatmap indicates the crime severity and recency.
Metrics Year-on-Year
- Average area value
- 321,452.00 £Increased by 21.41 %
- Est sale value
- 534,750.00 £Increased by 22.78 %
- Average area rental value
- 1,085.00 £/moIncreased by 14.94 %
- Est letting value
- 1,550.00 £/moUnchanged by 0.00 %
- Est rental Yield
- 4.05 %Decreased by 5.37 %
- Crime Rate
- 6.00 %Unchanged by 0.00 %
Agent Activity
DPSH Ltd created the listing.
Nearby Schools
| Name | Type | Ofsted | Distance |
|---|---|---|---|
| Morley Victoria Primary School | Community School | Outstanding | 0.25 KM |
| Morley North Children'S Centre | Children's Centre | 0.60 KM | |
| St Francis Catholic Primary School, Morley | Voluntary Aided School | Good | 0.67 KM |
| Asquith Primary School | Community School | Good | 0.84 KM |
| Queenswood School | Other Independent School | Good | 0.88 KM |
Images
Nearby Streets
| Name | Average Price | Average Sqft | Distance |
|---|---|---|---|
| Dawson Hill | £ 239,995 | 0 | 0.00 KM |
| Bank Street | £ 185,000 | 0 | 0.00 KM |
| Wood Street | £ 0 | 0 | 0.00 KM |
| Chapel Hill | £ 0 | 0 | 0.00 KM |
| Windsor Court | £ 0 | 0 | 0.00 KM |
Nearby Transport
| Name | NLC | TLC | Distance |
|---|---|---|---|
| Morley | 8504 | MLY | 1.54 KM |
| Cottingley | 8505 | COT | 2.71 KM |
| Batley | 8484 | BTL | 4.93 KM |
| Bramley (West Yorkshire) | 8496 | BLE | 7.08 KM |
| Dewsbury | 8326 | DEW | 7.20 KM |
Nearby Listings
| Address | Price | Type | Score | Distance |
|---|---|---|---|---|
| Victoria Road, Morley, Leeds | £ 260,000 | BUY | 6 / 10 | 0.00 KM |
| Providence Court, Morley, Leeds | £ 250,000 | BUY | 7 / 10 | 0.07 KM |
| Providence Court, Leeds, LS27 | £ 235,950 | BUY | 7 / 10 | 0.07 KM |
| Bank Street, Morley, Leeds, LS27 | £ 220,000 | BUY | 6 / 10 | 0.07 KM |
| Victoria Court, Victoria Mews, Morley, Leeds | £ 85,000 | BUY | 5 / 10 | 0.11 KM |
Nearby Properties
| Address | Price | Distance |
|---|---|---|
| 50 Victoria Road | £ 113,000 | 0.04 KM |
| 18a Victoria Road | £ 193,000 | 0.04 KM |
| 32 Victoria Road | £ 95,000 | 0.04 KM |
| 30 Victoria Road | £ 112,500 | 0.04 KM |
| 60 Victoria Road | £ 165,000 | 0.04 KM |