Thackley Old Road, Windhill,
By Martin S Lonsdale
£ 240,000
Reviews
3 out of 5 stars
Martin S Lonsdale says ..
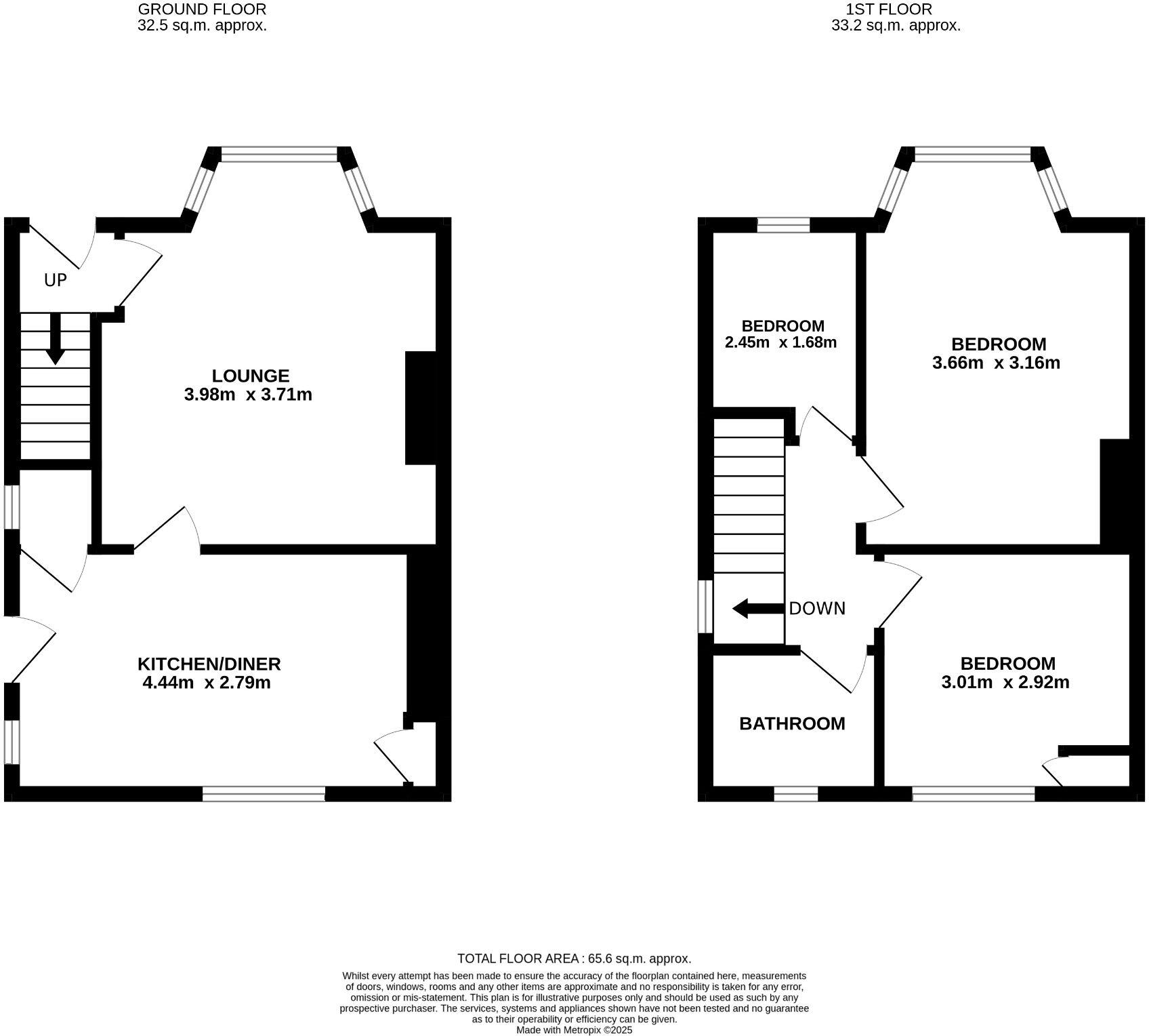
3 BEDROOM BAY SEMI-DETACHED PROPERTY SITUATED IN THIS ELEVATED POSITION OVER LOOKING TO BAILDON * STEPS UP TO THE FRONT GARDEN * THE PROPERTY HAS A LANDSCAPED SOUTH FACING REAR GARDEN WITH A USEFUL OUT BUILDING STORAGE UNIT * BAY LOUNGE * KITCHEN DINER * UPSTAIRS ARE 3 BEDROOMS * MODERN FITTED BA...
Property Oracle says ..
Therefore, we give this property 7 / 10. *Disclaimer: This is our option and does constitute a recommendation or financial advice. Do your own research. *
- Price
- 8
- Condition
- 8
- Location
- 7
- Land
- 7
- Bedrooms
- 3
- Bathrooms
- 1
The heatmap indicates the level of crime in the area. The color of the heatmap indicates the crime severity and recency.
Metrics Year-on-Year
- Average area value
- 856,250.00 £Increased by 15.74 %
- Average area rental value
- 2,000.00 £/moDecreased by 15.25 %
- Est rental Yield
- 2.80 %Decreased by 26.89 %
- Crime Rate
- 6.00 %Unchanged by 0.00 %
from 739,779.00 £
from 2,360.00 £/mo
from 3.83 %
from 6.00 %
Agent Activity
Martin S Lonsdale created the listing.
Nearby Schools
| Name | Type | Ofsted | Distance |
|---|---|---|---|
| St Anthony'S Catholic Primary School, A Voluntary Academy | Academy Converter | 0.58 KM | |
| Hoyle Court Primary School | Community School | Good | 0.80 KM |
| Christ Church Church Of England Academy | Academy Sponsor Led | Good | 1.03 KM |
| Low Ash Primary School | Community School | Good | 1.39 KM |
| Owlet Children & Family Centre | Children's Centre | 1.71 KM |
Images
Nearby Streets
| Name | Average Price | Average Sqft | Distance |
|---|---|---|---|
| St. John's Court | £ 0 | 0 | 0.00 KM |
| Back Alma Grove | £ 59,995 | 0 | 0.00 KM |
| Woodside | £ 0 | 0 | 0.00 KM |
| Woodville Street | £ 0 | 0 | 0.00 KM |
| St James Court | £ 0 | 0 | 0.00 KM |
Nearby Transport
| Name | NLC | TLC | Distance |
|---|---|---|---|
| Baildon | 8552 | BLD | 1.21 KM |
| Shipley (Yorks) | 8347 | SHY | 2.18 KM |
| Frizinghall | 8556 | FZH | 2.63 KM |
| Saltaire | 8561 | SAE | 3.94 KM |
| Bradford Forster Square | 8346 | BDQ | 4.73 KM |
Nearby Listings
| Address | Price | Type | Score | Distance |
|---|---|---|---|---|
| Thackley Old Road, Windhill, | £ 240,000 | BUY | 7 / 10 | 0.00 KM |
| Glenside Road , Shipley | £ 170,000 | BUY | 7 / 10 | 0.07 KM |
| Thackley OId Road , Thackley | £ 210,000 | BUY | Unknown | 0.07 KM |
| Thackley Old Road, Shipley | £ 240,000 | BUY | 6 / 10 | 0.08 KM |
| Glenside Road, Shipley, BD18 | £ 220,000 | BUY | 7 / 10 | 0.12 KM |
Nearby Properties
| Address | Price | Distance |
|---|---|---|
| 17 Glenside Road | £ 93,000 | 0.07 KM |
| 19 Glenside Road | £ 110,000 | 0.07 KM |
| 6 Glenside Road | £ 149,940 | 0.07 KM |
| 10 Glenside Road | £ 175,000 | 0.07 KM |
| 7 Glenside Road | £ 137,000 | 0.07 KM |