HE
Burlington Street, Brighton
By Healy & Newsom
£ 270,000
Healy & Newsom says ..
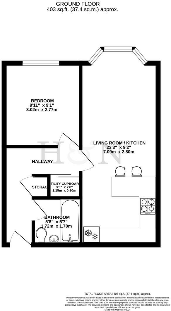
Burlington Street, Brighton is a charming location for this delightful flat that is sure to capture your heart! Situated on the ground floor of a characterful purpose-built block, this property boasts a stunning rustic French-chic styling that sets it apart from the rest. As you step in...
- Bedrooms
- 1
- Bathrooms
- 1
The heatmap indicates the level of crime in the area. The color of the heatmap indicates the crime severity and recency.
Metrics Year-on-Year
- Average area value
- 392,498.00 £Decreased by 19.21 %
- Average area rental value
- 1,784.00 £/moDecreased by 5.61 %
- Est rental Yield
- 5.45 %Increased by 16.70 %
- Crime Rate
- 7.00 %Unchanged by 0.00 %
from 485,835.00 £
from 1,890.00 £/mo
from 4.67 %
from 7.00 %
Agent Activity
Healy & Newsom created the listing.
Nearby Schools
| Name | Type | Ofsted | Distance |
|---|---|---|---|
| Brighton College | Other Independent School | 0.31 KM | |
| Brighton College Nursery, Pre-Prep And Prep School | Other Independent School | 0.41 KM | |
| Queen'S Park Primary School | Community School | Good | 0.56 KM |
| Hamilton Lodge School And College For Deaf Children | Non-maintained Special School | Good | 0.61 KM |
| Royal Spa Nursery School | Local Authority Nursery School | Outstanding | 0.67 KM |
Images
Nearby Streets
| Name | Average Price | Average Sqft | Distance |
|---|---|---|---|
| Saint George's Terrace | £ 0 | 0 | 0.00 KM |
| Saint George's Road | £ 0 | 0 | 0.00 KM |
| St Georges Road | £ 0 | 0 | 0.00 KM |
| Thames Close | £ 0 | 0 | 0.00 KM |
| Park View | £ 975,000 | 0 | 0.00 KM |
Nearby Transport
| Name | NLC | TLC | Distance |
|---|---|---|---|
| Brighton | 5268 | BTN | 2.24 KM |
| London Road (Brighton) | 5281 | LRB | 2.45 KM |
| Moulsecoomb | 5312 | MCB | 3.21 KM |
| Preston Park | 5285 | PRP | 4.61 KM |
| Hove | 5273 | HOV | 5.48 KM |
Nearby Listings
| Address | Price | Type | Score | Distance |
|---|---|---|---|---|
| Marine Parade, Brighton | £ 325,000 | BUY | Unknown | 0.02 KM |
| Marine Parade, Brighton | £ 725,000 | BUY | 6 / 10 | 0.02 KM |
| Burlington Street, Brighton | £ 1,100,000 | BUY | 6 / 10 | 0.02 KM |
| Burlington Street, Brighton | £ 299,950 | BUY | 7 / 10 | 0.03 KM |
| Burlington Street, Brighton | £ 375,000 | BUY | 6 / 10 | 0.03 KM |
Nearby Properties
| Address | Price | Distance |
|---|---|---|
| 106 Marine Parade | £ 1,700,000 | 0.02 KM |
| 102 Marine Parade | £ 1,780,000 | 0.02 KM |
| 108 Marine Parade | £ 525,000 | 0.02 KM |
| 14 Burlington Street | £ 410,000 | 0.03 KM |
| 22a Burlington Street | £ 285,000 | 0.03 KM |