The Fairway, West Molesey
By Harmes Turner Brown
£ 665,000
Reviews
3 out of 5 stars
Harmes Turner Brown says ..
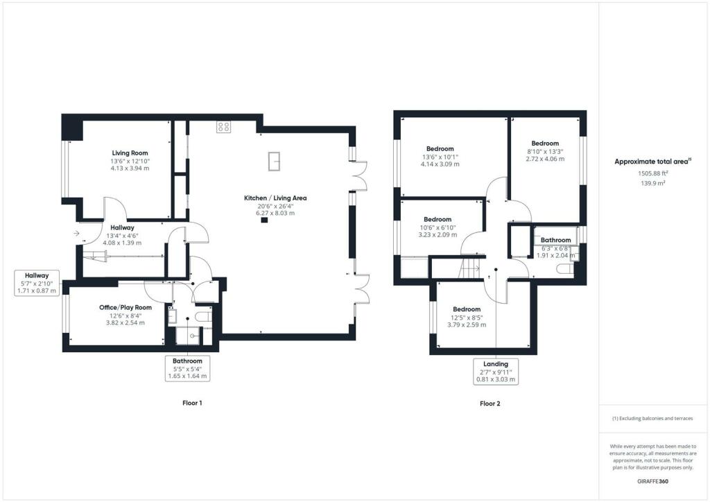
We are pleased to offer this extended family home which is situated in a cul-de-sac location within a short distance of Hurst Meadows, the River Thames and Tescos on the Hurst Road. The accommodation offers an exceptional amount of space, catering for most modern family needs and entertaining br...
Property Oracle says ..
This four-bedroom property in West Molesey, Surrey, presents a compelling proposition for families seeking a comfortable and well-located home. The recent extension has created a bright, open-plan living space, ideal for modern living and entertaining. The kitchen has been updated with modern appliances and a stylish island. The garden is a substantial asset, offering ample space for children to play and adults to relax, enhanced by the presence of a hot tub. The home’s proximity to good schools and transport links adds to its appeal.
While the property appears well-maintained, potential buyers may wish to assess the overall condition further through a full survey. The existing decor may not suit all tastes and some cosmetic changes may be preferred by future owners. The lack of precise square footage data on comparable properties makes it difficult to definitively determine whether the list price fully reflects market value. Overall, the property offers a pleasant and spacious family home, reasonably priced for the location and amenities it boasts.
Therefore, we give this property 6 / 10. *Disclaimer: This is our option and does constitute a recommendation or financial advice. Do your own research. *
- Price
- 7
- Condition
- 7
- Location
- 7
- Land
- 6
- Bedrooms
- 4
- Bathrooms
- 0
- Sqft (est)
- 1,505.87
The heatmap indicates the level of crime in the area. The color of the heatmap indicates the crime severity and recency.
Metrics Year-on-Year
- Average area value
- 736,658.00 £Decreased by 7.15 %
- Est sale value
- 1,090,249.88 £Increased by 11.56 %
- Average area rental value
- 2,100.00 £/moDecreased by 8.93 %
- Est letting value
- 3,011.74 £/moIncreased by 100.00 %
- Est rental Yield
- 3.42 %Decreased by 2.01 %
- Crime Rate
- 7.00 %Unchanged by 0.00 %
Agent Activity
Harmes Turner Brown marked this listing as sold.
Harmes Turner Brown created the listing.
Nearby Schools
| Name | Type | Ofsted | Distance |
|---|---|---|---|
| St Alban'S Catholic Primary School | Academy Converter | Good | 0.89 KM |
| Twickenham Preparatory School | Other Independent School | 0.91 KM | |
| St Lawrence Cofe Aided Junior School, East Molesey | Voluntary Aided School | Good | 1.01 KM |
| Hurst Park Primary School | Community School | Good | 1.07 KM |
| Chandlers Field Primary School | Foundation School | Good | 1.12 KM |
Images
Nearby Streets
| Name | Average Price | Average Sqft | Distance |
|---|---|---|---|
| The Fairway | £ 536,667 | 0 | 0.00 KM |
| Lavender Court | £ 0 | 0 | 0.00 KM |
| Park Way | £ 890,000 | 0 | 0.00 KM |
| Bell Hill | £ 0 | 0 | 0.00 KM |
| Post Office Passage | £ 325,000 | 0 | 0.00 KM |
Nearby Transport
| Name | NLC | TLC | Distance |
|---|---|---|---|
| Hampton | 5560 | HMP | 1.36 KM |
| Hampton Court | 5561 | HMC | 2.38 KM |
| Esher | 5558 | ESH | 3.22 KM |
| Thames Ditton | 5610 | THD | 3.38 KM |
| Fulwell | 5587 | FLW | 3.41 KM |
Nearby Listings
| Address | Price | Type | Score | Distance |
|---|---|---|---|---|
| Park Way, West Molesey | £ 649,950 | BUY | 7 / 10 | 0.08 KM |
| Dunstall Way, West Molesey | £ 899,950 | BUY | 7 / 10 | 0.12 KM |
| Bedster Gardens, West Molesey, Surrey, KT8 | £ 515,000 | BUY | 5 / 10 | 0.20 KM |
| Bedster Gardens, West Molesey, KT8 | £ 610,000 | BUY | 7 / 10 | 0.20 KM |
| Bedster Gardens, West Molesey, Surrey, KT8 | £ 575,000 | BUY | 5 / 10 | 0.20 KM |
Nearby Properties
| Address | Price | Distance |
|---|---|---|
| 53 Park Way | £ 490,000 | 0.06 KM |
| 37 Park Way | £ 518,000 | 0.06 KM |
| 18 The Fairway | £ 245,000 | 0.08 KM |
| 19 The Fairway | £ 685,000 | 0.08 KM |
| 25 The Fairway | £ 242,000 | 0.08 KM |