Russet Glade, Aldershot, GU11
By Peepal Estate Agents
£ 650,000
Reviews
3 out of 5 stars
Peepal Estate Agents says ..
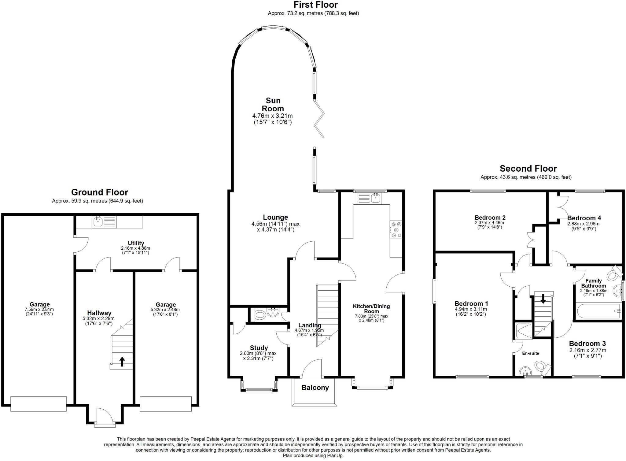
This superbly presented four-bedroom detached home sits in an exclusive cul-de-sac beside Rowhill Nature Reserve, offering refined, flexible living across three elegant floors. A striking entrance hall with study space and bespoke storage leads to a generous utility room with access to both gar...
Property Oracle says ..
This detached property in Rowhill, Aldershot, offers four bedrooms and three bathrooms, making it suitable for families. The house is in good condition, featuring modern interiors and a well-maintained garden with a shed. Its location provides convenient access to nearby schools and transportation options. The listing price of £650,000 appears to be in line with similar properties in the area, making it a potentially attractive option for buyers looking for a comfortable and well-located home.
Therefore, we give this property 7 / 10. *Disclaimer: This is our option and does constitute a recommendation or financial advice. Do your own research. *
- Price
- 7
- Condition
- 8
- Location
- 7
- Land
- 7
- Bedrooms
- 4
- Bathrooms
- 3
The heatmap indicates the level of crime in the area. The color of the heatmap indicates the crime severity and recency.
Metrics Year-on-Year
- Average area value
- 332,500.00 £Decreased by 10.87 %
- Average area rental value
- 1,008.00 £/moDecreased by 24.27 %
- Est rental Yield
- 3.64 %Decreased by 14.95 %
- Crime Rate
- 2.00 %Unchanged by 0.00 %
Agent Activity
Peepal Estate Agents created the listing.
Nearby Schools
| Name | Type | Ofsted | Distance |
|---|---|---|---|
| Wellington Community Primary School | Community School | Outstanding | 1.20 KM |
| Farnham Heath End | Academy Converter | Good | 1.23 KM |
| All Hallows Catholic School | Voluntary Aided School | Outstanding | 1.25 KM |
| William Cobbett Primary School | Community School | Good | 1.25 KM |
| Rowhill School | Pupil Referral Unit | Good | 1.44 KM |
Images
Nearby Streets
| Name | Average Price | Average Sqft | Distance |
|---|---|---|---|
| St. Peters Park | £ 420,000 | 0 | 0.00 KM |
| Nelson Road | £ 0 | 0 | 0.00 KM |
| Friars Court | £ 450,000 | 0 | 0.00 KM |
| Elm Road | £ 0 | 0 | 0.00 KM |
| Holbrook Close | £ 850,000 | 0 | 0.00 KM |
Nearby Transport
| Name | NLC | TLC | Distance |
|---|---|---|---|
| Aldershot | 5623 | AHT | 2.65 KM |
| Farnham | 5545 | FNH | 3.52 KM |
| Farnborough (Main) | 5521 | FNB | 6.78 KM |
| North Camp | 5636 | NCM | 6.88 KM |
| Fleet | 5522 | FLE | 7.52 KM |
Nearby Listings
| Address | Price | Type | Score | Distance |
|---|---|---|---|---|
| Russet Glade, Aldershot, Hampshire | £ 650,000 | BUY | Unknown | 0.00 KM |
| Russet Glade, Aldershot, GU11 | £ 650,000 | BUY | 7 / 10 | 0.00 KM |
| Russet Glade, Aldershot, Hampshire, GU11 | £ 800,000 | BUY | 7 / 10 | 0.02 KM |
| Russet Glade, Aldershot, Hampshire, GU11 | £ 780,000 | BUY | 7 / 10 | 0.02 KM |
| Russet Glade, Aldershot, Hampshire, GU11 | £ 700,000 | BUY | 7 / 10 | 0.02 KM |
Nearby Properties
| Address | Price | Distance |
|---|---|---|
| 8 Russet Glade | £ 575,000 | 0.00 KM |
| 12 Russet Glade | £ 420,000 | 0.02 KM |
| 10 Russet Glade | £ 420,000 | 0.02 KM |
| 6a Russet Glade | £ 655,000 | 0.02 KM |
| 3 Russet Glade | £ 460,000 | 0.02 KM |