Chiswick High Road, Chiswick
By Whitman & Co
£ 1,998
Whitman & Co says ..
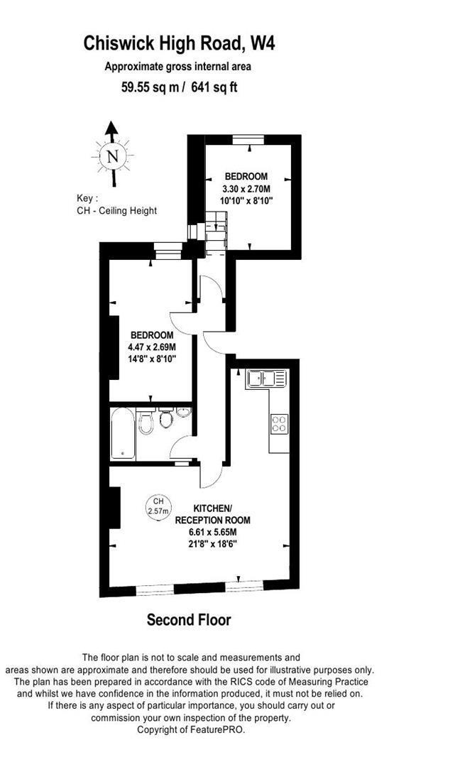
A nicely presented two bedroomed apartment situated in this central Chiswick location with Chiswick High Road on your doorstep with its array of boutique shops and restaurants. The accommodation provides: open plan living room with double sash windows to front, opening to galley style fitted kitc...
- Bedrooms
- 2
- Bathrooms
- 1
The heatmap indicates the level of crime in the area. The color of the heatmap indicates the crime severity and recency.
Metrics Year-on-Year
- Average area value
- 953,000.00 £Decreased by 11.81 %
- Average area rental value
- 1,783.00 £/moDecreased by 30.51 %
- Est rental Yield
- 2.25 %Decreased by 21.05 %
- Crime Rate
- 14.00 %Unchanged by 0.00 %
from 1,080,572.00 £
from 2,566.00 £/mo
from 2.85 %
from 14.00 %
Agent Activity
Whitman & Co created the listing.
Nearby Schools
| Name | Type | Ofsted | Distance |
|---|---|---|---|
| Artsed Day School And Sixth Form | Other Independent School | 0.35 KM | |
| Chiswick And Bedford Park Preparatory School | Other Independent School | 0.41 KM | |
| The William Hogarth Primary School | Community School | Good | 0.59 KM |
| Orchard House School | Other Independent School | 0.66 KM | |
| Chiswick Children'S Centre | Children's Centre Linked Site | 0.67 KM |
Images
Nearby Streets
| Name | Average Price | Average Sqft | Distance |
|---|---|---|---|
| Turnham Green Terrace | £ 0 | 0 | 0.00 KM |
| Ingress Street | £ 0 | 0 | 0.00 KM |
| Elliott Road | £ 0 | 0 | 0.00 KM |
| Alkerden Road | £ 0 | 0 | 0.00 KM |
| Priory Gardens | £ 0 | 0 | 0.00 KM |
Nearby Transport
| Name | NLC | TLC | Distance |
|---|---|---|---|
| South Acton | 1452 | SAT | 1.98 KM |
| Acton Central | 1404 | ACC | 2.04 KM |
| Chiswick | 5583 | CHK | 2.06 KM |
| Barnes Bridge | 5580 | BNI | 2.34 KM |
| Gunnersbury | 5588 | GUN | 2.41 KM |
Nearby Listings
| Address | Price | Type | Score | Distance |
|---|---|---|---|---|
| Chiswick High Road, Chiswick | £ 1,998 | RENT | Unknown | 0.00 KM |
| Chiswick High Road, Chiswick | £ 1,998 | RENT | Unknown | 0.01 KM |
| Chiswick High Road, London, W4 | £ 2,000 | RENT | Unknown | 0.01 KM |
| Chiswick High Road, Chiswick | £ 461 | RENT | Unknown | 0.01 KM |
| Chiswick High Road, London, W4 | £ 975 | RENT | Unknown | 0.03 KM |
Nearby Properties
| Address | Price | Distance |
|---|---|---|
| 128a Chiswick High Road | £ 370,000 | 0.04 KM |
| 135a Chiswick High Road | £ 810,000 | 0.05 KM |
| 109a Chiswick High Road | £ 850,000 | 0.05 KM |
| 118a Chiswick High Road | £ 1,300,000 | 0.06 KM |
| 15 Thornton Avenue | £ 2,143,013 | 0.11 KM |