Linden Avenue, Ruislip
GI

Linden Avenue, Ruislip

By Gibbs Gillespie

£ 799,950

Reviews

3 out of 5 stars

Gibbs Gillespie says ..

This well-presented four-bedroom extended detached bungalow offers generous living space, large rear garden and the added benefit of no onward chain. The heart of the home is the impressive open-plan kitchen, dining and living area, designed for both everyday family life and entertaini...

Property Oracle says ..

This is a four-bedroom bungalow on Linden Avenue in Ruislip. The property benefits from a modern interior, including a recently updated kitchen and bathrooms. It also features a garden, providing outdoor space. The property includes off street parking and a garage. The property is located in a residential area with access to local amenities and schools. However, the list price of £799,950 is relatively high compared to the average property price in the area.

Therefore, we give this property 7 / 10. *Disclaimer: This is our option and does constitute a recommendation or financial advice. Do your own research. *

Price
6
Condition
8
Location
7
Land
7
Bedrooms
4
Bathrooms
2
Sqft (est)
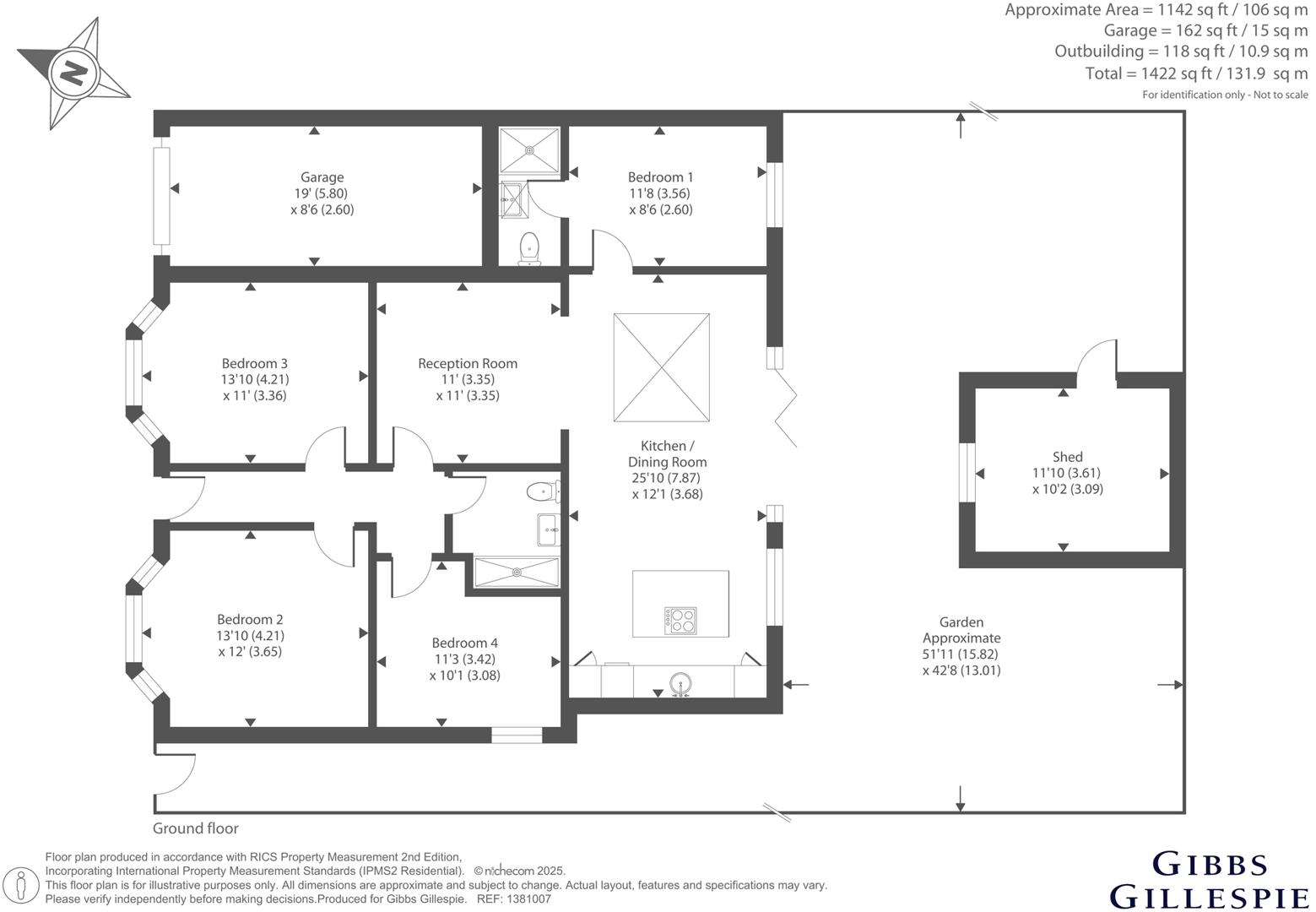
1,422.00

The heatmap indicates the level of crime in the area. The color of the heatmap indicates the crime severity and recency.

Metrics Year-on-Year

Average area value
387,843.00 £
Increased by 1.47 %
from 382,238.00 £
Est sale value
550,314.00 £
Increased by 24.84 %
from 440,820.00 £
Average area rental value
1,806.00 £/mo
Increased by 16.22 %
from 1,554.00 £/mo
Est letting value
1,422.00 £/mo
Unchanged by 0.00 %
from 1,422.00 £/mo
Est rental Yield
5.59 %
Increased by 14.55 %
from 4.88 %
Crime Rate
2.00 %
Unchanged by 0.00 %
from 2.00 %

Agent Activity

  • Gibbs Gillespie created the listing.

Nearby Schools

NameTypeOfstedDistance
Lady Bankes Primary SchoolCommunity SchoolGood0.55 KM
Bishop Ramsey Church Of England SchoolAcademy Converter0.71 KM
Ruislip High SchoolAcademy Converter1.12 KM
Warrender Primary SchoolCommunity SchoolGood1.13 KM
Coteford Children'S CentreChildren's Centre1.26 KM

Images

1381007-12-691c5e... 1381007-13-691c5e... 1381007-17-691c5e... 1381007-20-691c5e... 1381007-2-691c5e4... 1381007-19-691c5e... 1381007-10-691c5e... 1381007-5-691c5e6... 1381007-18-691c5e... 1381007-11-691c5e... 1381007-6-691c5e7... 1381007-1-691c5e3... 1381007-4-691c5e5... 1381007-7-691c5e7... 1381007-14-691c5e... 1381007-15-691c5e... 1381007-9-691c5e9... 1381007-3-691c5e4... 1381007-16-691c5e... 1381007-8-691c5e8...

Nearby Streets

NameAverage PriceAverage SqftDistance
Ryan Close £ 825,00000.00 KM
Myrtle Avenue £ 833,33300.00 KM
Victoria Road £ 453,88900.00 KM
Campbell Close £ 287,47500.00 KM
Old Hatch Manor £ 000.00 KM

Nearby Transport

NameNLCTLCDistance
South Ruislip3057SRU2.03 KM
West Ruislip3059WRU3.69 KM
Northolt Park1478NLT5.35 KM
Hatch End1398HTE5.59 KM
Headstone Lane1434HDL6.13 KM

Nearby Listings

AddressPriceTypeScoreDistance
Linden Avenue, Ruislip £ 799,950BUY7 / 100.00 KM
Linden Avenue, Ruislip, Middlesex £ 700,000BUY7 / 100.04 KM
Linden Avenue, Ruislip, HA4 £ 625,000BUY7 / 100.07 KM
129 Linden Avenue, Ruislip, Middlesex, HA4 8TY £ 375,000BUY5 / 100.07 KM
Linden Avenue, Ruislip £ 900,000BUY7 / 100.12 KM

Nearby Properties

AddressPriceDistance
116 Linden Avenue £ 530,0000.02 KM
132 Linden Avenue £ 640,0000.02 KM
96 Linden Avenue £ 500,0000.02 KM
106a Linden Avenue £ 515,0000.02 KM
100 Linden Avenue £ 503,0000.04 KM