Brunswick Street, York
By Churchills Estate Agents
£ 230,000
Churchills Estate Agents says ..
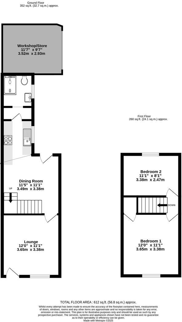
NO FORWARD CHAIN - PERIOD END TERRACE PROPERTY WITH SOUTH FACING COURTYARD AND WORKSHOP! Churchills are delighted to offer for sale this two double bedroom house. Although in need of some cosmetic upgrading the property is perfectly suited for investors or first time buyers alike with modern gas...
- Bedrooms
- 2
- Bathrooms
- 1
- Sqft (est)
- 612.00
The heatmap indicates the level of crime in the area. The color of the heatmap indicates the crime severity and recency.
Metrics Year-on-Year
- Average area value
- 542,496.00 £Increased by 34.28 %
- Est sale value
- 255,816.00 £Increased by 33.55 %
- Average area rental value
- 1,435.00 £/moIncreased by 6.30 %
- Est letting value
- 612.00 £/moUnchanged by 0.00 %
- Est rental Yield
- 3.17 %Decreased by 20.95 %
- Crime Rate
- 4.00 %Unchanged by 0.00 %
from 404,000.00 £
from 191,556.00 £
from 1,350.00 £/mo
from 612.00 £/mo
from 4.01 %
from 4.00 %
Agent Activity
Churchills Estate Agents created the listing.
Nearby Schools
| Name | Type | Ofsted | Distance |
|---|---|---|---|
| Knavesmire Primary School | Academy Converter | 0.28 KM | |
| Knavesmire Children'S Centre | Children's Centre | 0.28 KM | |
| Millthorpe School | Academy Converter | Good | 0.36 KM |
| Scarcroft Primary School | Academy Converter | 0.79 KM | |
| The Mount School (York) | Other Independent School | 1.02 KM |
Images
Nearby Streets
| Name | Average Price | Average Sqft | Distance |
|---|---|---|---|
| Nunnery Lane | £ 0 | 0 | 0.00 KM |
| Knavesmire Road | £ 350,000 | 0 | 0.00 KM |
| Drake Street | £ 180,000 | 0 | 0.00 KM |
| Bishopthorpe Road | £ 0 | 0 | 0.00 KM |
| Bishopgate Street | £ 0 | 0 | 0.00 KM |
Nearby Transport
| Name | NLC | TLC | Distance |
|---|---|---|---|
| York | 8263 | YRK | 1.37 KM |
| Poppleton | 8254 | POP | 7.17 KM |
Nearby Listings
| Address | Price | Type | Score | Distance |
|---|---|---|---|---|
| Brunswick Street, York | £ 230,000 | BUY | Unknown | 0.00 KM |
| Brunswick Street, South Bank, York YO23 1EB | £ 300,000 | BUY | Unknown | 0.01 KM |
| Queen Victoria Street, York | £ 300,000 | BUY | 5 / 10 | 0.05 KM |
| Queen Victoria Street, York | £ 300,000 | BUY | 5 / 10 | 0.05 KM |
| Queen Victoria Street, York YO23 1HN | £ 329,950 | BUY | 6 / 10 | 0.06 KM |
Nearby Properties
| Address | Price | Distance |
|---|---|---|
| 55 Queen Victoria Street | £ 46,000 | 0.03 KM |
| 85 Queen Victoria Street | £ 73,500 | 0.03 KM |
| 33 Queen Victoria Street | £ 160,000 | 0.03 KM |
| 19 Queen Victoria Street | £ 56,500 | 0.03 KM |
| 57 Queen Victoria Street | £ 39,000 | 0.03 KM |