Carter & Willow says ..
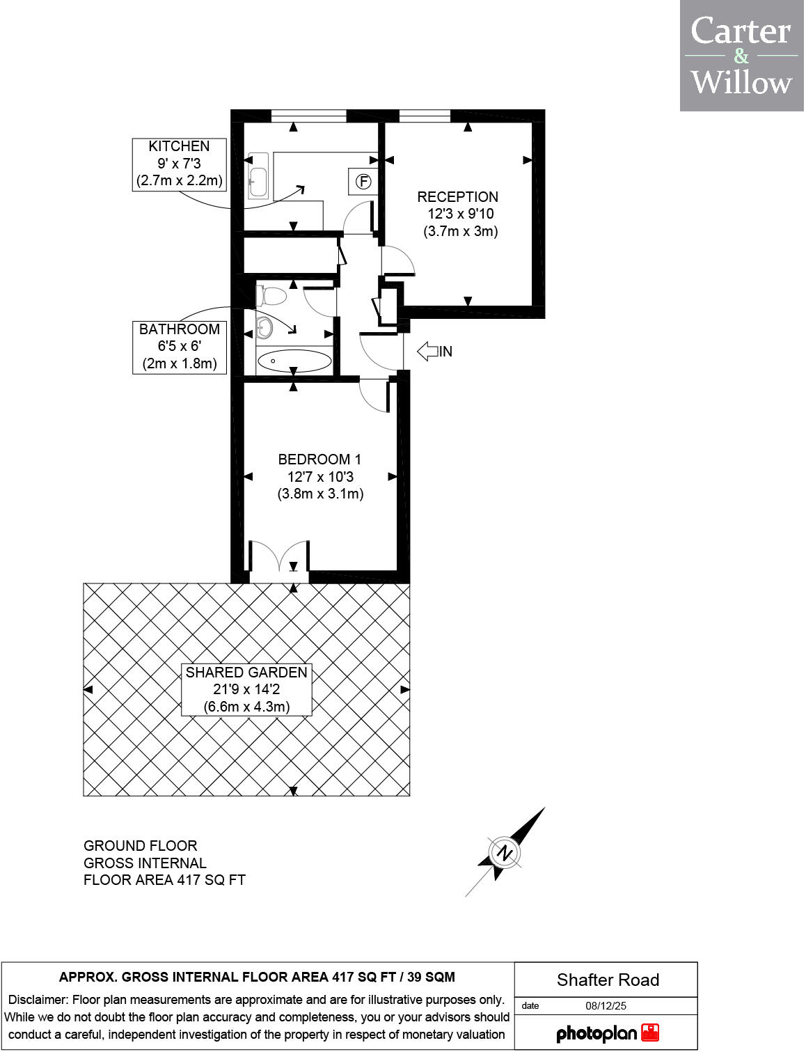
Carter & Willow offer for sale this chain free 1 bedroom ground floor flat which offers allocated parking, a separate 9' x 7'3 fitted kitchen, 12'3 x 9'10 reception room arranged as a second bedroom, bathroom/WC and double glazing.
Property Oracle says ..
This is a one-bedroom flat located on Shafter Road, Dagenham. The property is listed for £200,000 and has a square footage of 417 sqft. The flat is in need of renovation, particularly in the kitchen and bathroom. It benefits from a small garden. The location offers access to local amenities and transportation links. The price appears reasonable given the condition and location, presenting an opportunity for renovation and value enhancement.
Therefore, we give this property 6 / 10. *Disclaimer: This is our option and does constitute a recommendation or financial advice. Do your own research. *
- Price
- 8
- Condition
- 4
- Location
- 6
- Land
- 6
- Bedrooms
- 1
- Bathrooms
- 1
- Sqft (est)
- 417.00
- Lot (est)
- 309.75
The heatmap indicates the level of crime in the area. The color of the heatmap indicates the crime severity and recency.
Metrics Year-on-Year
- Average area value
- 516,545.00 £Decreased by 47.34 %
- Est sale value
- 241,026.00 £Decreased by 13.99 %
- Average area rental value
- 3,946.00 £/moDecreased by 6.85 %
- Est letting value
- 1,668.00 £/moIncreased by 100.00 %
- Est rental Yield
- 9.17 %Increased by 77.03 %
- Crime Rate
- 11.00 %Unchanged by 0.00 %
Agent Activity
Carter & Willow created the listing.
Nearby Schools
| Name | Type | Ofsted | Distance |
|---|---|---|---|
| Elutec Academy | University Technical College | 0.76 KM | |
| John Perry Primary School | Community School | Good | 0.80 KM |
| Leys Children'S Centre | Children's Centre | 0.90 KM | |
| Eastbrook School | Community School | Requires improvement | 0.92 KM |
| The Leys Primary School | Community School | Good | 0.96 KM |
Images
Nearby Streets
| Name | Average Price | Average Sqft | Distance |
|---|---|---|---|
| Rodwll Place | £ 0 | 0 | 0.00 KM |
| Crown Street | £ 160,000 | 0 | 0.00 KM |
| Saint Marks Place | £ 241,250 | 0 | 0.00 KM |
| St. Mark's Place | £ 0 | 0 | 0.00 KM |
| Farm Close | £ 0 | 0 | 0.00 KM |
Nearby Transport
| Name | NLC | TLC | Distance |
|---|---|---|---|
| Dagenham Dock | 7440 | DDK | 2.73 KM |
| Romford | 6886 | RMF | 4.13 KM |
| Rainham (Essex) | 7454 | RNM | 4.19 KM |
| Chadwell Heath | 6874 | CTH | 4.73 KM |
| Belvedere | 5092 | BVD | 5.83 KM |
Nearby Listings
| Address | Price | Type | Score | Distance |
|---|---|---|---|---|
| Shafter Road, Dagenham | £ 200,000 | BUY | 6 / 10 | 0.00 KM |
| Shafter Road, Dagenham | £ 475,000 | BUY | 6 / 10 | 0.06 KM |
| Dewey Road, Dagenham | £ 460,000 | BUY | 6 / 10 | 0.07 KM |
| Dewey Road, Dagenham, London, RM10 | £ 475,000 | BUY | Unknown | 0.10 KM |
| Dewey Road, Dagenham, RM10 | £ 415,000 | BUY | Unknown | 0.10 KM |
Nearby Properties
| Address | Price | Distance |
|---|---|---|
| 126 Shafter Road | £ 215,000 | 0.00 KM |
| 114 Shafter Road | £ 123,000 | 0.00 KM |
| 90 Shafter Road | £ 210,000 | 0.00 KM |
| 54 Shafter Road | £ 126,000 | 0.00 KM |
| 84 Shafter Road | £ 110,000 | 0.00 KM |