Kinnerley Road, Whitby
By Platinum Independent Estate Agents
£ 270,000
Reviews
3 out of 5 stars
Platinum Independent Estate Agents says ..
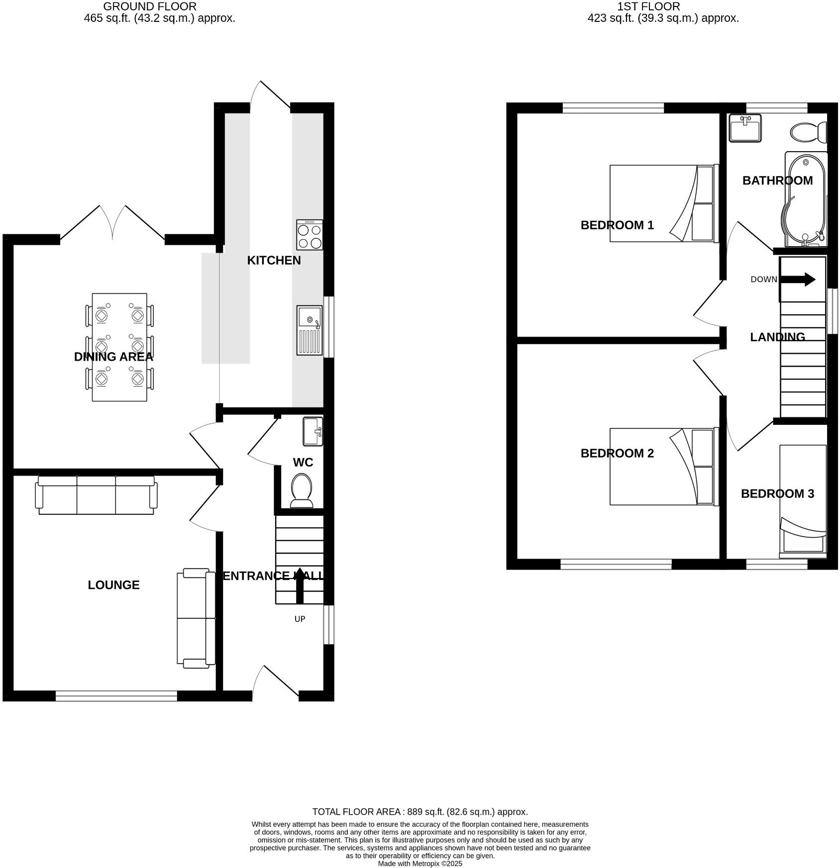
NO ONWARD CHAIN. Platinum are delighted to welcome onto the market this fully renovated three bedroom semi detached property. Located within a quiet cul de sac in the highly sought after location of Whitby, this superb property is finished to a high standard, boasting contemporary open plan kitchen/
Property Oracle says ..
This three-bedroom semi-detached house is located on Kinnerley Road in Whitby, Cheshire. The property has recently undergone a full renovation, boasting a modern kitchen and bathroom. The images show a clean, contemporary interior with new flooring and fixtures. There is a garden to the rear, though the landscaping appears to be in its early stages. The property is conveniently located near several primary and secondary schools, with transport links also nearby. The asking price of £270,000 is slightly below the average price for the area, but considering the recent renovation and the relatively small plot size, it appears to be a reasonable price.
Therefore, we give this property 7 / 10. *Disclaimer: This is our option and does constitute a recommendation or financial advice. Do your own research. *
- Price
- 7
- Condition
- 9
- Location
- 8
- Land
- 6
- Bedrooms
- 3
- Bathrooms
- 1
- Sqft (est)
- 989.00
- Lot (est)
- 889.00
The heatmap indicates the level of crime in the area. The color of the heatmap indicates the crime severity and recency.
Metrics Year-on-Year
- Average area value
- 258,571.00 £Decreased by 18.16 %
- Est sale value
- 324,392.00 £Increased by 11.95 %
- Average area rental value
- 1,230.00 £/moIncreased by 21.30 %
- Est letting value
- 989.00 £/mo
- Est rental Yield
- 5.71 %Increased by 48.31 %
- Crime Rate
- 2.00 %Unchanged by 0.00 %
Agent Activity
Platinum Independent Estate Agents created the listing.
Nearby Schools
| Name | Type | Ofsted | Distance |
|---|---|---|---|
| Our Lady Star Of The Sea Catholic Primary School | Voluntary Aided School | Good | 0.30 KM |
| Ellesmere Port Catholic High School | Voluntary Aided School | Requires improvement | 0.37 KM |
| Hinderton School | Community Special School | Outstanding | 0.59 KM |
| Whitby Heath Primary School | Community School | Outstanding | 0.63 KM |
| The Whitby High School | Foundation School | Requires improvement | 0.63 KM |
Images
Nearby Streets
| Name | Average Price | Average Sqft | Distance |
|---|---|---|---|
| Wilsons Lane | £ 0 | 0 | 0.00 KM |
| Queens Avenue | £ 365,000 | 0 | 0.00 KM |
| Thames Dale | £ 0 | 0 | 0.00 KM |
| Fairview Road | £ 250,000 | 0 | 0.00 KM |
| Holmwood Drive | £ 0 | 0 | 0.00 KM |
Nearby Transport
| Name | NLC | TLC | Distance |
|---|---|---|---|
| Ellesmere Port | 2121 | ELP | 2.19 KM |
| Overpool | 2157 | OVE | 2.20 KM |
| Capenhurst | 2186 | CPU | 3.58 KM |
| Little Sutton | 2156 | LTT | 4.00 KM |
| Bache | 2187 | BAC | 7.04 KM |
Nearby Listings
| Address | Price | Type | Score | Distance |
|---|---|---|---|---|
| Kinnerley Road, Whitby | £ 270,000 | BUY | 7 / 10 | 0.00 KM |
| Kinnerley Road, Whitby | £ 225,000 | BUY | 8 / 10 | 0.00 KM |
| Parkfield Drive, Whitby, Ellesmere Port | £ 210,000 | BUY | 7 / 10 | 0.09 KM |
| Parkfield Drive, Whitby | £ 199,950 | BUY | 6 / 10 | 0.09 KM |
| Parkfield Drive, Whitby, Ellesmere Port, Cheshire, CH65 | £ 210,000 | BUY | 6 / 10 | 0.12 KM |
Nearby Properties
| Address | Price | Distance |
|---|---|---|
| 7 Kinnerley Road | £ 175,000 | 0.00 KM |
| 11 Kinnerley Road | £ 150,000 | 0.00 KM |
| 21 Kinnerley Road | £ 190,000 | 0.00 KM |
| 10 Parkfield Drive | £ 219,950 | 0.09 KM |
| 2 Parkfield Drive | £ 162,000 | 0.09 KM |