Pontgarreg, Llangrannog, Llandysul
WE

Pontgarreg, Llangrannog, Llandysul

By West Wales Properties

£ 350,000

Reviews

3 out of 5 stars

West Wales Properties says ..

A well presented period property with beautiful character features throughout. The property is situated in the rural village of Pontgarreg just two miles to the popular coastal village of Llangrannog and within easy reach of a range beaches along the Cardigan Bay coastline. The property...

Property Oracle says ..

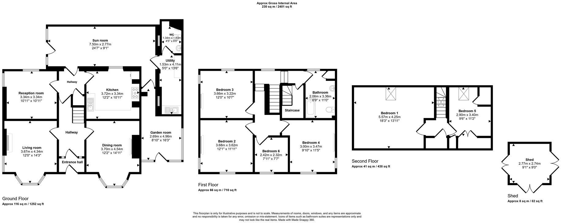
This property is a 6-bedroom, 1-bathroom detached house located in Pontgarreg, Ceredigion, Wales. It is listed at £350,000 and has 1,973.21 sqft of living space and a 2,475.70 sqft plot. The average house price in the area is £512,717, with an average of 1,251 sqft costing £409 per sqft. While the property is larger than average, its location is relatively remote with limited nearby amenities shown. The nearest school is 9.9km away. The property shows signs of needing some modernisation, and the garden appears to require some maintenance. The list price is significantly below the average for the area, however, given the condition and location, it may still represent reasonable value.

Therefore, we give this property 6 / 10. *Disclaimer: This is our option and does constitute a recommendation or financial advice. Do your own research. *

Price
7
Condition
6
Location
4
Land
7
Bedrooms
6
Bathrooms
1
Sqft (est)
1,973.21
Lot (est)
2,475.70

The heatmap indicates the level of crime in the area. The color of the heatmap indicates the crime severity and recency.

Metrics Year-on-Year

Average area value
398,765.00 £
Decreased by 0.35 %
from 400,154.00 £
Est sale value
781,391.16 £
Increased by 20.73 %
from 647,212.88 £
Average area rental value
1,263.00 £/mo
Increased by 3.52 %
from 1,220.00 £/mo
Est letting value
1,973.21 £/mo
Unchanged by 0.00 %
from 1,973.21 £/mo
Est rental Yield
3.80 %
Increased by 3.83 %
from 3.66 %
Crime Rate
0.00 %
from 0.00 %

Agent Activity

  • West Wales Properties created the listing.

Nearby Schools

NameTypeOfstedDistance
Ysgol Cei NewyddWelsh Establishment9.90 KM

Images

Front of Property Kitchen Bedroom Front of Property Hallway Living Room Dining Room Sun Room Kitchen Bedroom Bedroom Bathroom Front of Property View of Garden from First Floor Garden Area Parking Area Front of House Rear of House / Conservatory Front of Property View from Front Door Fireplace Living Room Bedroom View from Master Bedroom Landing Hallway Bedroom / Office Bedroom Bedroom Reception Room Front of Property / Summerhouse Front Garden Garden Property Side of Property Side View

Nearby Listings

AddressPriceTypeScoreDistance
Pontgarreg, Llangrannog, Llandysul £ 350,000BUY6 / 100.00 KM
Maes y Pentre, Pontgarreg, Near Llangrannog, SA44 £ 170,000BUY7 / 100.05 KM
Llangrannog, Llandysul, SA44 £ 200,000BUYUnknown0.12 KM
Pontgarreg, Nr Llangrannog, SA44 £ 495,000BUY7 / 100.15 KM
Pontgarreg, Llandysul, SA44 £ 495,000BUYUnknown0.17 KM

Nearby Properties

AddressPriceDistance
7 Mill View Road £ 125,0001.61 KM