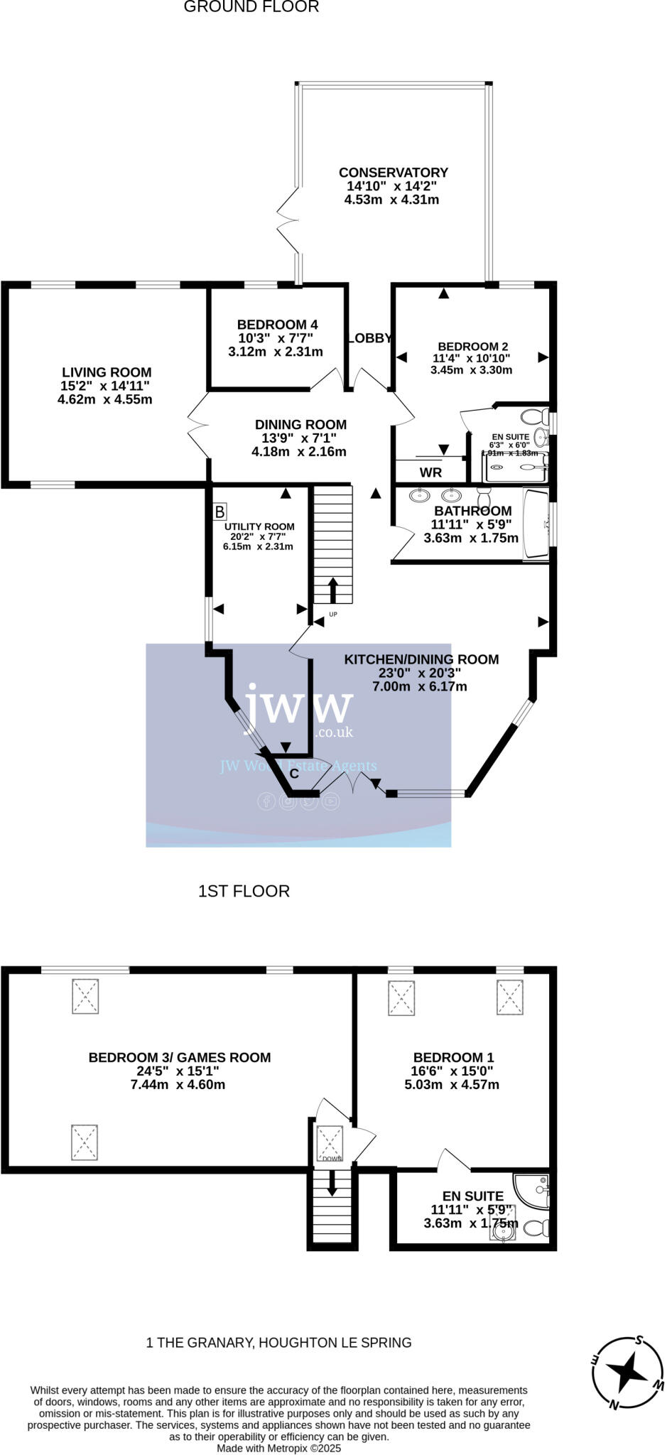
The Granary, Houghton Le Spring, Sunderland, DH4
By J W Wood
£ 400,000
Reviews
3 out of 5 stars
J W Wood says ..
Situated within a small private courtyard, this stunning barn conversion combines so many attractive features, that it really must be seen to be truly appreciated. The space, character and superb quality finish are amazing, and the property also includes a good-sized mature southerly facing back ...
Property Oracle says ..
The Granary is a charming property located in Houghton Le Spring, Sunderland. The property is a converted building, offering unique character features such as exposed beams and a spacious layout. The interior is well-presented and has been recently updated. The property benefits from a large garden with a patio area, ideal for outdoor entertaining. The location is peaceful yet convenient, with good access to local amenities and transport links. However, the list price is significantly higher than the average for the area, which may affect its overall value for money.
Therefore, we give this property 7 / 10. *Disclaimer: This is our option and does constitute a recommendation or financial advice. Do your own research. *
- Price
- 4
- Condition
- 9
- Location
- 7
- Land
- 8
- Bedrooms
- 4
- Bathrooms
- 3
- Sqft (est)
- 2,565.69
The heatmap indicates the level of crime in the area. The color of the heatmap indicates the crime severity and recency.
Metrics Year-on-Year
- Average area value
- 169,990.00 £Increased by 19.69 %
- Est sale value
- 446,430.06 £Increased by 16.78 %
- Average area rental value
- 845.00 £/moIncreased by 3.17 %
- Est letting value
- 0.00 £/mo
- Est rental Yield
- 5.97 %Decreased by 13.73 %
- Crime Rate
- 3.00 %Unchanged by 0.00 %
Agent Activity
J W Wood created the listing.
Nearby Schools
| Name | Type | Ofsted | Distance |
|---|---|---|---|
| Dubmire Primary | Academy Sponsor Led | Good | 1.07 KM |
| Burnside Academy Inspires | Academy Converter | Good | 1.12 KM |
| Sunderland Children'S Centre Coalfields | Children's Centre | 1.23 KM | |
| Newbottle Primary Academy | Academy Converter | Good | 1.70 KM |
| Kepier | Academy Converter | Requires improvement | 1.76 KM |
Images
Nearby Streets
| Name | Average Price | Average Sqft | Distance |
|---|---|---|---|
| Highfield Drive | £ 0 | 0 | 0.00 KM |
| Stoneleigh Close | £ 130,000 | 0 | 0.00 KM |
| Tintern Close | £ 85,000 | 0 | 0.00 KM |
| Murray Avenue | £ 0 | 0 | 0.00 KM |
| Bramble Close | £ 202,217 | 0 | 0.00 KM |
Nearby Transport
| Name | NLC | TLC | Distance |
|---|---|---|---|
| Chester-Le-Street | 7736 | CLS | 9.89 KM |
Nearby Listings
| Address | Price | Type | Score | Distance |
|---|---|---|---|---|
| The Granary, Houghton Le Spring, Sunderland, DH4 | £ 400,000 | BUY | 7 / 10 | 0.00 KM |
| North View Terrace, Colliery Row, Houghton Le Spring | £ 90,000 | BUY | 6 / 10 | 0.04 KM |
| Highbury, North View Terrace, Houghton-Le-Spring, DH4 | £ 545,000 | BUY | 7 / 10 | 0.10 KM |
| Moorsfield, Chilton Moor, Houghton Le Spring | £ 159,950 | BUY | 7 / 10 | 0.10 KM |
| Moors Close, Fencehouses , Houghton Le Spring, Tyne and Wear, DH4 5PE | £ 194,950 | BUY | 6 / 10 | 0.15 KM |
Nearby Properties
| Address | Price | Distance |
|---|---|---|
| 13 Moors Close | £ 117,500 | 0.10 KM |
| 24 Moors Close | £ 115,000 | 0.10 KM |
| 2 Moors Close | £ 130,000 | 0.10 KM |
| 27 Moors Close | £ 109,500 | 0.10 KM |
| 5 Moors Close | £ 105,000 | 0.10 KM |