Newborough Street, York
By Churchills Estate Agents
£ 235,000
Reviews
3 out of 5 stars
Churchills Estate Agents says ..
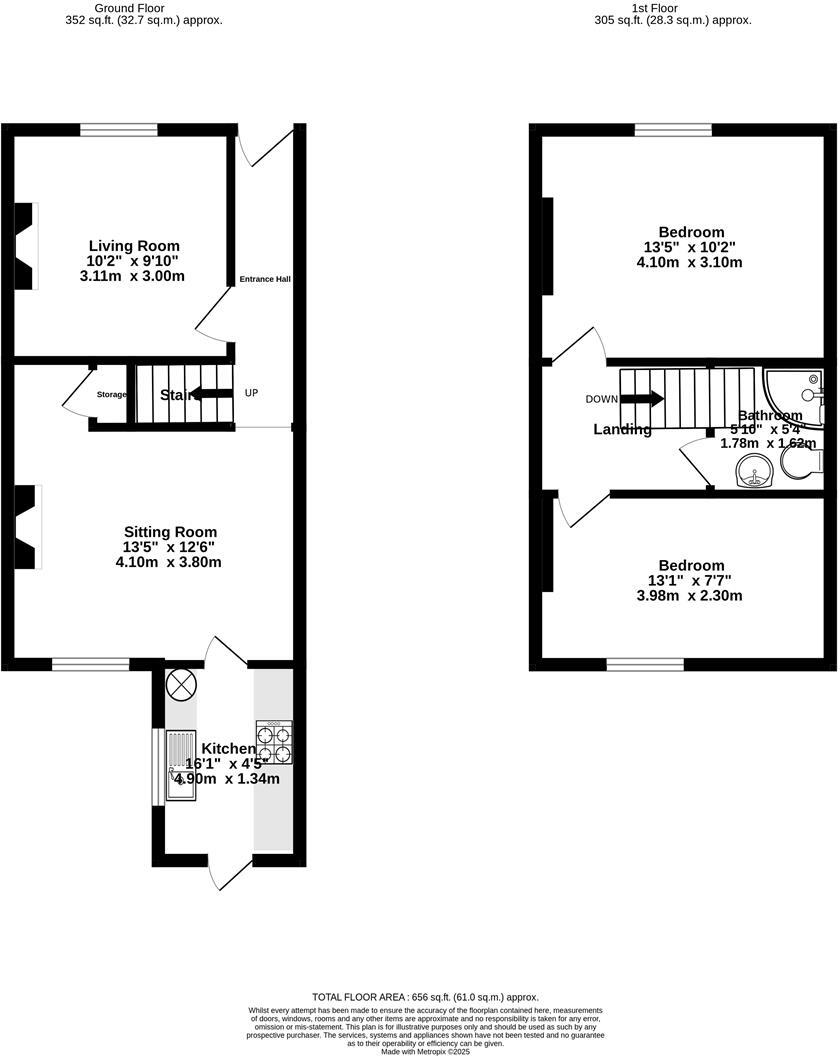
NO FORWARD CHAIN! UPSTAIRS BATHROOM! WALKING TO CITY CENTRE! We as agent agents are delighted to have the opportunity to present to the market this two bed Victorian terrace property nestled in this quiet street close to Bootham and York's bustling city centre. The property has Upvc windows and ...
Property Oracle says ..
This is a two-bedroom terraced house located on Newborough Street in Clifton, York. The property is in a popular residential area, close to local amenities, schools, and transport links. While the property requires some modernisation, it offers a good opportunity for buyers looking to put their own stamp on a home. The rear garden is a valuable asset, and the asking price appears reasonable given the location and size of the property. The property is within walking distance of York city centre and the train station, making it a convenient location for commuters or those who enjoy city living. Overall, this property represents a good investment opportunity in a sought-after location.
Therefore, we give this property 6 / 10. *Disclaimer: This is our option and does constitute a recommendation or financial advice. Do your own research. *
- Price
- 8
- Condition
- 5
- Location
- 7
- Land
- 4
- Bedrooms
- 2
- Bathrooms
- 1
- Sqft (est)
- 656.60
The heatmap indicates the level of crime in the area. The color of the heatmap indicates the crime severity and recency.
Metrics Year-on-Year
- Average area value
- 368,758.00 £Decreased by 22.24 %
- Est sale value
- 339,462.20 £Increased by 27.34 %
- Average area rental value
- 1,595.00 £/moDecreased by 3.10 %
- Est letting value
- 1,313.20 £/moIncreased by 100.00 %
- Est rental Yield
- 5.19 %Increased by 24.46 %
- Crime Rate
- 2.00 %Unchanged by 0.00 %
Agent Activity
Churchills Estate Agents created the listing.
Nearby Schools
| Name | Type | Ofsted | Distance |
|---|---|---|---|
| Bootham School | Other Independent School | 0.54 KM | |
| Clifton Green Primary School | Community School | Requires improvement | 0.69 KM |
| St Peter'S School 2-18 | Other Independent School | 0.72 KM | |
| Clifton Children'S Centre | Children's Centre | 0.80 KM | |
| York St John University | Higher Education Institutions | 0.96 KM |
Images
Nearby Streets
| Name | Average Price | Average Sqft | Distance |
|---|---|---|---|
| David Longhurst Way | £ 0 | 0 | 0.00 KM |
| Alf Patrick Court | £ 0 | 0 | 0.00 KM |
| Duncombe Square | £ 0 | 0 | 0.00 KM |
| Burton Court | £ 225,000 | 0 | 0.00 KM |
| Bridge Lane | £ 0 | 0 | 0.00 KM |
Nearby Transport
| Name | NLC | TLC | Distance |
|---|---|---|---|
| York | 8263 | YRK | 1.45 KM |
| Poppleton | 8254 | POP | 6.86 KM |
Nearby Listings
| Address | Price | Type | Score | Distance |
|---|---|---|---|---|
| Newborough Street, York | £ 235,000 | BUY | 6 / 10 | 0.00 KM |
| Newborough Street, York, North Yorkshire, YO30 | £ 315,000 | BUY | 6 / 10 | 0.02 KM |
| Newborough Street, York, YO30 | £ 275,000 | BUY | 5 / 10 | 0.03 KM |
| Newborough Street, York, YO30 | £ 475,000 | BUY | 7 / 10 | 0.04 KM |
| Newborough Street, York | £ 240,000 | BUY | 4 / 10 | 0.04 KM |
Nearby Properties
| Address | Price | Distance |
|---|---|---|
| 5 Newborough Street | £ 150,000 | 0.02 KM |
| 27 Newborough Street | £ 167,100 | 0.02 KM |
| 9 Newborough Street | £ 217,500 | 0.02 KM |
| 85 Newborough Street | £ 143,000 | 0.02 KM |
| 49 Newborough Street | £ 137,000 | 0.02 KM |