Balmer & Co says ..
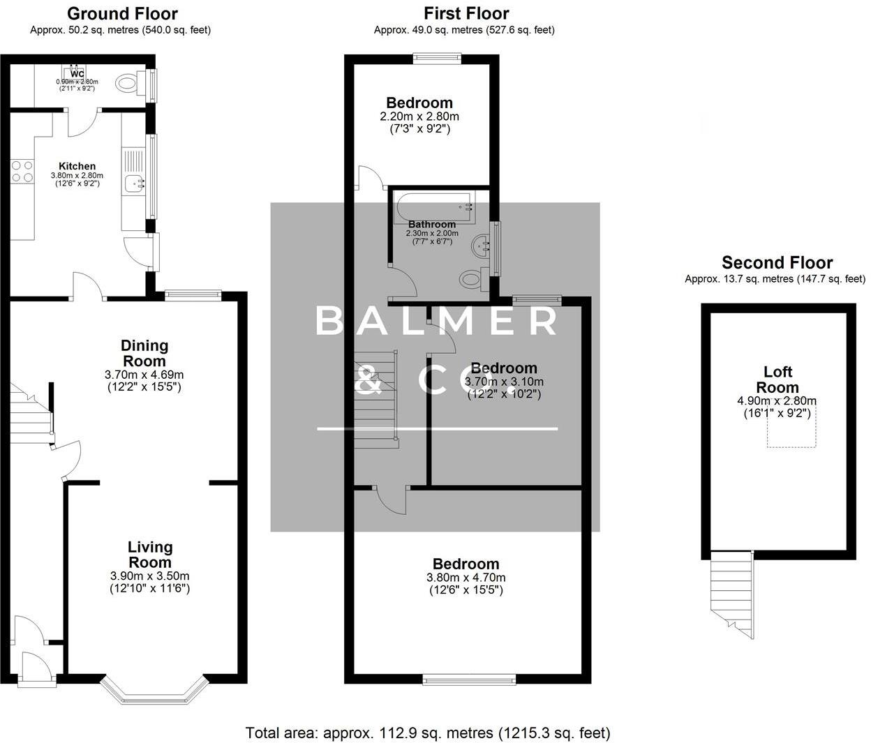
BALMER & CO in LEIGH are delighted to offer FOR SALE this fantastic three bedroom mid-terrace house close to Leigh town centre. Offering excellent family living accommodation including two reception rooms and a converted loft room, this property is very nicely presented throughout and simply must...
Property Oracle says ..
This is a terraced property located on Wilkinson Street, Leigh. It features three bedrooms and two bathrooms, with a total area of 1,215.25 sq ft. The property includes a small, paved garden. The house is in generally good condition, with modern fixtures. The property is located near several schools, but the nearest train station is a few kilometers away. The listing price is £170,000, which is above the local average but may be justified by the property’s size and condition.
Therefore, we give this property 6 / 10. *Disclaimer: This is our option and does constitute a recommendation or financial advice. Do your own research. *
- Price
- 7
- Condition
- 7
- Location
- 6
- Land
- 5
- Bedrooms
- 3
- Bathrooms
- 2
- Sqft (est)
- 1,215.25
The heatmap indicates the level of crime in the area. The color of the heatmap indicates the crime severity and recency.
Metrics Year-on-Year
- Average area value
- 158,694.00 £Increased by 2.03 %
- Est sale value
- 277,077.00 £Increased by 70.15 %
- Average area rental value
- 976.00 £/moIncreased by 24.81 %
- Est letting value
- 1,215.25 £/mo
- Est rental Yield
- 7.38 %Increased by 22.39 %
- Crime Rate
- 0.00 %
Agent Activity
Balmer & Co created the listing.
Nearby Schools
| Name | Type | Ofsted | Distance |
|---|---|---|---|
| Leigh St Mary'S Cofe Primary School | Voluntary Aided School | Good | 0.26 KM |
| Leigh Central Sure Start Children'S Centre | Children's Centre Linked Site | 0.37 KM | |
| Leigh Central Primary School | Community School | Good | 0.37 KM |
| Sacred Heart Catholic Primary School Leigh | Voluntary Aided School | Good | 0.41 KM |
| Christ Church Cofe Primary School, Pennington | Voluntary Aided School | Good | 0.47 KM |
Images
Nearby Streets
| Name | Average Price | Average Sqft | Distance |
|---|---|---|---|
| Cook Street | £ 0 | 0 | 0.00 KM |
| Navigation Close | £ 0 | 0 | 0.00 KM |
| Hill Street | £ 0 | 0 | 0.00 KM |
| Spinning Jenny Way | £ 155,000 | 0 | 0.00 KM |
| Walmersley Court | £ 0 | 0 | 0.00 KM |
Nearby Transport
| Name | NLC | TLC | Distance |
|---|---|---|---|
| Daisy Hill | 2777 | DSY | 4.86 KM |
| Hag Fold | 2585 | HGF | 5.17 KM |
| Atherton | 2584 | ATN | 6.02 KM |
| Westhoughton | 2619 | WHG | 6.61 KM |
| Hindley | 2398 | HIN | 7.81 KM |
Nearby Listings
| Address | Price | Type | Score | Distance |
|---|---|---|---|---|
| Wilkinson Street, Leigh, WN7 | £ 170,000 | BUY | 6 / 10 | 0.00 KM |
| Wilkinson Street, Leigh, Greater Manchester, WN7 | £ 135,000 | BUY | 6 / 10 | 0.01 KM |
| Leigh , WN7 | £ 125,000 | BUY | 6 / 10 | 0.05 KM |
| Flats 1-14 Alexandra Apartments, Wilkinson Street, Leigh, Lancashire, WN7 4EN | £ 750,000 | BUY | 4 / 10 | 0.06 KM |
| Wilkinson Street, Leigh, WN7 | £ 179,950 | BUY | 6 / 10 | 0.07 KM |
Nearby Properties
| Address | Price | Distance |
|---|---|---|
| 14 Wilkinson Street | £ 65,000 | 0.01 KM |
| 46 Wilkinson Street | £ 33,995 | 0.01 KM |
| 12 Wilkinson Street | £ 67,000 | 0.01 KM |
| 44 Wilkinson Street | £ 85,000 | 0.01 KM |
| 16 Wilkinson Street | £ 73,000 | 0.01 KM |