Castle Irwell, Cromwell Road, Salford, M6
By Savills New Homes
£ 469,900
Reviews
3 out of 5 stars
Savills New Homes says ..
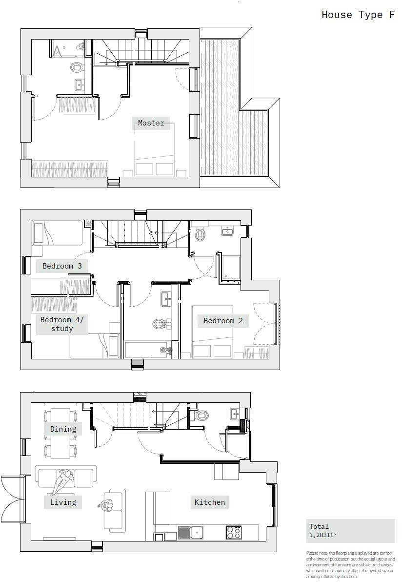
Available immediately!. A brand new four bedroom home set over three levels with a spacious garden and parking set on a beautiful riverside setting, whilst still close by to the city centre.
Property Oracle says ..
The property is a new build semi-detached house located in Salford, Greater Manchester. The location benefits from being relatively close to several train stations providing links to Manchester city centre and beyond. There are also a number of schools in the vicinity, including Lower Kersal Community Primary School which has a good Ofsted rating. The property itself is modern and well-presented, appearing to be in excellent condition based on the provided images. The plot size is relatively small, however, this is typical for new-build developments in the area. The list price of £469,900 seems high considering the average house price in the area is significantly lower at £242,498. However, the average price per sqft is £244 and given the property is new and modern it is within the range of expectations. Additional factors such as the specific features and finishes of the property would need to be considered for a more precise valuation.
Therefore, we give this property 6 / 10. *Disclaimer: This is our option and does constitute a recommendation or financial advice. Do your own research. *
- Price
- 6
- Condition
- 10
- Location
- 7
- Land
- 4
- Bedrooms
- 4
- Bathrooms
- 4
- Sqft (est)
- 1,203.00
- Lot (est)
- 1,203.00
The heatmap indicates the level of crime in the area. The color of the heatmap indicates the crime severity and recency.
Metrics Year-on-Year
- Average area value
- 228,629.00 £Increased by 9.74 %
- Est sale value
- 363,306.00 £Increased by 14.83 %
- Average area rental value
- 1,039.00 £/moDecreased by 14.34 %
- Est letting value
- 1,203.00 £/moUnchanged by 0.00 %
- Est rental Yield
- 5.45 %Decreased by 22.03 %
- Crime Rate
- 0.00 %
Agent Activity
Savills New Homes created the listing.
Nearby Schools
| Name | Type | Ofsted | Distance |
|---|---|---|---|
| The Albion Academy | Academy Converter | 0.63 KM | |
| Charlestown And Lower Kersal And Summerville Children'S Centre | Children's Centre Linked Site | 0.64 KM | |
| Lower Kersal Community Primary School | Community School | Good | 0.69 KM |
| Ahavas Torah Boys Academy | Other Independent School | Requires improvement | 0.70 KM |
| Tiferes | Other Independent School | Good | 0.71 KM |
Images
Nearby Streets
| Name | Average Price | Average Sqft | Distance |
|---|---|---|---|
| Jockey Street | £ 0 | 0 | 0.00 KM |
| Turnstile Walk | £ 0 | 0 | 0.00 KM |
| Victoria Lodge | £ 0 | 0 | 0.00 KM |
| Aquarius Lane | £ 0 | 0 | 0.00 KM |
| Benedict Close | £ 190,000 | 0 | 0.00 KM |
Nearby Transport
| Name | NLC | TLC | Distance |
|---|---|---|---|
| Salford Crescent | 2794 | SLD | 1.42 KM |
| Salford Central | 2798 | SFD | 2.69 KM |
| Manchester Victoria | 2970 | MCV | 3.62 KM |
| Deansgate | 2963 | DGT | 3.69 KM |
| Manchester Oxford Road | 2966 | MCO | 4.43 KM |
Nearby Listings
| Address | Price | Type | Score | Distance |
|---|---|---|---|---|
| Castle Irwell, Cromwell Road, Salford, M6 | £ 469,900 | BUY | 6 / 10 | 0.00 KM |
| Cromwell Road, SALFORD, Lancashire, M6 | £ 280,000 | BUY | 6 / 10 | 0.02 KM |
| Cromwell Road, Salford, M6 | £ 170,000 | BUY | 5 / 10 | 0.12 KM |
| Jockey Street, Salford, M6 | £ 280,000 | BUY | 7 / 10 | 0.14 KM |
| Seaford Road, Salford, Greater Manchester, M6 | £ 220,000 | BUY | Unknown | 0.19 KM |
Nearby Properties
| Address | Price | Distance |
|---|---|---|
| 159 Seaford Road | £ 72,000 | 0.19 KM |
| 119 Seaford Road | £ 69,950 | 0.19 KM |
| 153 Seaford Road | £ 82,000 | 0.19 KM |
| 113 Seaford Road | £ 144,000 | 0.19 KM |
| 105 Seaford Road | £ 97,000 | 0.19 KM |