Robert Holmes & Co says ..
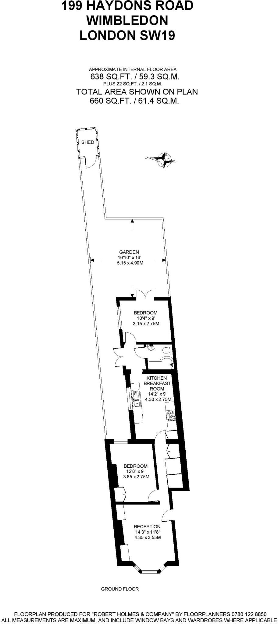
The property consists of two good size double bedroom, a bright reception room to front with a bay window with plantation shutters and a period fireplace. The hallway has been fitted with clever storage designed by the current owner housing the tumble dryer and is leading to a generous kitchen-di...
Property Oracle says ..
Therefore, we give this property 6 / 10. *Disclaimer: This is our option and does constitute a recommendation or financial advice. Do your own research. *
- Price
- 5
- Condition
- 7
- Location
- 8
- Land
- 7
- Bedrooms
- 2
- Bathrooms
- 1
- Sqft (est)
- 660.00
- Lot (est)
- 660.00
The heatmap indicates the level of crime in the area. The color of the heatmap indicates the crime severity and recency.
Metrics Year-on-Year
- Average area value
- 446,826.00 £Increased by 0.22 %
- Est sale value
- 274,560.00 £Increased by 9.19 %
- Average area rental value
- 1,514.00 £/moDecreased by 8.57 %
- Est letting value
- 660.00 £/moUnchanged by 0.00 %
- Est rental Yield
- 4.07 %Decreased by 8.74 %
- Crime Rate
- 5.00 %Unchanged by 0.00 %
from 445,846.00 £
from 251,460.00 £
from 1,656.00 £/mo
from 660.00 £/mo
from 4.46 %
from 5.00 %
Agent Activity
Robert Holmes & Co created the listing.
Nearby Schools
| Name | Type | Ofsted | Distance |
|---|---|---|---|
| Garfield Primary School | Community School | Good | 0.41 KM |
| All Saints' Cofe Primary School | Voluntary Aided School | Good | 0.62 KM |
| The Priory Cofe School | Voluntary Aided School | Good | 0.73 KM |
| Holy Trinity Cofe Primary School | Voluntary Aided School | Outstanding | 0.87 KM |
| Harris Academy Wimbledon | Free Schools | 0.90 KM |
Images
Nearby Streets
| Name | Average Price | Average Sqft | Distance |
|---|---|---|---|
| Edith Road | £ 0 | 0 | 0.00 KM |
| Milton Road | £ 680,000 | 0 | 0.00 KM |
| Cowdrey Road | £ 400,000 | 0 | 0.00 KM |
| Trafalgar Road | £ 975,000 | 0 | 0.00 KM |
| Haydons Road | £ 0 | 0 | 0.00 KM |
Nearby Transport
| Name | NLC | TLC | Distance |
|---|---|---|---|
| Haydons Road | 5289 | HYR | 0.43 KM |
| Wimbledon | 5578 | WIM | 2.07 KM |
| Earlsfield | 5584 | EAD | 2.29 KM |
| South Merton | 5292 | SMO | 2.85 KM |
| Tooting | 5389 | TOO | 2.93 KM |
Nearby Listings
| Address | Price | Type | Score | Distance |
|---|---|---|---|---|
| Haydons Road, SW19 | £ 500,000 | BUY | 6 / 10 | 0.00 KM |
| Haydons Road, Wimbledon, SW19 | £ 550,000 | BUY | 6 / 10 | 0.02 KM |
| Haydons Road, Wimbledon | £ 350,000 | BUY | Unknown | 0.03 KM |
| Haydons Road, Wimbledon | £ 350,000 | BUY | 6 / 10 | 0.07 KM |
| Haydons Road, Wimbledon | £ 350,000 | BUY | 6 / 10 | 0.07 KM |
Nearby Properties
| Address | Price | Distance |
|---|---|---|
| 209a Haydons Road | £ 180,000 | 0.00 KM |
| 199 Haydons Road | £ 365,000 | 0.00 KM |
| 195 Haydons Road | £ 720,000 | 0.00 KM |
| 205 Haydons Road | £ 720,500 | 0.00 KM |
| 215 Haydons Road | £ 290,000 | 0.07 KM |