Banstead Road, Banstead, SM7 1QZ
By Greenfield Estate Agents
£ 915,000
Reviews
3 out of 5 stars
Greenfield Estate Agents says ..
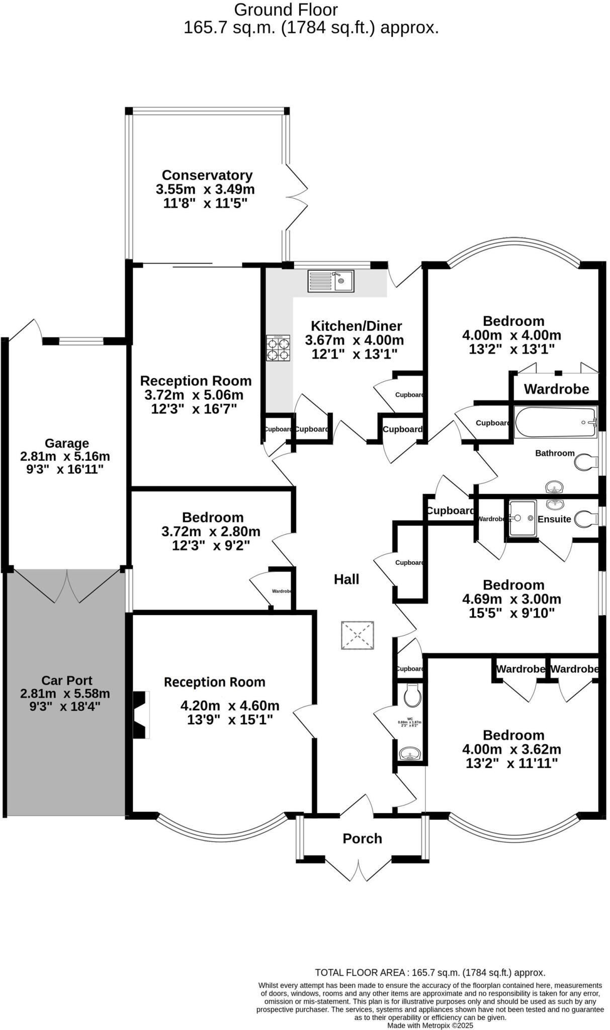
A RARE GEM OF A QUALITY BUNGALOW - Situated on the highly sought after Banstead Road betwixt Ewell & Banstead, is this supremely spacious & immaculately maintained 4 bed, double bay fronted bungalow, with carriage driveway, attached garage and secluded rear garden - has to be seen to be appreciated
Property Oracle says ..
This detached bungalow on Banstead Road, Cheam, offers a blend of space and potential. The property features four bedrooms and two bathrooms, making it suitable for families. While the interior could benefit from modernisation, the large garden and convenient location near schools and transportation add to its appeal. The property includes a garage and a patio, enhancing its functionality and outdoor living space. Overall, this property presents a solid opportunity for buyers looking to create a comfortable home in a desirable area.
Therefore, we give this property 7 / 10. *Disclaimer: This is our option and does constitute a recommendation or financial advice. Do your own research. *
- Price
- 7
- Condition
- 6
- Location
- 7
- Land
- 8
- Bedrooms
- 4
- Bathrooms
- 2
- Sqft (est)
- 1,783.58
The heatmap indicates the level of crime in the area. The color of the heatmap indicates the crime severity and recency.
Metrics Year-on-Year
- Average area value
- 783,500.00 £Decreased by 0.05 %
- Est sale value
- 1,109,386.76 £Increased by 5.78 %
- Average area rental value
- 2,348.00 £/moIncreased by 2.67 %
- Est letting value
- 1,783.58 £/moUnchanged by 0.00 %
- Est rental Yield
- 3.60 %Increased by 2.86 %
- Crime Rate
- 2.00 %Unchanged by 0.00 %
Agent Activity
Greenfield Estate Agents created the listing.
Nearby Schools
| Name | Type | Ofsted | Distance |
|---|---|---|---|
| Warren Mead Junior School | Academy Converter | Good | 1.42 KM |
| Warren Mead Infant School | Academy Converter | 1.56 KM | |
| Cuddington Croft Primary School | Academy Converter | Good | 1.79 KM |
| Banstead Infant School | Academy Converter | Good | 1.95 KM |
| Ymca Sure Start Children'S Centre In Banstead | Children's Centre | 2.08 KM |
Images
Nearby Streets
| Name | Average Price | Average Sqft | Distance |
|---|---|---|---|
| Acacia Drive | £ 625,000 | 0 | 0.00 KM |
| Birch Close | £ 625,000 | 0 | 0.00 KM |
| Chaucer Close | £ 0 | 0 | 0.00 KM |
| Brambling Close | £ 0 | 0 | 0.00 KM |
| Fairview | £ 1,250,000 | 0 | 0.00 KM |
Nearby Transport
| Name | NLC | TLC | Distance |
|---|---|---|---|
| Banstead | 5348 | BAD | 1.10 KM |
| Epsom Downs | 5361 | EPD | 2.33 KM |
| Cheam | 5352 | CHE | 2.40 KM |
| Ewell East | 5415 | EWE | 2.51 KM |
| Belmont | 5350 | BLM | 2.66 KM |
Nearby Listings
| Address | Price | Type | Score | Distance |
|---|---|---|---|---|
| Banstead Road, Banstead, SM7 1QZ | £ 915,000 | BUY | 7 / 10 | 0.00 KM |
| Banstead Road, Banstead, SM7 | £ 1,000,000 | BUY | 7 / 10 | 0.07 KM |
| Walnut Tree Close, Banstead, Surrey, SM7 | £ 950,000 | BUY | 8 / 10 | 0.09 KM |
| Gilhams Avenue, Banstead | £ 1,100,000 | BUY | 6 / 10 | 0.14 KM |
| Banstead Road, Banstead, Surrey, SM7 | £ 1,100,000 | BUY | 7 / 10 | 0.17 KM |
Nearby Properties
| Address | Price | Distance |
|---|---|---|
| 24 Gilhams Avenue | £ 845,000 | 0.19 KM |
| 6 Gilhams Avenue | £ 540,000 | 0.19 KM |
| 42 Gilhams Avenue | £ 1,250,000 | 0.19 KM |
| 8 Gilhams Avenue | £ 279,000 | 0.19 KM |
| 40 Gilhams Avenue | £ 540,000 | 0.19 KM |