Glendale Mews, Beckenham, Kent
By Langford Russell
£ 630,000
Reviews
3 out of 5 stars
Langford Russell says ..
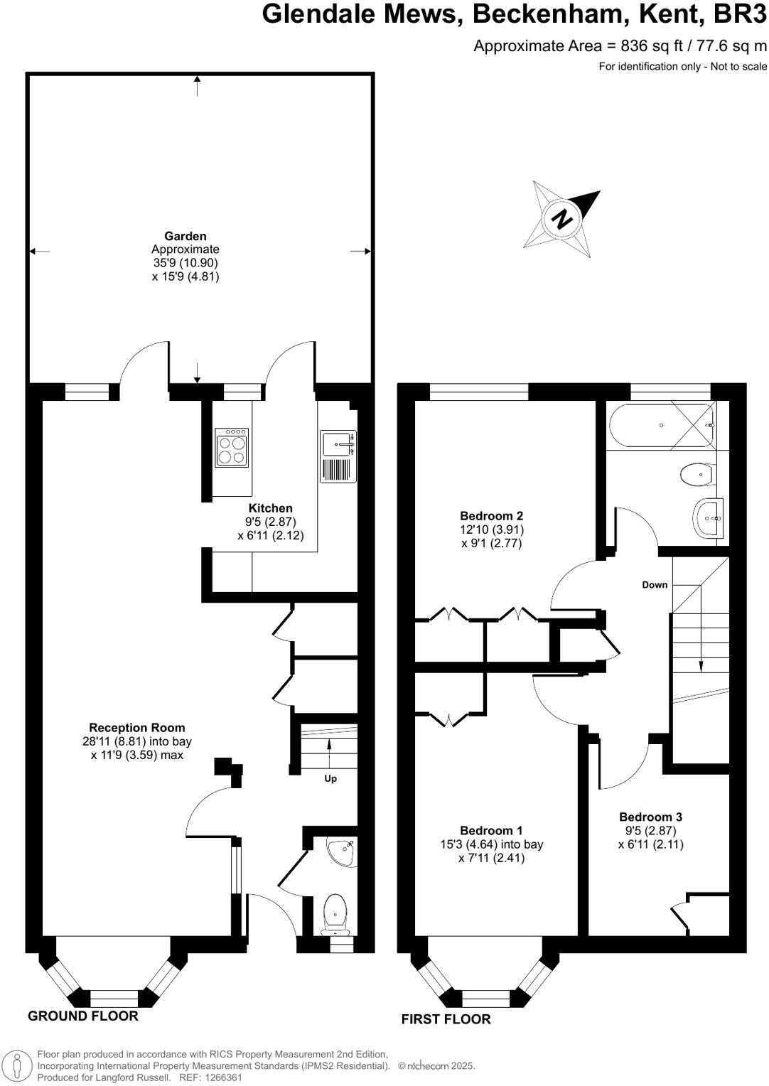
Offered to the market is this three bedroom terraced house set in a desirable location close to the heart of Beckenham, providing excellent transport links into Central London. The property comprises of a bright and airy entrance hall with a downstairs W/C, Leading through into an ope...
Property Oracle says ..
The property is a 3-bedroom, 1-bathroom terraced house located in Glendale Mews, Beckenham, Kent, BR3 5TY. It has a plot size of 836 sqft and a total area of 1212 sqft. The list price is £630,000.
The property appears to be in good condition based on the provided images. The kitchen and bathroom have recently been modernised with contemporary fittings. The rest of the property presents as clean and well-maintained, though largely undecorated, allowing a buyer to personalize the space. There is a small, manageable garden.
The location in Beckenham is desirable. Beckenham Junction train station is within close proximity, providing convenient access to London and other areas. Several well-regarded schools are also nearby, including Clare House Primary School (Outstanding Ofsted rating) and Harris Academy Beckenham (Outstanding Ofsted rating). This makes the property attractive to families.
Considering the average price of similar properties in the area (£490,669) and the average price per sqft (£492), the list price of £630,000 seems slightly high, but not unreasonable. The property’s modernised kitchen and bathroom, along with its location and garden, justify a premium compared to the average. However, the lack of information on the condition of comparable properties makes a precise price comparison difficult. Nearby comparable properties show a range of prices, with some slightly below and others slightly above the listed price.
Therefore, we give this property 7 / 10. *Disclaimer: This is our option and does constitute a recommendation or financial advice. Do your own research. *
- Price
- 7
- Condition
- 8
- Location
- 9
- Land
- 6
- Bedrooms
- 3
- Bathrooms
- 1
- Sqft (est)
- 1,212.00
- Lot (est)
- 836.00
The heatmap indicates the level of crime in the area. The color of the heatmap indicates the crime severity and recency.
Metrics Year-on-Year
- Average area value
- 440,454.00 £Decreased by 13.97 %
- Est sale value
- 645,996.00 £Increased by 14.62 %
- Average area rental value
- 1,581.00 £/moDecreased by 15.18 %
- Est letting value
- 1,212.00 £/moUnchanged by 0.00 %
- Est rental Yield
- 4.31 %Decreased by 1.37 %
- Crime Rate
- 5.00 %Unchanged by 0.00 %
Agent Activity
Langford Russell created the listing.
Nearby Schools
| Name | Type | Ofsted | Distance |
|---|---|---|---|
| St Christophers The Hall School | Other Independent School | 0.55 KM | |
| Harris Primary Academy Beckenham Green | Academy Converter | 0.61 KM | |
| St Mary'S Catholic Primary School | Academy Converter | Good | 0.63 KM |
| Clare House Primary School | Academy Converter | Outstanding | 0.65 KM |
| Harris Academy Beckenham | Academy Sponsor Led | Outstanding | 1.29 KM |
Images
Nearby Streets
| Name | Average Price | Average Sqft | Distance |
|---|---|---|---|
| St Georges Road | £ 275,000 | 0 | 0.00 KM |
| Hannah Close | £ 1,050,000 | 0 | 0.00 KM |
| Southwater Close | £ 0 | 0 | 0.00 KM |
| Fisher Court | £ 0 | 0 | 0.00 KM |
| Maywood Close | £ 1,100,000 | 0 | 0.00 KM |
Nearby Transport
| Name | NLC | TLC | Distance |
|---|---|---|---|
| Beckenham Junction | 5046 | BKJ | 0.95 KM |
| Ravensbourne | 5083 | RVB | 1.32 KM |
| Beckenham Hill | 5076 | BEC | 1.83 KM |
| New Beckenham | 5058 | NBC | 2.14 KM |
| Shortlands | 5084 | SRT | 2.20 KM |
Nearby Listings
| Address | Price | Type | Score | Distance |
|---|---|---|---|---|
| Glendale Mews, Beckenham, Kent | £ 630,000 | BUY | 7 / 10 | 0.00 KM |
| Glendale Mews, Beckenham, BR3 | £ 650,000 | BUY | 7 / 10 | 0.03 KM |
| Westgate Road, Beckenham, BR3 | £ 450,000 | BUY | 6 / 10 | 0.08 KM |
| Glendale Mews, Beckenham | £ 775,000 | BUY | Unknown | 0.09 KM |
| Albemarle Road, Beckenham, BR3 | £ 525,000 | BUY | 7 / 10 | 0.13 KM |
Nearby Properties
| Address | Price | Distance |
|---|---|---|
| 18 Glendale Mews | £ 770,000 | 0.02 KM |
| 15 Glendale Mews | £ 634,000 | 0.02 KM |
| 12 Glendale Mews | £ 500,000 | 0.02 KM |
| 6 Glendale Mews | £ 195,000 | 0.02 KM |
| 7 Glendale Mews | £ 491,000 | 0.02 KM |