DA
Triumph Place, Teignmouth, TQ14
By Dart & Partners
£ 395,000
Reviews
3 out of 5 stars
Dart & Partners says ..
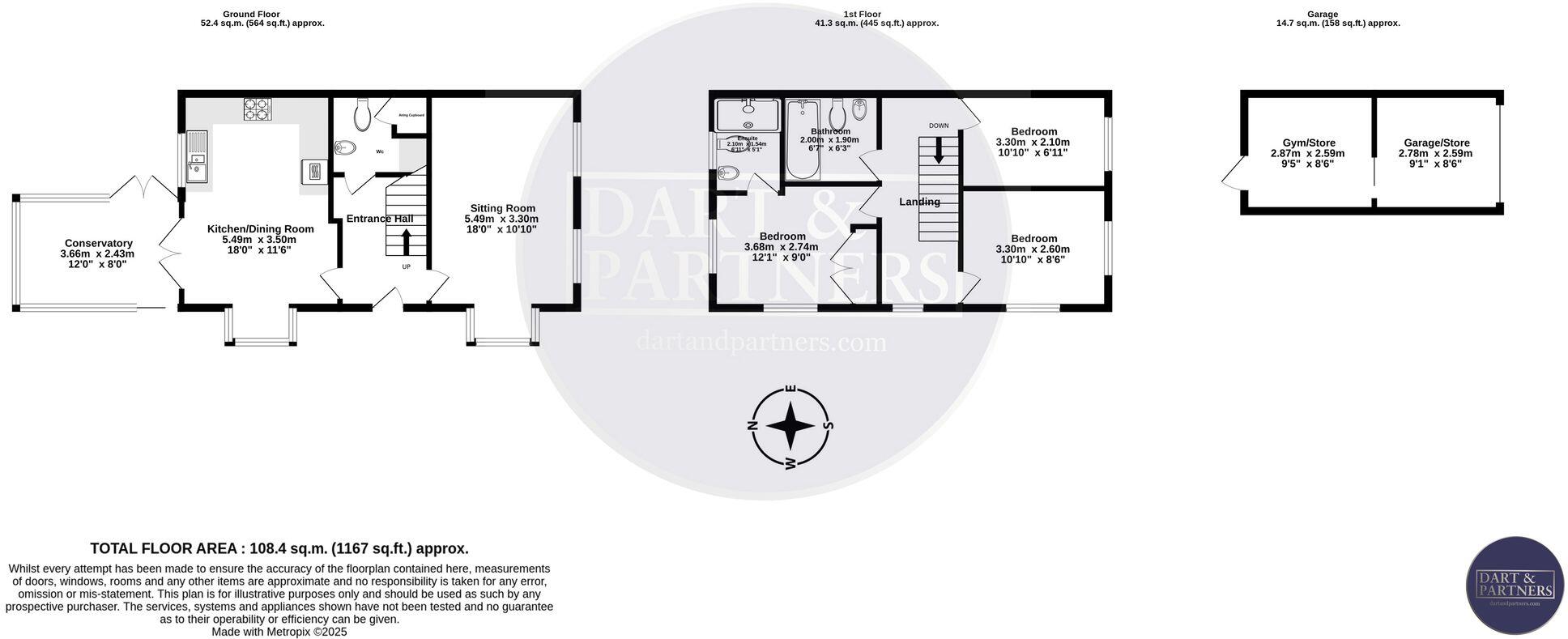
This superb detached home offers spacious, light-filled accommodation, thoughtfully designed for modern living.
Property Oracle says ..
Therefore, we give this property 7 / 10. *Disclaimer: This is our option and does constitute a recommendation or financial advice. Do your own research. *
- Price
- 6
- Condition
- 8
- Location
- 7
- Land
- 7
- Bedrooms
- 3
- Bathrooms
- 2
- Sqft (est)
- 930.72
The heatmap indicates the level of crime in the area. The color of the heatmap indicates the crime severity and recency.
Metrics Year-on-Year
- Average area value
- 199,417.00 £Decreased by 57.59 %
- Est sale value
- 387,179.52 £Increased by 22.71 %
- Average area rental value
- 1,250.00 £/moIncreased by 20.66 %
- Est letting value
- 1,861.44 £/mo
- Est rental Yield
- 7.52 %Increased by 184.85 %
- Crime Rate
- 3.00 %Unchanged by 0.00 %
from 470,234.00 £
from 315,514.08 £
from 1,036.00 £/mo
from 0.00 £/mo
from 2.64 %
from 3.00 %
Agent Activity
Dart & Partners created the listing.
Nearby Schools
| Name | Type | Ofsted | Distance |
|---|---|---|---|
| Trinity School | Other Independent School | 1.15 KM | |
| Teignmouth Community School, Exeter Road | Academy Converter | Requires improvement | 1.35 KM |
| Hazeldown School | Community School | Good | 1.38 KM |
| Orchard Manor School | Academy Special Sponsor Led | 2.13 KM | |
| Our Lady And St Patrick'S Roman Catholic Primary School | Academy Sponsor Led | Good | 2.31 KM |
Images
Nearby Streets
| Name | Average Price | Average Sqft | Distance |
|---|---|---|---|
| Jubilee Close | £ 0 | 0 | 0.00 KM |
| Saint Michaels Road | £ 0 | 0 | 0.00 KM |
| Abbey Close | £ 0 | 0 | 0.00 KM |
| Cedar Close | £ 550,000 | 0 | 0.00 KM |
| Elm Grove | £ 0 | 0 | 0.00 KM |
Nearby Transport
| Name | NLC | TLC | Distance |
|---|---|---|---|
| Teignmouth | 3430 | TGM | 1.29 KM |
| Dawlish | 3408 | DWL | 3.77 KM |
| Dawlish Warren | 3409 | DWW | 6.84 KM |
| Starcross | 3413 | SCS | 9.01 KM |
Nearby Listings
| Address | Price | Type | Score | Distance |
|---|---|---|---|---|
| Triumph Place, Teignmouth, Devon | £ 415,000 | BUY | Unknown | 0.00 KM |
| Triumph Place, Teignmouth, TQ14 | £ 395,000 | BUY | 7 / 10 | 0.00 KM |
| Triumph Place, Teignmouth, TQ14 | £ 335,000 | BUY | 7 / 10 | 0.00 KM |
| Triumph Place, Teignmouth, TQ14 | £ 350,000 | BUY | 8 / 10 | 0.00 KM |
| Triumph Place, Teignmouth, Devon | £ 380,000 | BUY | Unknown | 0.00 KM |
Nearby Properties
| Address | Price | Distance |
|---|---|---|
| 24 Triumph Place | £ 285,000 | 0.01 KM |
| 17 Triumph Place | £ 274,995 | 0.01 KM |
| 20 Triumph Place | £ 275,000 | 0.01 KM |
| 13 Triumph Place | £ 347,000 | 0.01 KM |
| 12 Triumph Place | £ 252,000 | 0.01 KM |