Elwy says ..
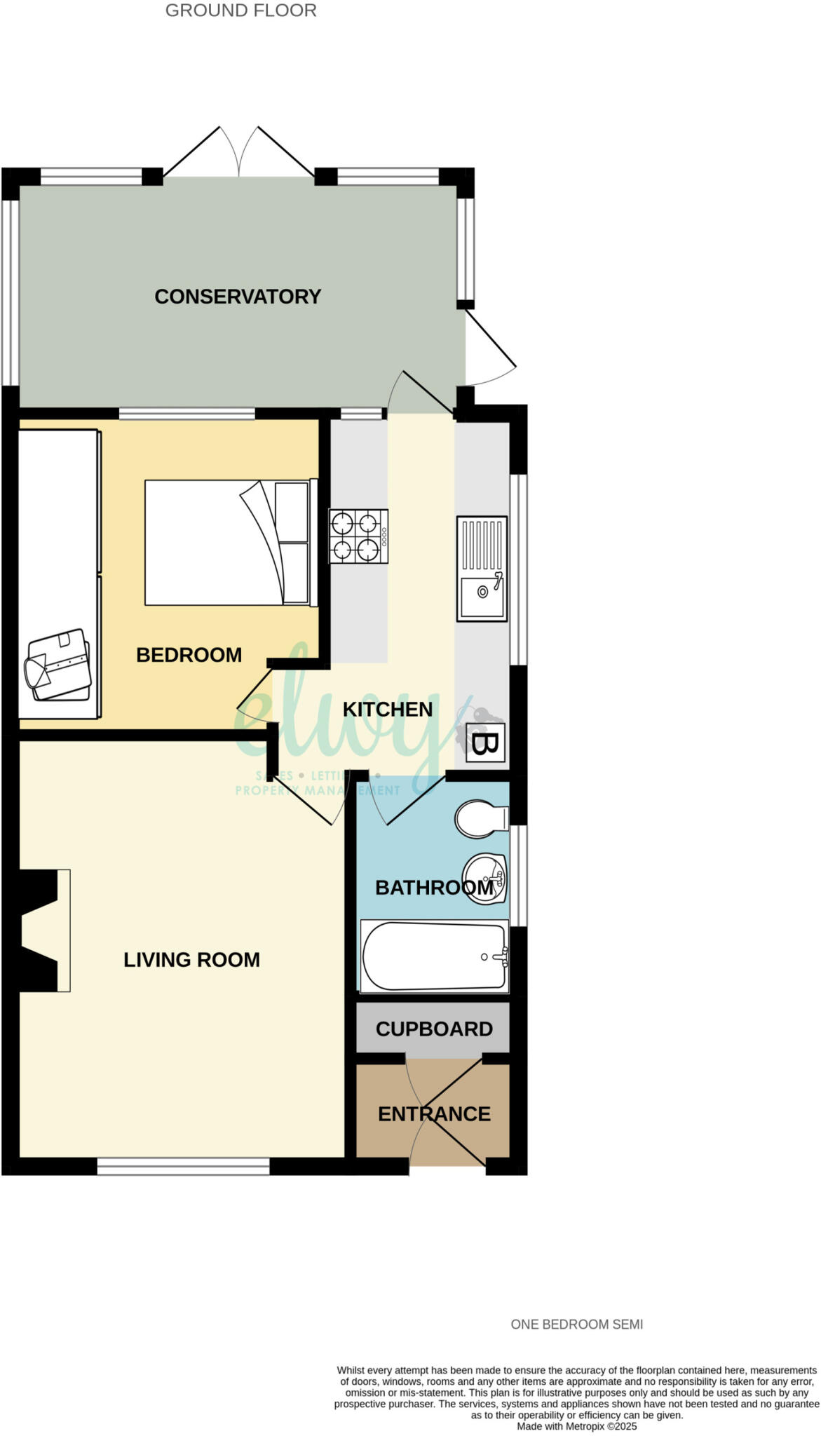
Elwy are pleased to offer for sale this well presented, one bedroom semi detached bungalow, located in a quiet and sought after residential area of the popular coastal town of Towyn. Just a short distance from the coast, this move in ready home is ideal for first time buyers, or anyone seeking a ...
Property Oracle says ..
Therefore, we give this property 6 / 10. *Disclaimer: This is our option and does constitute a recommendation or financial advice. Do your own research. *
- Price
- 6
- Condition
- 8
- Location
- 7
- Land
- 4
- Bedrooms
- 1
- Bathrooms
- 1
- Sqft (est)
- 458.00
The heatmap indicates the level of crime in the area. The color of the heatmap indicates the crime severity and recency.
Metrics Year-on-Year
- Average area value
- 401,278.00 £Increased by 42.31 %
- Est sale value
- 227,168.00 £Increased by 69.28 %
- Average area rental value
- 1,053.00 £/moDecreased by 6.32 %
- Est letting value
- 458.00 £/moUnchanged by 0.00 %
- Est rental Yield
- 3.15 %Decreased by 34.10 %
- Crime Rate
- 5.00 %Unchanged by 0.00 %
from 281,975.00 £
from 134,194.00 £
from 1,124.00 £/mo
from 458.00 £/mo
from 4.78 %
from 5.00 %
Agent Activity
Elwy created the listing.
Nearby Schools
| Name | Type | Ofsted | Distance |
|---|---|---|---|
| Ysgol Maes Owen | Welsh Establishment | 1.12 KM | |
| Ysgol Y Foryd | Welsh Establishment | 1.15 KM | |
| St George Controlled Primary School | Welsh Establishment | 3.32 KM | |
| Ysgol Y Faenol | Welsh Establishment | 4.31 KM | |
| Ysgol Glan Morfa | Welsh Establishment | 4.89 KM |
Images
Nearby Streets
| Name | Average Price | Average Sqft | Distance |
|---|---|---|---|
| Llys Glyndŵr | £ 0 | 0 | 0.00 KM |
| Meadow Court | £ 269,950 | 0 | 0.00 KM |
| Penlan | £ 0 | 0 | 0.00 KM |
| Gerddi Aled | £ 134,000 | 0 | 0.00 KM |
| Rhodfa'r Morfa | £ 0 | 0 | 0.00 KM |
Nearby Transport
| Name | NLC | TLC | Distance |
|---|---|---|---|
| Rhyl | 2461 | RHL | 5.31 KM |
| Abergele And Pensarn | 2448 | AGL | 5.46 KM |
Nearby Listings
| Address | Price | Type | Score | Distance |
|---|---|---|---|---|
| Llys Edward, Towyn, LL22 | £ 150,000 | BUY | 6 / 10 | 0.00 KM |
| Llys Edward, Towyn, LL22 | £ 145,000 | BUY | 7 / 10 | 0.00 KM |
| Llys Edward, Towyn, LL22 | £ 167,000 | BUY | 7 / 10 | 0.00 KM |
| Llys Edward, Towyn, LL22 | £ 170,000 | BUY | 7 / 10 | 0.00 KM |
| Llys Edward, Towyn, Conwy, LL22 | £ 145,000 | BUY | 6 / 10 | 0.02 KM |
Nearby Properties
| Address | Price | Distance |
|---|---|---|
| 16 Llys Edward | £ 78,000 | 0.01 KM |
| 9 Llys Edward | £ 75,000 | 0.01 KM |
| 15 Llys Edward | £ 72,000 | 0.01 KM |
| 24 Llys Edward | £ 135,000 | 0.01 KM |
| 2 Llys Edward | £ 85,000 | 0.01 KM |