Brennan Ayre O'Neill says ..
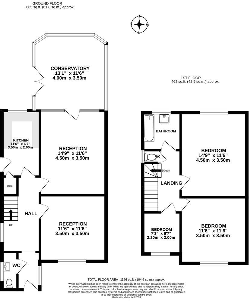
With a blocked pave driveway for three cars, this handsome and traditional three bedroomed semi detached house also comes with a good sized south facing conservatory together with a former garage well converted into a fully working utility room (plumbing/worktops/units/sink) with skylight Velux a...
Property Oracle says ..
Therefore, we give this property 7 / 10. *Disclaimer: This is our option and does constitute a recommendation or financial advice. Do your own research. *
- Price
- 6
- Condition
- 7
- Location
- 8
- Land
- 7
- Bedrooms
- 3
- Bathrooms
- 1
- Sqft (est)
- 876.18
The heatmap indicates the level of crime in the area. The color of the heatmap indicates the crime severity and recency.
Metrics Year-on-Year
- Average area value
- 416,667.00 £Increased by 57.08 %
- Est sale value
- 283,882.32 £Increased by 227.27 %
- Average area rental value
- 735.00 £/moDecreased by 0.41 %
- Est letting value
- 0.00 £/mo
- Est rental Yield
- 2.12 %Decreased by 36.53 %
- Crime Rate
- 7.00 %Unchanged by 0.00 %
from 265,251.00 £
from 86,741.82 £
from 738.00 £/mo
from 0.00 £/mo
from 3.34 %
from 7.00 %
Agent Activity
Brennan Ayre O'Neill created the listing.
Nearby Schools
| Name | Type | Ofsted | Distance |
|---|---|---|---|
| Birkenhead High School Academy | Academy Sponsor Led | Outstanding | 0.57 KM |
| Prenton Preparatory School | Other Independent School | 0.67 KM | |
| St Anselm'S College | Academy Converter | Good | 0.69 KM |
| Birkenhead Park School | Academy Sponsor Led | Requires improvement | 0.85 KM |
| Oxton St Saviour'S Cofe Aided Primary School | Voluntary Aided School | Good | 0.88 KM |
Images
Nearby Streets
| Name | Average Price | Average Sqft | Distance |
|---|---|---|---|
| Beresford Close | £ 0 | 0 | 0.00 KM |
| Columbia Lane | £ 850,000 | 0 | 0.00 KM |
| Victoria Lane | £ 0 | 0 | 0.00 KM |
| Grosvenor Road | £ 290,500 | 0 | 0.00 KM |
| Devonshire Close | £ 0 | 0 | 0.00 KM |
Nearby Transport
| Name | NLC | TLC | Distance |
|---|---|---|---|
| Birkenhead Park | 2220 | BKP | 1.70 KM |
| Birkenhead North | 2145 | BKN | 2.55 KM |
| Conway Park | 3624 | CNP | 2.85 KM |
| Birkenhead Central | 2217 | BKC | 2.90 KM |
| Green Lane | 2218 | GNL | 3.35 KM |
Nearby Listings
| Address | Price | Type | Score | Distance |
|---|---|---|---|---|
| Lorne Road,,, Oxton | £ 330,000 | BUY | 7 / 10 | 0.00 KM |
| Lorne Road, PRENTON, Merseyside, CH43 | £ 140,000 | BUY | 6 / 10 | 0.07 KM |
| Shrewsbury Road, Oxton, Wirral | £ 400,000 | BUY | 6 / 10 | 0.08 KM |
| Shrewsbury Road, Oxton, Wirral | £ 450,000 | BUY | 7 / 10 | 0.08 KM |
| Alton Road, Oxton, Wirral | £ 160,000 | BUY | 7 / 10 | 0.13 KM |
Nearby Properties
| Address | Price | Distance |
|---|---|---|
| 9 Lorne Road | £ 455,000 | 0.04 KM |
| 26a Shrewsbury Road | £ 36,000 | 0.07 KM |
| 24 Shrewsbury Road | £ 152,000 | 0.07 KM |
| 16 Shrewsbury Road | £ 90,000 | 0.07 KM |
| 16a Shrewsbury Road | £ 340,000 | 0.07 KM |