Glanyrafon Road, Penmaenmawr, LL34
By McGowan Housing
£ 185,000
Reviews
3 out of 5 stars
McGowan Housing says ..
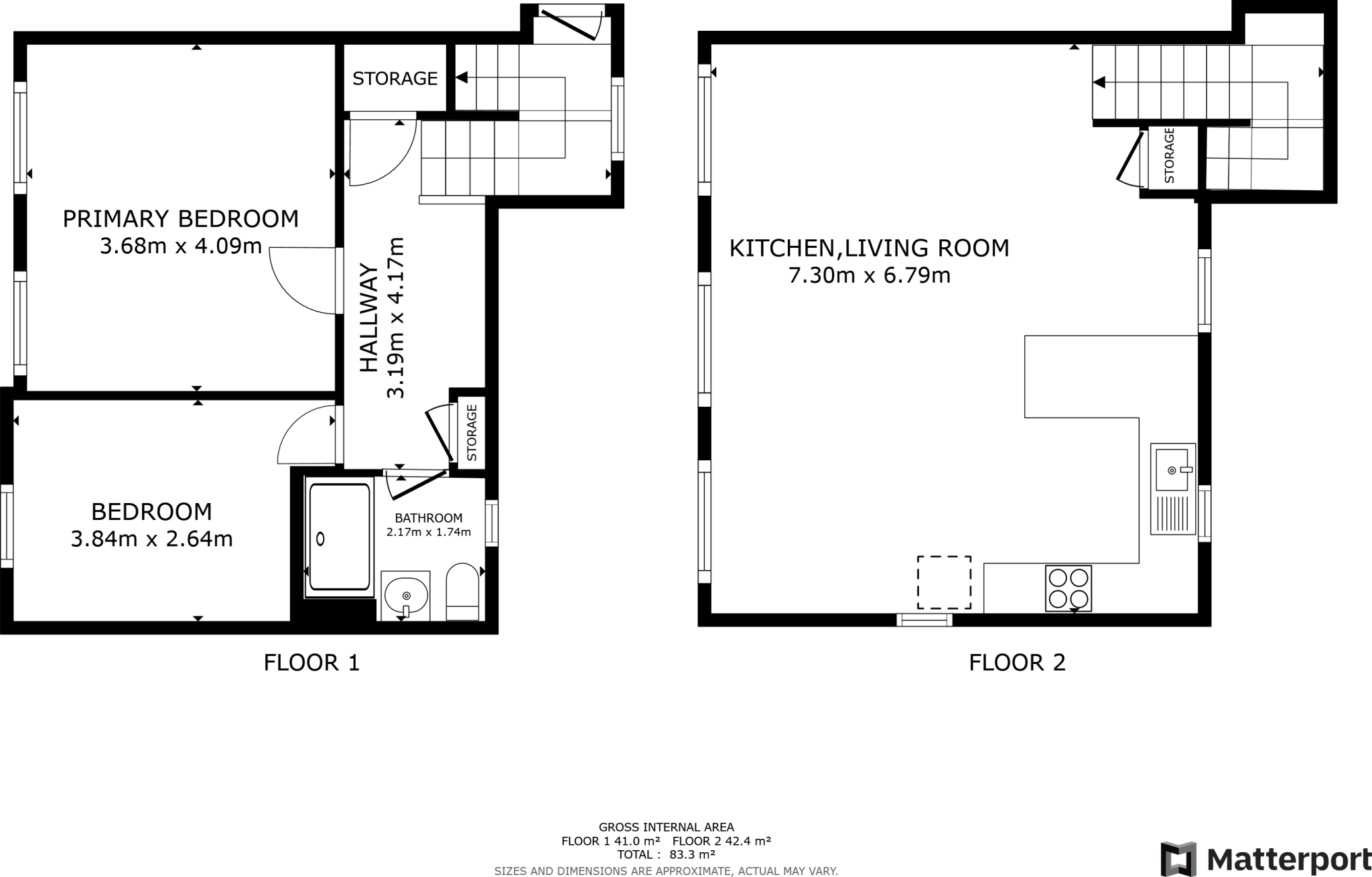
Buy-to-Let Opportunity | Long-Term Tenants Currently Situated | 2 Bedroom End of Terrace House | Private Garage Parking - Fits Two Cars | Bangor Hospital and Bangor University being in close proximity so attracting attention from lots of professionals | Prime Rental Location Penmaenmawr
Property Oracle says ..
The property is located in Penmaenmawr, Conwy, a town in the county of Clwyd, Wales. The area benefits from nearby rail links, with Penmaenmawr train station being approximately 3.16km away. Several schools are within a reasonable distance, including Ysgol Capelulo (0.96km), Ysgol Pencae (2.27km), and others further afield. While the provided data doesn’t offer details on the quality of local shops or places of significance, the proximity to a train station and schools suggests a relatively convenient location. However, without further information on amenities and the overall desirability of the area, a definitive location score is difficult to assign.
Based on the images, the property appears to be in good condition. The interior is modern and well-maintained, showing no obvious signs of disrepair or needing renovation. The bathroom, while compact, is clean and recently updated. The exterior, while showing some age, is structurally sound. There is evidence of a small, possibly shared, outdoor space. The overall impression is of a property that is habitable and well-presented, though a more thorough inspection would be needed to confirm the absence of any hidden issues.
The property includes a small outdoor area, which can be described as a yard rather than a substantial garden. The space is limited and appears to be shared or partially shared. This limits its appeal to those seeking extensive outdoor space.
The list price of £185,000 is significantly lower than the average house price in the area (£274,497). However, the absence of square footage data for the subject property and the nearby properties makes a direct comparison challenging. The average price per square foot in the area is £261.00, but without the square footage of the property in question, it is impossible to determine if the asking price represents good value. Furthermore, the condition and size of the land should be considered in the price evaluation. The smaller-than-average outdoor space and the lack of information regarding the property’s size make it difficult to definitively assess the price’s reasonableness.
Therefore, we give this property 6 / 10. *Disclaimer: This is our option and does constitute a recommendation or financial advice. Do your own research. *
- Price
- 7
- Condition
- 8
- Location
- 0
- Land
- 3
- Bedrooms
- 2
- Bathrooms
- 1
The heatmap indicates the level of crime in the area. The color of the heatmap indicates the crime severity and recency.
Metrics Year-on-Year
- Average area value
- 401,278.00 £Increased by 42.31 %
- Average area rental value
- 1,053.00 £/moDecreased by 6.32 %
- Est rental Yield
- 3.15 %Decreased by 34.10 %
- Crime Rate
- 20.00 %Unchanged by 0.00 %
Agent Activity
McGowan Housing created the listing.
Nearby Schools
| Name | Type | Ofsted | Distance |
|---|---|---|---|
| Ysgol Capelulo | Welsh Establishment | 0.96 KM | |
| Ysgol Pencae | Welsh Establishment | 2.27 KM | |
| Ysgol Llangelynnin | Welsh Establishment | 6.11 KM | |
| Ysgol Aberconwy | Welsh Establishment | 6.55 KM | |
| Ysgol Porth Y Felin | Welsh Establishment | 6.97 KM |
Images
Nearby Streets
| Name | Average Price | Average Sqft | Distance |
|---|---|---|---|
| Groesffordd Lane | £ 0 | 0 | 0.00 KM |
| Golygfa Sychnant | £ 0 | 0 | 0.00 KM |
| Maes Y Lan | £ 0 | 0 | 0.00 KM |
Nearby Transport
| Name | NLC | TLC | Distance |
|---|---|---|---|
| Penmaenmawr | 2494 | PMW | 3.16 KM |
| Deganwy | 2480 | DGY | 7.17 KM |
| Conwy | 2486 | CNW | 7.26 KM |
| Llandudno | 2484 | LLD | 8.97 KM |
| Llandudno Junction | 2485 | LLJ | 9.64 KM |
Nearby Listings
| Address | Price | Type | Score | Distance |
|---|---|---|---|---|
| Glanyrafon Road, Dwygyfylchi, Penmaenmawr, Conwy, LL34 | £ 275,000 | BUY | 7 / 10 | 0.00 KM |
| Glanyrafon Road, Dwygyfylchi, Penmaenmawr, Conwy, LL34 | £ 345,000 | BUY | 7 / 10 | 0.00 KM |
| Glanyrafon Road, Dwygyfylchi, Penmaenmawr, Conwy, LL34 | £ 250,000 | BUY | 7 / 10 | 0.00 KM |
| Glanyrafon Road, Dwygyfylchi, Penmaenmawr, Conwy, LL34 | £ 415,000 | BUY | 7 / 10 | 0.00 KM |
| Glanyrafon Road, Dwygyfylchi, Penmaenmawr, Conwy, LL34 | £ 365,950 | BUY | Unknown | 0.00 KM |
Nearby Properties
| Address | Price | Distance |
|---|---|---|
| Ty Gwynin Sant | £ 217,000 | 0.00 KM |
| School Cottage | £ 121,000 | 0.00 KM |
| Warborough | £ 112,000 | 0.00 KM |
| Hillside | £ 181,000 | 0.00 KM |
| Glyn Garth | £ 249,950 | 0.02 KM |