Castlemaine Avenue, Gillingham, ME7 2QE
By eXp UK
£ 350,000
Reviews
3 out of 5 stars
eXp UK says ..
Driveway & Garage | South Facing Garden 50ft Rear Garden | Modern Kitchen & Bathroom | 2 Reception Rooms | 0.9 Miles to Gillingham High Speed Station
Property Oracle says ..
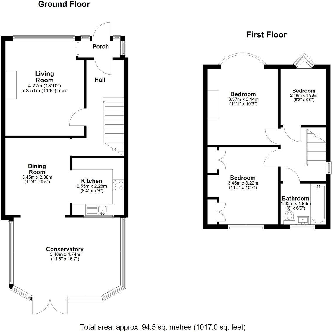
This end-of-terrace property on Castlemaine Avenue in Gillingham North offers three bedrooms and one bathroom, spanning 1,017.19 sqft. The house features a modern kitchen and bathroom, a conservatory, and a well-maintained garden with a greenhouse and patio. It also benefits from off-street parking and a garage. The property is located conveniently near schools and transportation, including the Gillingham (Kent) train station. While the list price of £350,000 is above the local average, the property’s size, condition, and features justify the premium. The property is in good condition and appears to be move-in ready.
Therefore, we give this property 7 / 10. *Disclaimer: This is our option and does constitute a recommendation or financial advice. Do your own research. *
- Price
- 6
- Condition
- 8
- Location
- 7
- Land
- 7
- Bedrooms
- 3
- Bathrooms
- 1
- Sqft (est)
- 1,017.19
The heatmap indicates the level of crime in the area. The color of the heatmap indicates the crime severity and recency.
Metrics Year-on-Year
- Average area value
- 258,294.00 £Increased by 3.99 %
- Est sale value
- 379,411.87 £Increased by 24.75 %
- Average area rental value
- 1,321.00 £/moDecreased by 18.41 %
- Est letting value
- 1,017.19 £/moUnchanged by 0.00 %
- Est rental Yield
- 6.14 %Decreased by 21.48 %
- Crime Rate
- 2.00 %Unchanged by 0.00 %
Agent Activity
eXp UK created the listing.
Nearby Schools
| Name | Type | Ofsted | Distance |
|---|---|---|---|
| The Gfc School | Other Independent School | Good | 0.74 KM |
| Saxon Way Primary School | Academy Sponsor Led | Good | 0.85 KM |
| Saxon Way Primary School And Children'S Centre | Children's Centre | 0.85 KM | |
| Woodlands Primary School | Academy Converter | Good | 0.85 KM |
| Academy Of Woodlands Children'S Centre | Children's Centre | 0.90 KM |
Images
Nearby Streets
| Name | Average Price | Average Sqft | Distance |
|---|---|---|---|
| GB38 | £ 0 | 0 | 0.00 KM |
| Thirlmere Close | £ 0 | 0 | 0.00 KM |
| Redfern Avenue | £ 300,000 | 0 | 0.00 KM |
| Woodlands Road | £ 0 | 0 | 0.00 KM |
| Cornwallis Avenue | £ 290,000 | 0 | 0.00 KM |
Nearby Transport
| Name | NLC | TLC | Distance |
|---|---|---|---|
| Gillingham (Kent) | 5169 | GLM | 1.90 KM |
| Chatham | 5199 | CTM | 5.14 KM |
| Rainham (Kent) | 5177 | RAI | 5.52 KM |
| Rochester | 5203 | RTR | 6.27 KM |
| Strood (Kent) | 5191 | SOO | 7.42 KM |
Nearby Listings
| Address | Price | Type | Score | Distance |
|---|---|---|---|---|
| Castlemaine Avenue, Gillingham, ME7 2QE | £ 350,000 | BUY | 6 / 10 | 0.00 KM |
| Castlemaine Avenue, Gillingham, ME7 2QE | £ 350,000 | BUY | 7 / 10 | 0.00 KM |
| Castlemaine Avenue, Gillingham, ME7 2QB | £ 400,000 | BUY | 7 / 10 | 0.03 KM |
| Castlemaine Ave | £ 300,000 | BUY | 7 / 10 | 0.04 KM |
| Castlemaine Avenue, Gillingham | £ 350,000 | BUY | 6 / 10 | 0.05 KM |
Nearby Properties
| Address | Price | Distance |
|---|---|---|
| 84 Castlemaine Avenue | £ 220,000 | 0.01 KM |
| 94 Castlemaine Avenue | £ 300,000 | 0.01 KM |
| 70 Castlemaine Avenue | £ 205,000 | 0.01 KM |
| 64 Castlemaine Avenue | £ 245,000 | 0.01 KM |
| 48 Castlemaine Avenue | £ 79,995 | 0.01 KM |