Heyes Lane, Alderley Edge
By Gascoigne Halman
£ 535,000
Reviews
3 out of 5 stars
Gascoigne Halman says ..
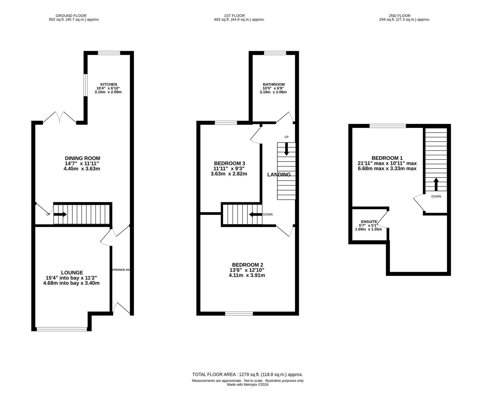
A charming period mid-terrace cottage situated in a highly desirable and sought after location. Offering deceptively spacious accommodation across three floors, generous gardens, off road parking and approved planning permission for a rear extension.
Property Oracle says ..
This three-bedroom, two-bathroom mid-terrace cottage in Alderley Edge, Cheshire, presents a compelling proposition for buyers seeking a property in a desirable location. Situated on Heyes Lane, it benefits from proximity to the village centre, boasting excellent schools and transport links, including Alderley Edge train station. The property’s interior exhibits a blend of contemporary and period features, with a well-presented kitchen and bathrooms. The modern upgrades give the feeling of a well-maintained, comfortable home, despite the apparent lack of large-scale renovations. The garden, though modest, provides valuable outdoor space. The absence of square footage data prevents a thorough cost-per-square-foot analysis, but considering comparable properties in Alderley Edge, the listed price appears to fall within a reasonable range. While the property’s condition is good and the location is a major strength, potential buyers should conduct their own thorough inspection to assess aspects not fully visible in the provided images and verify the property’s dimensions and overall value.
Therefore, we give this property 6 / 10. *Disclaimer: This is our option and does constitute a recommendation or financial advice. Do your own research. *
- Price
- 7
- Condition
- 7
- Location
- 9
- Land
- 4
- Bedrooms
- 3
- Bathrooms
- 2
The heatmap indicates the level of crime in the area. The color of the heatmap indicates the crime severity and recency.
Metrics Year-on-Year
- Average area value
- 430,000.00 £Decreased by 45.17 %
- Average area rental value
- 4,000.00 £/moIncreased by 70.00 %
- Est rental Yield
- 11.16 %Increased by 210.00 %
- Crime Rate
- 1.00 %Unchanged by 0.00 %
Agent Activity
Gascoigne Halman marked this listing as sold.
Gascoigne Halman created the listing.
Nearby Schools
| Name | Type | Ofsted | Distance |
|---|---|---|---|
| Alderley Edge School For Girls | Other Independent School | 1.20 KM | |
| Alderley Edge Community Primary School | Community School | Outstanding | 1.39 KM |
| Wilmslow High School | Community School | Good | 1.65 KM |
| The Ryleys School | Other Independent School | 1.89 KM | |
| Wilmslow Preparatory School | Other Independent School | 2.28 KM |
Images
Nearby Streets
| Name | Average Price | Average Sqft | Distance |
|---|---|---|---|
| Oakfield Close | £ 0 | 0 | 0.00 KM |
| Marlborough Avenue | £ 1,000,000 | 0 | 0.00 KM |
| Greystoke Drive | £ 0 | 0 | 0.00 KM |
| Underwood Road | £ 0 | 0 | 0.00 KM |
| Fairfield Gardens | £ 0 | 0 | 0.00 KM |
Nearby Transport
| Name | NLC | TLC | Distance |
|---|---|---|---|
| Alderley Edge | 2760 | ALD | 1.10 KM |
| Wilmslow | 2774 | WML | 2.15 KM |
| Handforth | 2767 | HTH | 4.60 KM |
| Styal | 2868 | SYA | 4.75 KM |
| Heald Green | 2860 | HDG | 6.96 KM |
Nearby Listings
| Address | Price | Type | Score | Distance |
|---|---|---|---|---|
| Heyes Lane, Alderley Edge | £ 535,000 | BUY | 6 / 10 | 0.00 KM |
| Heyes Lane, Alderley Edge, Cheshire, SK9 | £ 575,000 | BUY | 7 / 10 | 0.00 KM |
| Heyes Lane, Alderley Edge | £ 537,500 | BUY | 6 / 10 | 0.01 KM |
| Heyes Lane, Alderley Edge | £ 689,950 | BUY | Unknown | 0.04 KM |
| Heyes Lane, Alderley Edge, SK9 | £ 615,000 | BUY | 7 / 10 | 0.04 KM |
Nearby Properties
| Address | Price | Distance |
|---|---|---|
| 105 Heyes Lane | £ 485,000 | 0.01 KM |
| 109 Heyes Lane | £ 400,000 | 0.01 KM |
| 95 Heyes Lane | £ 295,000 | 0.01 KM |
| 103 Heyes Lane | £ 463,750 | 0.01 KM |
| 99 Heyes Lane | £ 320,000 | 0.01 KM |