Havelock Road, West Dartford, Dartford, Kent, DA1
By Robinson Jackson
£ 400,000
Reviews
3 out of 5 stars
Robinson Jackson says ..
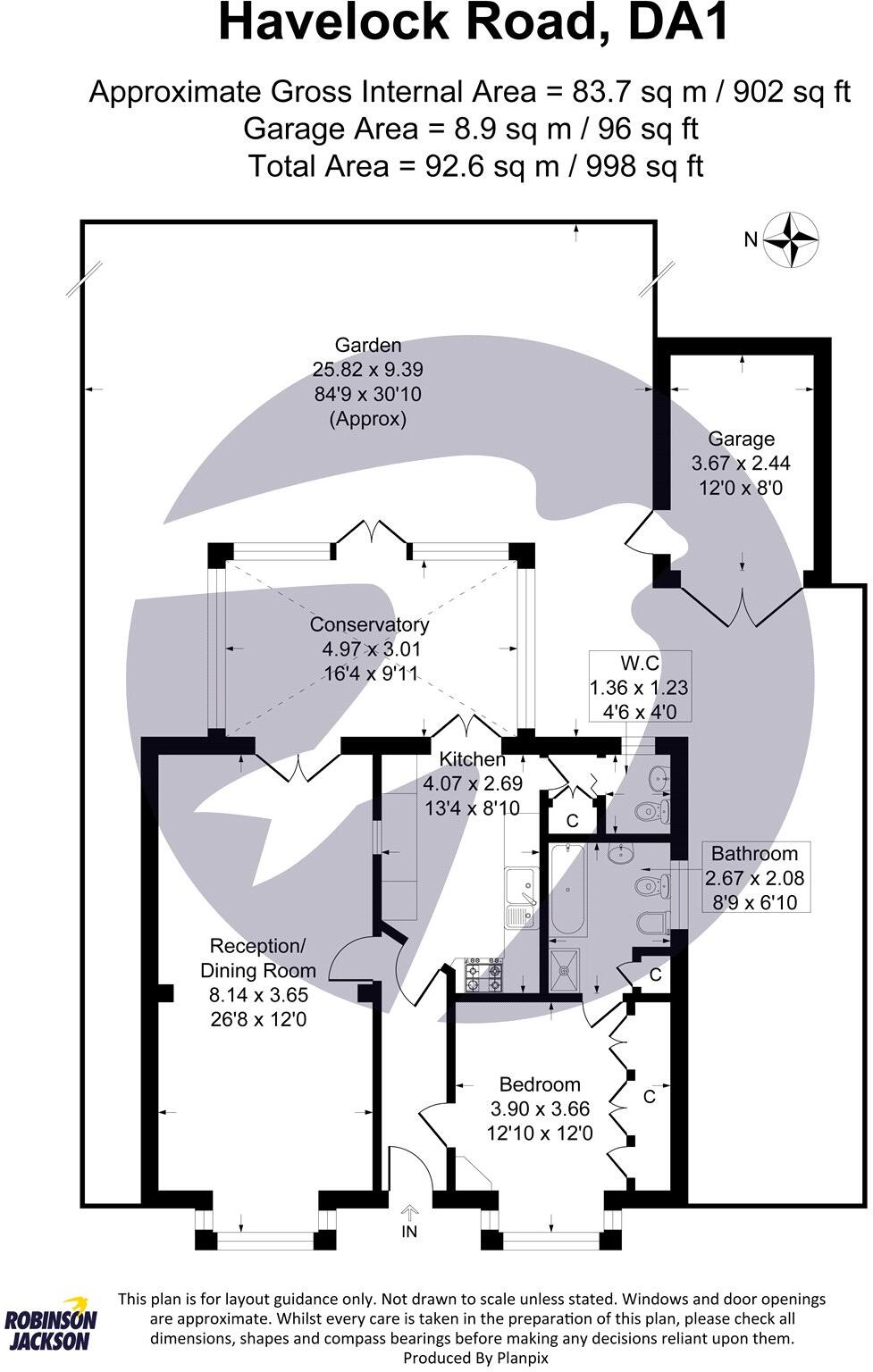
Guide Price £400,000 - £425,000 Robinson Jackson are delighted to offer a rare opportunity to acquire this detached bungalow in the sought after location of West Dartford. The property offers excellent potential for extension (STPP), or alternatively the layout of this charming home i...
Property Oracle says ..
This is a one-bedroom bungalow in Dartford, Kent. The property features a good-sized garden, a conservatory, and off-street parking. While the property is in reasonable condition, some modernisation, particularly in the bathroom and kitchen, would enhance its appeal. The location is convenient, with nearby schools and transportation links. The price is reasonable considering the square footage and location, but the need for some renovation work should be factored in.
Therefore, we give this property 6 / 10. *Disclaimer: This is our option and does constitute a recommendation or financial advice. Do your own research. *
- Price
- 6
- Condition
- 6
- Location
- 7
- Land
- 7
- Bedrooms
- 1
- Bathrooms
- 1
- Sqft (est)
- 996.74
The heatmap indicates the level of crime in the area. The color of the heatmap indicates the crime severity and recency.
Metrics Year-on-Year
- Average area value
- 358,479.00 £Decreased by 2.93 %
- Est sale value
- 420,624.28 £Increased by 20.57 %
- Average area rental value
- 1,595.00 £/moIncreased by 2.84 %
- Est letting value
- 996.74 £/moUnchanged by 0.00 %
- Est rental Yield
- 5.34 %Increased by 5.95 %
- Crime Rate
- 2.00 %Unchanged by 0.00 %
Agent Activity
Robinson Jackson created the listing.
Nearby Schools
| Name | Type | Ofsted | Distance |
|---|---|---|---|
| West Hill Primary Academy | Academy Converter | Good | 0.65 KM |
| Dartford Grammar School For Girls | Academy Converter | Outstanding | 0.82 KM |
| Dartford Science & Technology College | Foundation School | Good | 0.82 KM |
| Dartford Grammar School | Academy Converter | 0.96 KM | |
| Wentworth Primary School | Academy Converter | Good | 0.99 KM |
Images
Nearby Streets
| Name | Average Price | Average Sqft | Distance |
|---|---|---|---|
| Western Terrace | £ 550,000 | 0 | 0.00 KM |
| Sullivan Close | £ 0 | 0 | 0.00 KM |
| Cross Road | £ 0 | 0 | 0.00 KM |
| Maiden Lane | £ 325,000 | 0 | 0.00 KM |
| Dartford Road | £ 0 | 0 | 0.00 KM |
Nearby Transport
| Name | NLC | TLC | Distance |
|---|---|---|---|
| Crayford | 5100 | CRY | 2.00 KM |
| Dartford | 5101 | DFD | 2.50 KM |
| Slade Green | 5154 | SGR | 2.61 KM |
| Barnehurst | 5089 | BNH | 4.66 KM |
| Erith | 5104 | ERH | 4.72 KM |
Nearby Listings
| Address | Price | Type | Score | Distance |
|---|---|---|---|---|
| Havelock Road, West Dartford, Dartford, Kent, DA1 | £ 400,000 | BUY | 6 / 10 | 0.00 KM |
| Havelock Road, Dartford, DA1 3HZ | £ 450,000 | BUY | 6 / 10 | 0.08 KM |
| Havelock Road, Dartford | £ 475,000 | BUY | Unknown | 0.10 KM |
| Broomhill Road, Dartford, Kent, DA1 | £ 575,000 | BUY | 7 / 10 | 0.19 KM |
| Somerset Road, Dartford, Kent, DA1 | £ 350,000 | BUY | Unknown | 0.20 KM |
Nearby Properties
| Address | Price | Distance |
|---|---|---|
| 65a Havelock Road | £ 182,500 | 0.09 KM |
| 89 Havelock Road | £ 360,000 | 0.09 KM |
| 97 Havelock Road | £ 570,000 | 0.09 KM |
| 79 Havelock Road | £ 342,500 | 0.09 KM |
| 113 Havelock Road | £ 249,999 | 0.09 KM |