Mill Road/ Spital Road, Bromborough
By Brennan Ayre O'Neill
£ 300,000
Reviews
3 out of 5 stars
Brennan Ayre O'Neill says ..
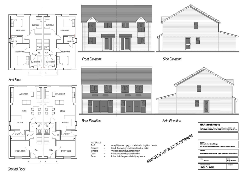
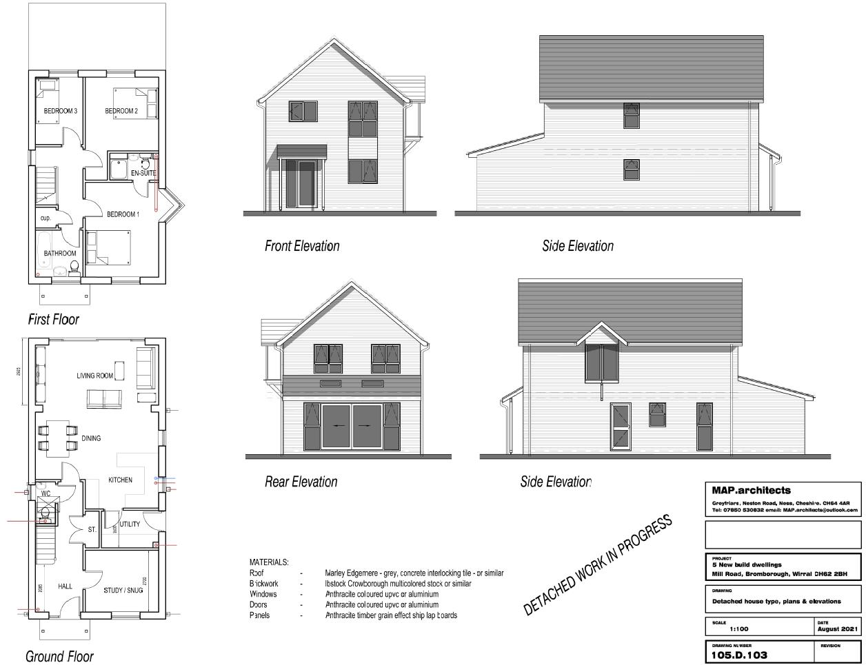
**OPPORTUNITY** What do we have here? A superb development site with PLANNING for 5 units (Planning reference RVC/22/02084) which includes 2 x pairs of Semi-Detached and 1 x Detached. Located on the corner of Mill Road and Spital Road within walking distance of local amenities including Spital tr...
Property Oracle says ..
Therefore, we give this property 7 / 10. *Disclaimer: This is our option and does constitute a recommendation or financial advice. Do your own research. *
- Price
- 6
- Condition
- 0
- Location
- 8
- Land
- 7
- Bedrooms
- 0
- Bathrooms
- 0
- Sqft (est)
- 1,300.00
The heatmap indicates the level of crime in the area. The color of the heatmap indicates the crime severity and recency.
Metrics Year-on-Year
- Average area value
- 214,158.00 £Decreased by 4.12 %
- Est sale value
- 356,200.00 £Increased by 33.01 %
- Average area rental value
- 905.00 £/moDecreased by 2.06 %
- Est letting value
- 1,300.00 £/mo
- Est rental Yield
- 5.07 %Increased by 2.22 %
- Crime Rate
- 0.00 %
from 223,360.00 £
from 267,800.00 £
from 924.00 £/mo
from 0.00 £/mo
from 4.96 %
from 0.00 %
Agent Activity
Brennan Ayre O'Neill created the listing.
Nearby Schools
| Name | Type | Ofsted | Distance |
|---|---|---|---|
| Co-Op Academy Woodslee | Academy Sponsor Led | 0.61 KM | |
| Bromborough Children'S Centre | Children's Centre | 1.43 KM | |
| Mendell Primary School | Community School | Requires improvement | 1.74 KM |
| Church Drive Primary School | Academy Converter | 1.99 KM | |
| Poulton Lancelyn Primary School | Academy Converter | Good | 2.00 KM |
Images
Nearby Streets
| Name | Average Price | Average Sqft | Distance |
|---|---|---|---|
| Mill Road | £ 625,000 | 0 | 0.00 KM |
| Greenway | £ 220,000 | 0 | 0.00 KM |
| Otter Tunnel | £ 0 | 0 | 0.00 KM |
| High Street | £ 0 | 0 | 0.00 KM |
| Howard Avenue | £ 249,950 | 0 | 0.00 KM |
Nearby Transport
| Name | NLC | TLC | Distance |
|---|---|---|---|
| Spital | 2199 | SPI | 1.10 KM |
| Bromborough Rake | 2191 | BMR | 1.39 KM |
| Port Sunlight | 2198 | PSL | 1.78 KM |
| Bromborough | 2190 | BOM | 2.17 KM |
| Bebington | 2188 | BEB | 2.83 KM |
Nearby Listings
| Address | Price | Type | Score | Distance |
|---|---|---|---|---|
| Mill Road/ Spital Road, Bromborough | £ 300,000 | BUY | 7 / 10 | 0.00 KM |
| Sylvandale Grove, Bromborough | £ 515,000 | BUY | 8 / 10 | 0.17 KM |
| Heather Dene, Bromborough | £ 230,000 | BUY | 7 / 10 | 0.22 KM |
| Heather Dene, Bromborough, Wirral | £ 325,000 | BUY | Unknown | 0.23 KM |
| Hesketh Way, Bromborough, Wirral | £ 300,000 | BUY | 7 / 10 | 0.25 KM |
Nearby Properties
| Address | Price | Distance |
|---|---|---|
| 18 Mill Road | £ 390,000 | 0.03 KM |
| 12 Mill Road | £ 205,000 | 0.03 KM |
| 8 Mill Road | £ 173,000 | 0.04 KM |
| 20 Mill Road | £ 154,500 | 0.04 KM |
| 10 Mill Road | £ 144,000 | 0.04 KM |