Westexe South, Tiverton, Devon, EX16
By Seddons
£ 300,000
Reviews
1 out of 5 stars
Seddons says ..
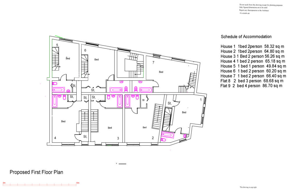
DEVELOPMENT OPPORTUNITY Full detailed planning permission for 9 residential units. MDDC Planning Reference: 22/01755/FULL
Property Oracle says ..
This property is a development opportunity in Tiverton, Devon. The current state of the building is poor, requiring complete renovation. The location is close to several schools, including Heathcoat Primary School (0.44km), Ace Tiverton Special School (0.47km), and St John’s Catholic Primary School (0.88km), all within a reasonable distance. However, information on nearby transportation is lacking. The listed price of £300,000 is significantly higher than comparable properties in the area. Nearby terraced houses range from £60,000 to £230,000. The absence of square footage data for the subject property makes a precise price-per-square-foot comparison impossible. However, given the extensive renovation needed and the higher price point compared to other properties, the asking price appears high. The development plans suggest the creation of multiple residential units, which could potentially justify the higher price if successfully executed. However, the significant risk and investment associated with such a project must be considered.
Therefore, we give this property 3 / 10. *Disclaimer: This is our option and does constitute a recommendation or financial advice. Do your own research. *
- Price
- 3
- Condition
- 2
- Location
- 6
- Land
- 3
- Bedrooms
- 11
- Bathrooms
- 11
The heatmap indicates the level of crime in the area. The color of the heatmap indicates the crime severity and recency.
Metrics Year-on-Year
- Average area value
- 440,000.00 £Increased by 33.42 %
- Average area rental value
- 850.00 £/moIncreased by 13.64 %
- Est rental Yield
- 2.32 %Decreased by 14.71 %
- Crime Rate
- 24.00 %Unchanged by 0.00 %
Agent Activity
Seddons created the listing.
Nearby Schools
| Name | Type | Ofsted | Distance |
|---|---|---|---|
| Heathcoat Primary School | Foundation School | Good | 0.44 KM |
| Ace Tiverton Special School | Free Schools Special | 0.47 KM | |
| St John'S Catholic Primary School | Academy Converter | Requires improvement | 0.88 KM |
| Castle Primary School | Foundation School | Good | 1.03 KM |
| Tiverton High School | Foundation School | Good | 1.28 KM |
Images
Nearby Streets
| Name | Average Price | Average Sqft | Distance |
|---|---|---|---|
| Amory Road | £ 0 | 0 | 0.00 KM |
| Collipriest Road | £ 0 | 0 | 0.00 KM |
| Bridge Street | £ 0 | 0 | 0.00 KM |
| Morville Place | £ 0 | 0 | 0.00 KM |
| Landboat Cottages | £ 0 | 0 | 0.00 KM |
Nearby Listings
| Address | Price | Type | Score | Distance |
|---|---|---|---|---|
| Westexe South, Tiverton, Devon, EX16 | £ 300,000 | BUY | 3 / 10 | 0.00 KM |
| Carpenter Close, Tiverton, Devon, EX16 | £ 90,000 | BUY | Unknown | 0.06 KM |
| Westexe South, Tiverton, Devon, EX16 | £ 125,000 | BUY | Unknown | 0.14 KM |
| Exe Vale Terrace, Tiverton, Devon, EX16 | £ 295,000 | BUY | 7 / 10 | 0.15 KM |
| Guardian Court, Worthing, BN13 2EE | £ 130,000 | BUY | 6 / 10 | 0.16 KM |
Nearby Properties
| Address | Price | Distance |
|---|---|---|
| 126 Westexe South | £ 60,000 | 0.03 KM |
| 8 Exe Vale Terrace | £ 200,000 | 0.13 KM |
| 4 Exe Vale Terrace | £ 230,000 | 0.13 KM |
| 2 Exe Vale Terrace | £ 190,000 | 0.13 KM |
| 7 Exe Vale Terrace | £ 151,500 | 0.13 KM |