Kingsbridge Estate Agents Ltd says ..
A charming three-bedroom seaside cottage with stunning uninterrupted sea views, nestled in the heart of the sought-after village of Beesands. Full of character, with exposed beams, a cozy fireplace, and a well-equipped kitchen, this delightful home offers the perfect coastal retreat. With a fr...
Property Oracle says ..
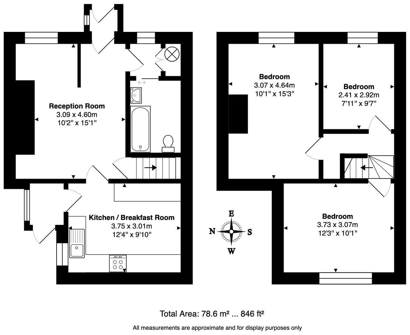
This property is located in Beesands, Devon, a coastal village in the South Hams district. The area benefits from an outstanding primary school, Stokenham Area Primary School, located approximately 3.67 km away. While specific transportation details are unavailable, the coastal location suggests proximity to potential bus routes or ferry services. The property itself is an end-of-terrace house with three bedrooms and one bathroom. The images reveal a property that is in need of some modernisation, with dated decor and furnishings. However, the structure appears to be sound. The property includes a garden, offering outdoor space. The list price of £395,000 is higher than the average price of £275,043 for the area, but comparable properties in Beesands are listed at higher prices, suggesting the list price might be reasonable considering the location and the property’s potential. The lack of square footage information for the subject property and comparable listings makes a precise price-per-square-foot comparison challenging. However, the average price per square foot in the area is £208.
Therefore, we give this property 7 / 10. *Disclaimer: This is our option and does constitute a recommendation or financial advice. Do your own research. *
- Price
- 7
- Condition
- 6
- Location
- 8
- Land
- 7
- Bedrooms
- 3
- Bathrooms
- 1
- Lot (est)
- 846.00
The heatmap indicates the level of crime in the area. The color of the heatmap indicates the crime severity and recency.
Metrics Year-on-Year
- Average area value
- 216,225.00 £Decreased by 4.32 %
- Average area rental value
- 863.00 £/moDecreased by 37.87 %
- Est rental Yield
- 4.79 %Decreased by 35.09 %
- Crime Rate
- 0.00 %
Agent Activity
Kingsbridge Estate Agents Ltd created the listing.
Nearby Schools
| Name | Type | Ofsted | Distance |
|---|---|---|---|
| Stokenham Area Primary School | Community School | Outstanding | 3.67 KM |
Images
Nearby Streets
| Name | Average Price | Average Sqft | Distance |
|---|---|---|---|
| Sunnydale | £ 329,950 | 0 | 0.00 KM |
| Fordsworth Cottages | £ 1,750,000 | 0 | 0.00 KM |
| Holmleigh Road | £ 1,150,000 | 0 | 0.00 KM |
| The Barns | £ 0 | 0 | 0.00 KM |
| Duck feeding area | £ 0 | 0 | 0.00 KM |
Nearby Listings
| Address | Price | Type | Score | Distance |
|---|---|---|---|---|
| Beesands, Kingsbridge | £ 610,000 | BUY | 7 / 10 | 0.00 KM |
| Beesands | £ 395,000 | BUY | 7 / 10 | 0.00 KM |
| Beesands | £ 415,000 | BUY | 5 / 10 | 0.00 KM |
| Beesands, Kingsbridge, TQ7 | £ 1,150,000 | BUY | 6 / 10 | 0.09 KM |
| Beesands, Kingsbridge, TQ7 | £ 1,250,000 | BUY | 8 / 10 | 0.30 KM |
Nearby Properties
| Address | Price | Distance |
|---|---|---|
| 1 Higher Terrace | £ 200,000 | 0.23 KM |
| 1 Orchard Close | £ 248,000 | 1.29 KM |
| 2 Orchard Close | £ 165,000 | 1.29 KM |
| 4 Orchard Close | £ 216,000 | 1.29 KM |
| 2 Sunnyside Cottages | £ 317,500 | 1.40 KM |