Heathfield Road, Southport
AB

Heathfield Road, Southport

By Abode

£ 265,000

Reviews

3 out of 5 stars

Abode says ..

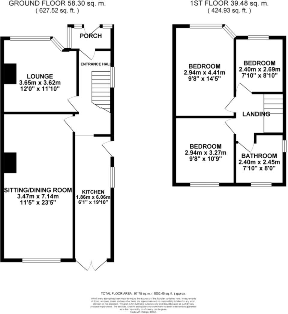
A Beautiful Three Bedroom Semi-Detached Home with Stunning Countryside Views. Nestled in the heart of Ainsdale, this beautifully presented three-bedroom semi-detached home offers the perfect blend of comfort, space, and scenic charm. Enjoying breathtaking countryside views to the rear, t...

Property Oracle says ..

This property is a 3-bedroom, 1-bathroom house located on Heathfield Road in Ainsdale, Sefton. The list price is £265,000, and the property has a plot size of 1,052.50 sqft. The house appears to be well-maintained and recently updated, with a modern kitchen and updated interior. The property benefits from a good-sized garden with views over open fields. The location is convenient, with nearby schools and transportation links. However, the average house price in the area is significantly higher than the list price, suggesting that this property may be undervalued.

Therefore, we give this property 7 / 10. *Disclaimer: This is our option and does constitute a recommendation or financial advice. Do your own research. *

Price
6
Condition
8
Location
7
Land
7
Bedrooms
3
Bathrooms
1
Sqft (est)
910.52
Lot (est)
1,052.50

The heatmap indicates the level of crime in the area. The color of the heatmap indicates the crime severity and recency.

Metrics Year-on-Year

Average area value
350,455.00 £
Increased by 5.50 %
from 332,171.00 £
Est sale value
287,724.32 £
Increased by 24.41 %
from 231,272.08 £
Average area rental value
10,875.00 £/mo
Increased by 953.78 %
from 1,032.00 £/mo
Est letting value
8,194.68 £/mo
from 0.00 £/mo
Est rental Yield
37.24 %
Increased by 898.39 %
from 3.73 %
Crime Rate
11.00 %
Unchanged by 0.00 %
from 11.00 %

Agent Activity

  • Abode created the listing.

Nearby Schools

NameTypeOfstedDistance
Birkdale High SchoolAcademy ConverterGood0.61 KM
Farnborough Road First Steps Children'S CentreChildren's Centre0.83 KM
Farnborough Road Junior SchoolCommunity SchoolGood0.93 KM
Farnborough Road Infant SchoolCommunity SchoolGood0.93 KM
Our Lady Of Lourdes Catholic Primary SchoolVoluntary Aided SchoolGood1.51 KM

Images

Heath.JPG DSC09591-HDR-29.jpg DSC09536-HDR-20.jpg DSC09546-HDR-21.jpg DSC09556-HDR-23.jpg DSC09551-HDR-22.jpg DSC09566-HDR-25.jpg DSC09561-HDR-24.jpg DSC09586-HDR-28.jpg DSC09576-HDR-26.jpg DSC09581-HDR-27.jpg DSC09531-HDR-19.jpg DSC09476-HDR-10.jpg DSC09486-HDR-11.jpg DSC09461-HDR-8.jpg DSC09521-HDR-17.jpg DSC09526-HDR-18.jpg DSC09456-HDR-7.jpg DSC09491-HDR-12.jpg DSC09511-HDR-15.jpg DSC09501-HDR-13.jpg DSC09471-HDR-9.jpg DSC09506-HDR-14.jpg DSC09516-HDR-16.jpg DSC09446-HDR-6.jpg DSC09426-HDR-3.jpg DSC09416-HDR-1.jpg DSC09436-HDR-5.jpg DSC09606-HDR-31.jpg DSC09611-HDR-32.jpg DSC09621-HDR-33.jpg DSC09421-HDR-2.jpg DSC09596-HDR-30.jpg DSC09626-HDR-34.jpg DSC04374-HDR-4.jpg DSC04344-HDR-1.jpg DSC04379-HDR-5.jpg DSC04364-HDR-3.jpg

Nearby Streets

NameAverage PriceAverage SqftDistance
Charles Avenue £ 000.00 KM
Farnborough Road £ 000.00 KM
Shaftesbury Grove £ 000.00 KM
Segar's Lane £ 308,75000.00 KM
Greenbank Drive £ 000.00 KM

Nearby Transport

NameNLCTLCDistance
Hillside2231HIL1.51 KM
Birkdale2352BDL2.75 KM
Ainsdale2350ANS2.75 KM
Southport2262SOP4.48 KM
Meols Cop2357MEC6.27 KM

Nearby Listings

AddressPriceTypeScoreDistance
Heathfield Road, Southport £ 265,000BUY7 / 100.00 KM
Heathfield Road Southport PR8 3DY £ 210,000BUY7 / 100.07 KM
Ranelagh Drive, Southport, Merseyside, PR8 3EP £ 210,000BUY7 / 100.13 KM
Heathfield Road, Birkdale, Southport £ 220,000BUY8 / 100.16 KM
Ranelagh Drive, Birkdale, Southport £ 215,000BUY7 / 100.16 KM

Nearby Properties

AddressPriceDistance
50 Heathfield Road £ 135,0000.06 KM
36 Heathfield Road £ 159,9500.06 KM
91 Heathfield Road £ 255,0000.06 KM
77 Heathfield Road £ 120,0000.06 KM
72 Heathfield Road £ 125,0000.06 KM