Grand View, 296 Farnborough Road, Farnborough, Hampshire, GU14 7GZ
By Avocado Property
£ 285,000
Reviews
3 out of 5 stars
Avocado Property says ..
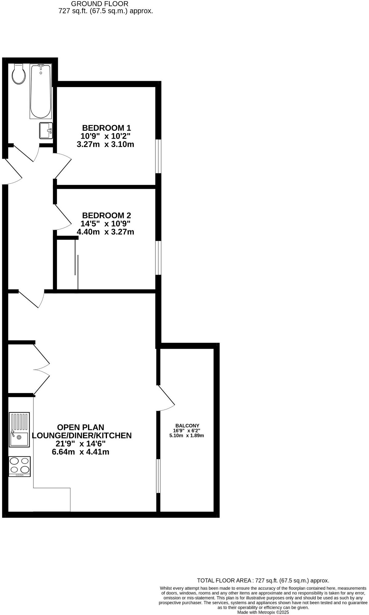
Within walking distance of the mainline station & town centre is this 5th floor two double bedroom apartment offering spacious open plan living with a private balcony and presented in lovely order. The property is an ideal investment for buy to let or commuters/first time buyers.
Property Oracle says ..
This property is a modern two-bedroom apartment located in Farnborough, Hampshire. The apartment is in excellent condition and benefits from a private balcony. The location is convenient, with Farnborough Main train station within walking distance, providing easy access to London and other major cities. There are also several schools and shops nearby. While the plot size is small, typical for an apartment, the list price of £285,000 appears reasonable given the average price and price per square foot in the area, and the property’s modern condition and desirable location. The nearby comparable properties support this assessment.
Therefore, we give this property 6 / 10. *Disclaimer: This is our option and does constitute a recommendation or financial advice. Do your own research. *
- Price
- 7
- Condition
- 9
- Location
- 8
- Land
- 2
- Bedrooms
- 2
- Bathrooms
- 2
- Sqft (est)
- 726.56
The heatmap indicates the level of crime in the area. The color of the heatmap indicates the crime severity and recency.
Metrics Year-on-Year
- Average area value
- 360,272.00 £Increased by 4.93 %
- Est sale value
- 324,772.32 £Increased by 9.29 %
- Average area rental value
- 1,439.00 £/moIncreased by 4.50 %
- Est letting value
- 726.56 £/moUnchanged by 0.00 %
- Est rental Yield
- 4.79 %Decreased by 0.42 %
- Crime Rate
- 5.00 %Unchanged by 0.00 %
Agent Activity
Avocado Property created the listing.
Nearby Schools
| Name | Type | Ofsted | Distance |
|---|---|---|---|
| Farnborough Hill | Other Independent School | 0.51 KM | |
| St Peter'S Church Of England Aided Junior School | Voluntary Aided School | Requires improvement | 0.64 KM |
| The Sixth Form College Farnborough | Academy 16-19 Converter | Outstanding | 0.98 KM |
| St Patrick'S Catholic Primary School | Voluntary Aided School | Good | 1.03 KM |
| North Farnborough Infant School | Community School | Outstanding | 1.10 KM |
Images
Nearby Streets
| Name | Average Price | Average Sqft | Distance |
|---|---|---|---|
| Firgrove Road | £ 0 | 0 | 0.00 KM |
| Kingsmead | £ 0 | 0 | 0.00 KM |
| Church Path | £ 0 | 0 | 0.00 KM |
| Helen Court | £ 0 | 0 | 0.00 KM |
| Worcester Close | £ 375,000 | 0 | 0.00 KM |
Nearby Transport
| Name | NLC | TLC | Distance |
|---|---|---|---|
| Farnborough (Main) | 5521 | FNB | 0.31 KM |
| Farnborough North | 5688 | FNN | 1.25 KM |
| Frimley | 5683 | FML | 1.81 KM |
| North Camp | 5636 | NCM | 3.35 KM |
| Ash Vale | 5547 | AHV | 4.40 KM |
Nearby Listings
| Address | Price | Type | Score | Distance |
|---|---|---|---|---|
| Grand View, 296 Farnborough Road, Farnborough, Hampshire, GU14 7GZ | £ 285,000 | BUY | 6 / 10 | 0.00 KM |
| Farnborough Road, Farnborough, Hampshire | £ 190,000 | BUY | 6 / 10 | 0.01 KM |
| 296 Farnborough Road, Farnborough, GU14 | £ 225,000 | BUY | 6 / 10 | 0.01 KM |
| Flat 19 Grand View | £ 240,000 | BUY | 7 / 10 | 0.01 KM |
| 296 Farnborough Road, Farnborough, GU14 | £ 350,000 | BUY | 6 / 10 | 0.01 KM |
Nearby Properties
| Address | Price | Distance |
|---|---|---|
| 17 Coombe Way | £ 393,880 | 0.24 KM |
| 24 Queen Victoria Court | £ 497,500 | 0.28 KM |
| 21 Queen Victoria Court | £ 540,000 | 0.28 KM |
| 17 Queen Victoria Court | £ 735,000 | 0.28 KM |
| 23 Queen Victoria Court | £ 490,000 | 0.28 KM |