Harper & Woods says ..
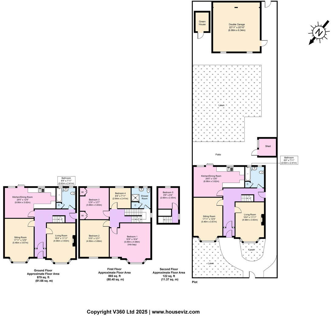
What a commanding double-fronted semi-detached residence! Set across three floors boasting river views, this lovely home has been well cared for throughout and has the benefit of being sold with no chain. Offering five bedrooms, two bathrooms, a large sunny South Easterly facing rear garden an...
Property Oracle says ..
Therefore, we give this property 7 / 10. *Disclaimer: This is our option and does constitute a recommendation or financial advice. Do your own research. *
- Price
- 8
- Condition
- 6
- Location
- 7
- Land
- 7
- Bedrooms
- 5
- Bathrooms
- 2
- Sqft (est)
- 1,628.63
The heatmap indicates the level of crime in the area. The color of the heatmap indicates the crime severity and recency.
Metrics Year-on-Year
- Average area value
- 305,000.00 £Increased by 20.80 %
- Est sale value
- 442,987.36 £Increased by 15.74 %
- Average area rental value
- 693.00 £/moDecreased by 32.39 %
- Est letting value
- 0.00 £/mo
- Est rental Yield
- 2.73 %Decreased by 43.94 %
- Crime Rate
- 2.00 %Unchanged by 0.00 %
from 252,476.00 £
from 382,728.05 £
from 1,025.00 £/mo
from 0.00 £/mo
from 4.87 %
from 2.00 %
Agent Activity
Harper & Woods created the listing.
Nearby Schools
| Name | Type | Ofsted | Distance |
|---|---|---|---|
| Liscard Primary School | Community School | Outstanding | 0.57 KM |
| Liscard Children'S Centre | Children's Centre Linked Site | 0.76 KM | |
| New Brighton Primary School | Community School | Good | 0.99 KM |
| Egremont Primary School | Academy Converter | 1.23 KM | |
| Somerville Primary School | Community School | Good | 1.65 KM |
Images
Nearby Streets
| Name | Average Price | Average Sqft | Distance |
|---|---|---|---|
| Warwick Drive | £ 265,500 | 0 | 0.00 KM |
| Magazines Promenade | £ 375,000 | 0 | 0.00 KM |
| Webster Avenue | £ 215,000 | 0 | 0.00 KM |
| Magazine Brow | £ 249,333 | 0 | 0.00 KM |
| Marsden Close | £ 130,000 | 0 | 0.00 KM |
Nearby Transport
| Name | NLC | TLC | Distance |
|---|---|---|---|
| New Brighton | 2152 | NBN | 1.97 KM |
| Birkenhead Park | 2220 | BKP | 3.42 KM |
| Birkenhead North | 2145 | BKN | 3.73 KM |
| Conway Park | 3624 | CNP | 3.97 KM |
| Wallasey Village | 2265 | WLV | 4.01 KM |
Nearby Listings
| Address | Price | Type | Score | Distance |
|---|---|---|---|---|
| Elgin Drive, Wallasey | £ 185,000 | BUY | 7 / 10 | 0.00 KM |
| Elgin Drive, Wallasey | £ 370,000 | BUY | 7 / 10 | 0.00 KM |
| Radnor Drive, Wallasey, Merseyside, CH45 | £ 230,000 | BUY | 7 / 10 | 0.07 KM |
| Radnor Drive, New Brighton, Wirral | £ 425,000 | BUY | 7 / 10 | 0.12 KM |
| Hertford Drive, Wallasey, CH45 7PX | £ 185,000 | BUY | 6 / 10 | 0.12 KM |
Nearby Properties
| Address | Price | Distance |
|---|---|---|
| 14 Elgin Drive | £ 375,000 | 0.02 KM |
| 22a Elgin Drive | £ 80,000 | 0.02 KM |
| 40b Elgin Drive | £ 75,000 | 0.02 KM |
| 22 Elgin Drive | £ 95,000 | 0.02 KM |
| 46a Elgin Drive | £ 94,000 | 0.02 KM |