Hicks Hadley says ..
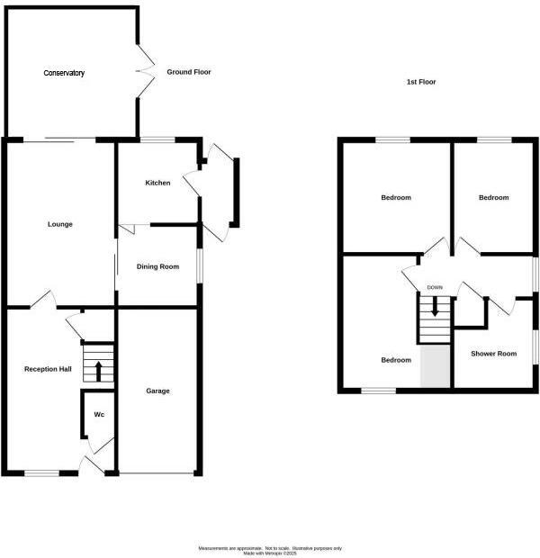
**NO UPWARD CHAIN** A fantastic three bedroom semi-detached house, ideally situated for access to schools, transport links and all local amenities. The property briefly comprises: dining room, downstairs wc, spacious lounge, conservatory, breakfast room, fitted kitchen, lean to, three double ...
Property Oracle says ..
Therefore, we give this property 5 / 10. *Disclaimer: This is our option and does constitute a recommendation or financial advice. Do your own research. *
- Price
- 5
- Condition
- 4
- Location
- 7
- Land
- 7
- Bedrooms
- 3
- Bathrooms
- 1
- Sqft (est)
- 1,199.00
The heatmap indicates the level of crime in the area. The color of the heatmap indicates the crime severity and recency.
Metrics Year-on-Year
- Average area value
- 251,538.00 £Increased by 21.55 %
- Est sale value
- 248,193.00 £Decreased by 4.17 %
- Average area rental value
- 754.00 £/moDecreased by 18.22 %
- Est letting value
- 0.00 £/mo
- Est rental Yield
- 3.60 %Decreased by 32.71 %
- Crime Rate
- 8.00 %Unchanged by 0.00 %
from 206,948.00 £
from 258,984.00 £
from 922.00 £/mo
from 0.00 £/mo
from 5.35 %
from 8.00 %
Agent Activity
Hicks Hadley created the listing.
Nearby Schools
| Name | Type | Ofsted | Distance |
|---|---|---|---|
| St Margaret'S At Hasbury Cofe Primary School | Voluntary Controlled School | Requires improvement | 0.25 KM |
| Our Lady And St Kenelm Rc School | Voluntary Aided School | Outstanding | 0.72 KM |
| Huntingtree Primary School | Community School | Good | 0.80 KM |
| Windsor High School And Sixth Form | Academy Converter | Good | 0.80 KM |
| Halesowen Cofe Primary School | Voluntary Aided School | Good | 1.33 KM |
Images
Nearby Streets
| Name | Average Price | Average Sqft | Distance |
|---|---|---|---|
| Wallwell | £ 329,950 | 0 | 0.00 KM |
| Alvechurch Road | £ 207,500 | 0 | 0.00 KM |
| Albert Road | £ 177,139 | 0 | 0.00 KM |
| Grove Avenue | £ 0 | 0 | 0.00 KM |
| Leasowes Court | £ 187,500 | 0 | 0.00 KM |
Nearby Transport
| Name | NLC | TLC | Distance |
|---|---|---|---|
| Old Hill | 4641 | OHL | 2.97 KM |
| Cradley Heath | 4639 | CRA | 4.06 KM |
| Rowley Regis | 4606 | ROW | 5.06 KM |
| Lye (West Midlands) | 4640 | LYE | 6.05 KM |
| Stourbridge Junction | 4646 | SBJ | 7.81 KM |
Nearby Listings
| Address | Price | Type | Score | Distance |
|---|---|---|---|---|
| Albert Road, Halesowen | £ 275,000 | BUY | 5 / 10 | 0.00 KM |
| HALESOWEN, Albert Road | £ 285,000 | BUY | 5 / 10 | 0.06 KM |
| High Farm Road, Hurst Green, Halesowen, B62 9rx | £ 260,000 | BUY | 7 / 10 | 0.12 KM |
| 37 Elizabeth Road, Halesowen, West Midlands, B63 4BQ | £ 125,000 | BUY | 6 / 10 | 0.12 KM |
| Summit Gardens, Halesowen | £ 650,000 | BUY | 6 / 10 | 0.15 KM |
Nearby Properties
| Address | Price | Distance |
|---|---|---|
| 83 Albert Road | £ 172,000 | 0.08 KM |
| 73 Albert Road | £ 202,000 | 0.08 KM |
| 1 Albert Drive | £ 197,500 | 0.09 KM |
| 2 Albert Drive | £ 135,000 | 0.09 KM |
| 10 Albert Drive | £ 223,949 | 0.10 KM |