Lon Cledan, Stad Craig Ddu, Llanon, SY23
By Morgan & Davies
£ 255,000
Reviews
3 out of 5 stars
Morgan & Davies says ..
Attention 1st time buyers. Attention investors. Brand new 3 bed semi detached home set within large plot with private parking. Sought after development. Llanon. Near Aberaeron/Aberystwyth. West Wales.
Property Oracle says ..
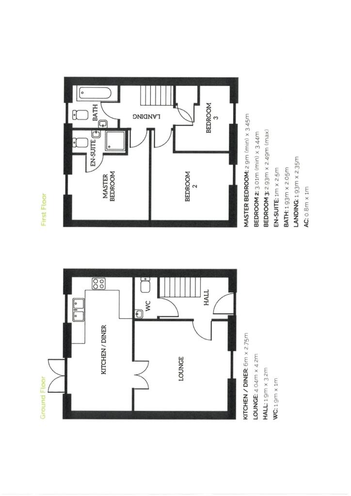
This is a modern semi-detached property located in the village of Llanon, Ceredigion. The house features three bedrooms and one bathroom, spanning approximately 862 sqft. It benefits from a new kitchen and bathroom, off-street parking, and a garden. While the interior is mostly complete, some finishing touches are still required. The property is situated close to local schools, making it suitable for families. The asking price of £255,000 appears reasonable given the property’s condition, size, and location within the local market. It represents a good opportunity for those seeking a modern home in a quieter village setting, with the potential to add value through landscaping and final interior finishes.
Therefore, we give this property 6 / 10. *Disclaimer: This is our option and does constitute a recommendation or financial advice. Do your own research. *
- Price
- 7
- Condition
- 7
- Location
- 7
- Land
- 6
- Bedrooms
- 3
- Bathrooms
- 1
- Sqft (est)
- 862.14
The heatmap indicates the level of crime in the area. The color of the heatmap indicates the crime severity and recency.
Metrics Year-on-Year
- Average area value
- 398,765.00 £Decreased by 0.35 %
- Est sale value
- 341,407.44 £Increased by 20.73 %
- Average area rental value
- 1,263.00 £/moIncreased by 3.52 %
- Est letting value
- 862.14 £/moUnchanged by 0.00 %
- Est rental Yield
- 3.80 %Increased by 3.83 %
- Crime Rate
- 22.00 %Unchanged by 0.00 %
Agent Activity
Morgan & Davies created the listing.
Nearby Schools
| Name | Type | Ofsted | Distance |
|---|---|---|---|
| Ysgol Llannon | Welsh Establishment | 0.69 KM | |
| Ysgol Gynradd Wirfoddol Myfenydd | Welsh Establishment | 5.67 KM | |
| Ysgol Ciliau Parc | Welsh Establishment | 7.84 KM | |
| Ysgol Gyfun Aberaeron | Welsh Establishment | 9.10 KM | |
| Ysgol Gynradd Aberaeron | Welsh Establishment | 9.98 KM |
Images
Nearby Streets
| Name | Average Price | Average Sqft | Distance |
|---|---|---|---|
| Bont Goch | £ 315,000 | 0 | 0.00 KM |
| Maes Albion Field | £ 295,000 | 0 | 0.00 KM |
| Portland Street | £ 0 | 0 | 0.00 KM |
| Heol-y-Dwr | £ 0 | 0 | 0.00 KM |
| Pen-y-Bryn Wernllaeth | £ 178,825 | 0 | 0.00 KM |
Nearby Listings
| Address | Price | Type | Score | Distance |
|---|---|---|---|---|
| Lon Cledan, Stad Craig Ddu, Llanon, SY23 | £ 255,000 | BUY | 6 / 10 | 0.00 KM |
| Stad Craig Ddu, Llanon, Ceredigion, SY23 | £ 360,000 | BUY | 7 / 10 | 0.05 KM |
| Heol Y Mor, Llanon, SY23 | £ 161,000 | BUY | Unknown | 0.07 KM |
| Stad Craig Ddu, Llanon, SY23 | £ 349,500 | BUY | 7 / 10 | 0.07 KM |
| Stad Craig Ddu, Llanon | £ 175,000 | BUY | 8 / 10 | 0.07 KM |
Nearby Properties
| Address | Price | Distance |
|---|---|---|
| 29 Stad Craig Ddu | £ 120,750 | 0.09 KM |
| 14 Stad Craig Ddu | £ 225,000 | 0.09 KM |
| 18 Stad Craig Ddu | £ 175,000 | 0.09 KM |
| 20 Stad Craig Ddu | £ 248,500 | 0.09 KM |
| 39 Stad Craig Ddu | £ 160,500 | 0.09 KM |