MC
Barton Way, Dartmouth, TQ6 0GN
By McCarthy Stone
£ 285,000
Reviews
2 out of 5 stars
McCarthy Stone says ..
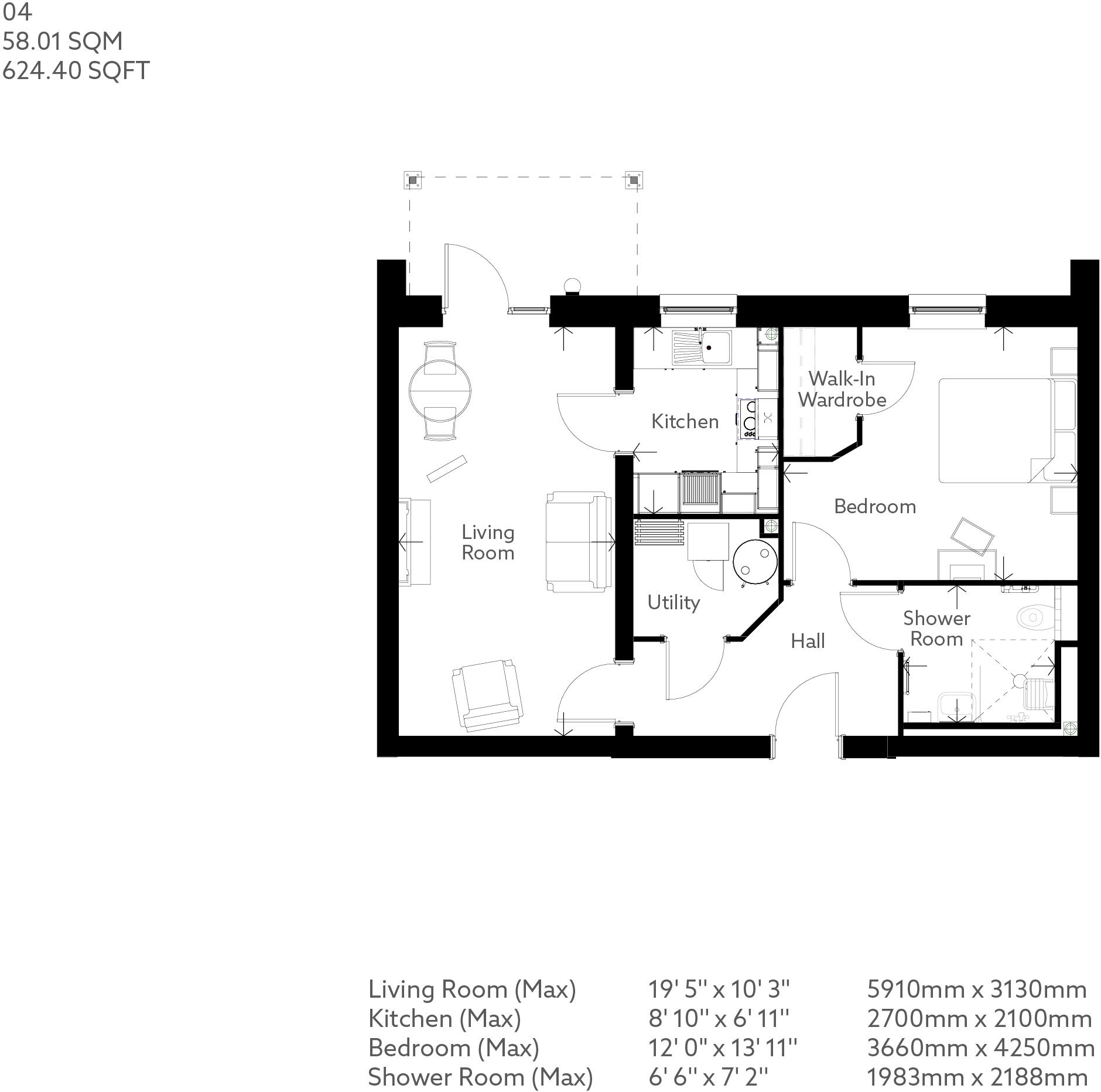
In a peaceful setting with views over lush, landscaped gardens, Apartment 4 is a beautiful apartment. This lovely property is designed with comfort and independence in mind with clever features to support you as you age.
Property Oracle says ..
Therefore, we give this property 5 / 10. *Disclaimer: This is our option and does constitute a recommendation or financial advice. Do your own research. *
- Price
- 5
- Condition
- 9
- Location
- 7
- Land
- 1
- Bedrooms
- 1
- Bathrooms
- 0
- Sqft (est)
- 475.22
The heatmap indicates the level of crime in the area. The color of the heatmap indicates the crime severity and recency.
Metrics Year-on-Year
- Average area value
- 831,571.00 £Increased by 59.88 %
- Est sale value
- 387,304.30 £Increased by 115.04 %
- Average area rental value
- 1,217.00 £/moDecreased by 4.92 %
- Est letting value
- 475.22 £/mo
- Est rental Yield
- 1.76 %Decreased by 40.34 %
- Crime Rate
- 0.00 %
from 520,136.00 £
from 180,108.38 £
from 1,280.00 £/mo
from 0.00 £/mo
from 2.95 %
from 0.00 %
Agent Activity
McCarthy Stone created the listing.
Nearby Schools
| Name | Type | Ofsted | Distance |
|---|---|---|---|
| Dartmouth Academy | Academy Sponsor Led | Good | 0.43 KM |
| Dartmouth & District Children'S Centre | Children's Centre | 0.51 KM | |
| St John The Baptist Roman Catholic Primary School, Dartmouth | Academy Converter | Good | 0.67 KM |
| Kingswear Community Primary School | Academy Converter | Good | 2.53 KM |
| Stoke Fleming Community Primary School | Academy Converter | 2.82 KM |
Images
Nearby Streets
| Name | Average Price | Average Sqft | Distance |
|---|---|---|---|
| Collingwood Road | £ 0 | 0 | 0.00 KM |
| Albert Place | £ 575,000 | 0 | 0.00 KM |
| Charles Street | £ 385,000 | 0 | 0.00 KM |
| Chapel Lane | £ 800,000 | 0 | 0.00 KM |
| Cox's Steps | £ 475,000 | 0 | 0.00 KM |
Nearby Listings
| Address | Price | Type | Score | Distance |
|---|---|---|---|---|
| Barton Way, Dartmouth, TQ6 0GN | £ 470,000 | BUY | 8 / 10 | 0.00 KM |
| Barton Way, Dartmouth, TQ6 0GN | £ 410,000 | BUY | 7 / 10 | 0.00 KM |
| Barton Way, Dartmouth, TQ6 0GN | £ 465,000 | BUY | 6 / 10 | 0.00 KM |
| Barton Way, Dartmouth, TQ6 0GN | £ 285,000 | BUY | 5 / 10 | 0.00 KM |
| Barton Way, Dartmouth, TQ6 0GN | £ 290,000 | BUY | 6 / 10 | 0.00 KM |
Nearby Properties
| Address | Price | Distance |
|---|---|---|
| 217 Victoria Road | £ 235,000 | 0.19 KM |
| 249 Victoria Road | £ 332,500 | 0.19 KM |
| 205 Victoria Road | £ 275,000 | 0.19 KM |
| 211 Victoria Road | £ 260,000 | 0.19 KM |
| 247 Victoria Road | £ 230,000 | 0.19 KM |