Severn Square, Cardiff, CF11
By British Homesellers
£ 525,000
Reviews
3 out of 5 stars
British Homesellers says ..
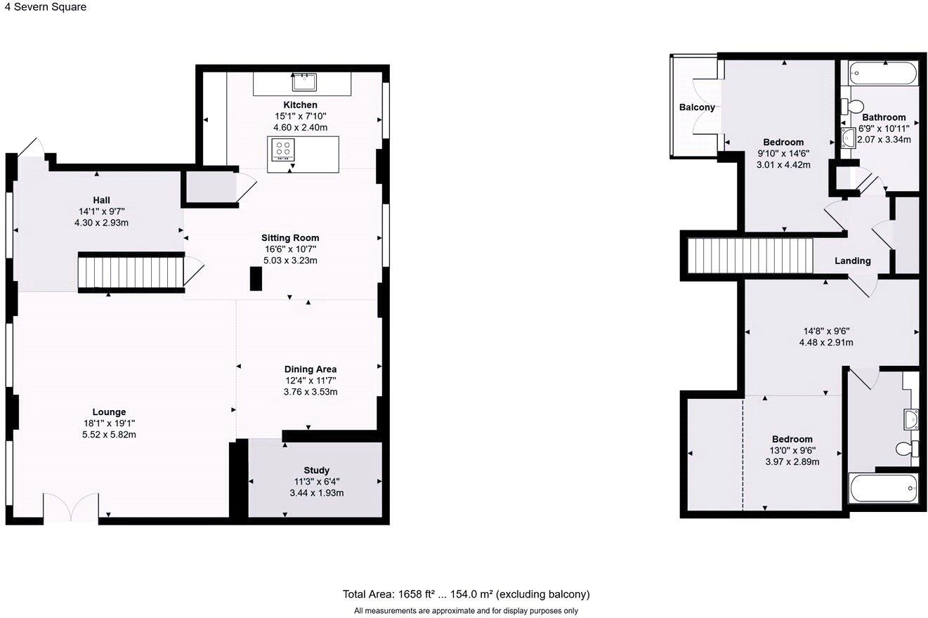
Tucked away in a quiet and well-maintained development in the heart of Cardiff, this impressive two-bedroom coach house offers a unique and spacious layout across a single level, combining style, practicality, and modern urban living. A rare opportunity in this sought-after area, the property is ...
Property Oracle says ..
Therefore, we give this property 6 / 10. *Disclaimer: This is our option and does constitute a recommendation or financial advice. Do your own research. *
- Price
- 8
- Condition
- 8
- Location
- 7
- Land
- 1
- Bedrooms
- 2
- Bathrooms
- 2
- Sqft (est)
- 1,657.64
The heatmap indicates the level of crime in the area. The color of the heatmap indicates the crime severity and recency.
Metrics Year-on-Year
- Average area value
- 277,018.00 £Decreased by 9.31 %
- Est sale value
- 663,056.00 £Increased by 21.95 %
- Average area rental value
- 1,179.00 £/moIncreased by 1.11 %
- Est letting value
- 1,657.64 £/moUnchanged by 0.00 %
- Est rental Yield
- 5.11 %Increased by 11.57 %
- Crime Rate
- 21.00 %Unchanged by 0.00 %
from 305,441.00 £
from 543,705.92 £
from 1,166.00 £/mo
from 1,657.64 £/mo
from 4.58 %
from 21.00 %
Agent Activity
British Homesellers created the listing.
Nearby Schools
| Name | Type | Ofsted | Distance |
|---|---|---|---|
| St Mary'S R.C. Primary School | Welsh Establishment | 0.17 KM | |
| Kitchener Primary School | Welsh Establishment | 0.43 KM | |
| Radnor Primary School | Welsh Establishment | 0.92 KM | |
| Ysgol Gymraeg Pwll Coch | Welsh Establishment | 1.47 KM | |
| Ninian Park Primary School | Welsh Establishment | 1.55 KM |
Images
Nearby Streets
| Name | Average Price | Average Sqft | Distance |
|---|---|---|---|
| Orchard Place | £ 285,000 | 0 | 0.00 KM |
| Gray Lane | £ 245,000 | 0 | 0.00 KM |
| Llandaff Road | £ 256,667 | 0 | 0.00 KM |
| Church Road | £ 130,000 | 0 | 0.00 KM |
| St John's Crescent | £ 162,500 | 0 | 0.00 KM |
Nearby Transport
| Name | NLC | TLC | Distance |
|---|---|---|---|
| Ninian Park | 3895 | NNP | 0.69 KM |
| Grangetown (Cardiff) | 3839 | GTN | 2.01 KM |
| Cardiff Central | 3899 | CDF | 2.40 KM |
| Cathays | 3820 | CYS | 2.46 KM |
| Cardiff Queen Street | 3900 | CDQ | 3.29 KM |
Nearby Listings
| Address | Price | Type | Score | Distance |
|---|---|---|---|---|
| Severn Square, Cardiff, CF11 | £ 525,000 | BUY | 6 / 10 | 0.00 KM |
| Severn Square, Cardiff | £ 500,000 | BUY | 6 / 10 | 0.01 KM |
| Severn Road, Cardiff | £ 225,000 | BUY | 7 / 10 | 0.06 KM |
| Severn Road, Canton, Cardiff | £ 475,000 | BUY | 7 / 10 | 0.07 KM |
| Orchard Place, Cardiff | £ 265,000 | BUY | 6 / 10 | 0.08 KM |
Nearby Properties
| Address | Price | Distance |
|---|---|---|
| 35 Severn Road | £ 265,000 | 0.03 KM |
| 37 Severn Road | £ 180,000 | 0.03 KM |
| 45 Severn Road | £ 196,250 | 0.03 KM |
| 25 Severn Road | £ 157,950 | 0.03 KM |
| 39 Severn Road | £ 195,000 | 0.03 KM |