The Crescents, Reydon, Southwold, Suffolk, IP18
By Winkworth
£ 375,000
Reviews
3 out of 5 stars
Winkworth says ..
Tucked away in a quiet, well-regarded cul-de-sac, this detached chalet house presents an excellent opportunity for those seeking a home that balances comfort, practicality and lifestyle appeal. Offered with vacant possession, it provides a wonderful blank canvas in which to create your perfect ho...
Property Oracle says ..
This detached property in Reydon presents an opportunity for buyers seeking a home with potential. While the property requires modernisation, it offers a good-sized living space, a well-maintained garden, and a desirable location near Southwold. The proximity to local schools and amenities makes it suitable for families, while the competitive list price reflects the need for renovation. With some investment, this property could be transformed into a modern and comfortable home.
Therefore, we give this property 6 / 10. *Disclaimer: This is our option and does constitute a recommendation or financial advice. Do your own research. *
- Price
- 7
- Condition
- 5
- Location
- 7
- Land
- 8
- Bedrooms
- 2
- Bathrooms
- 2
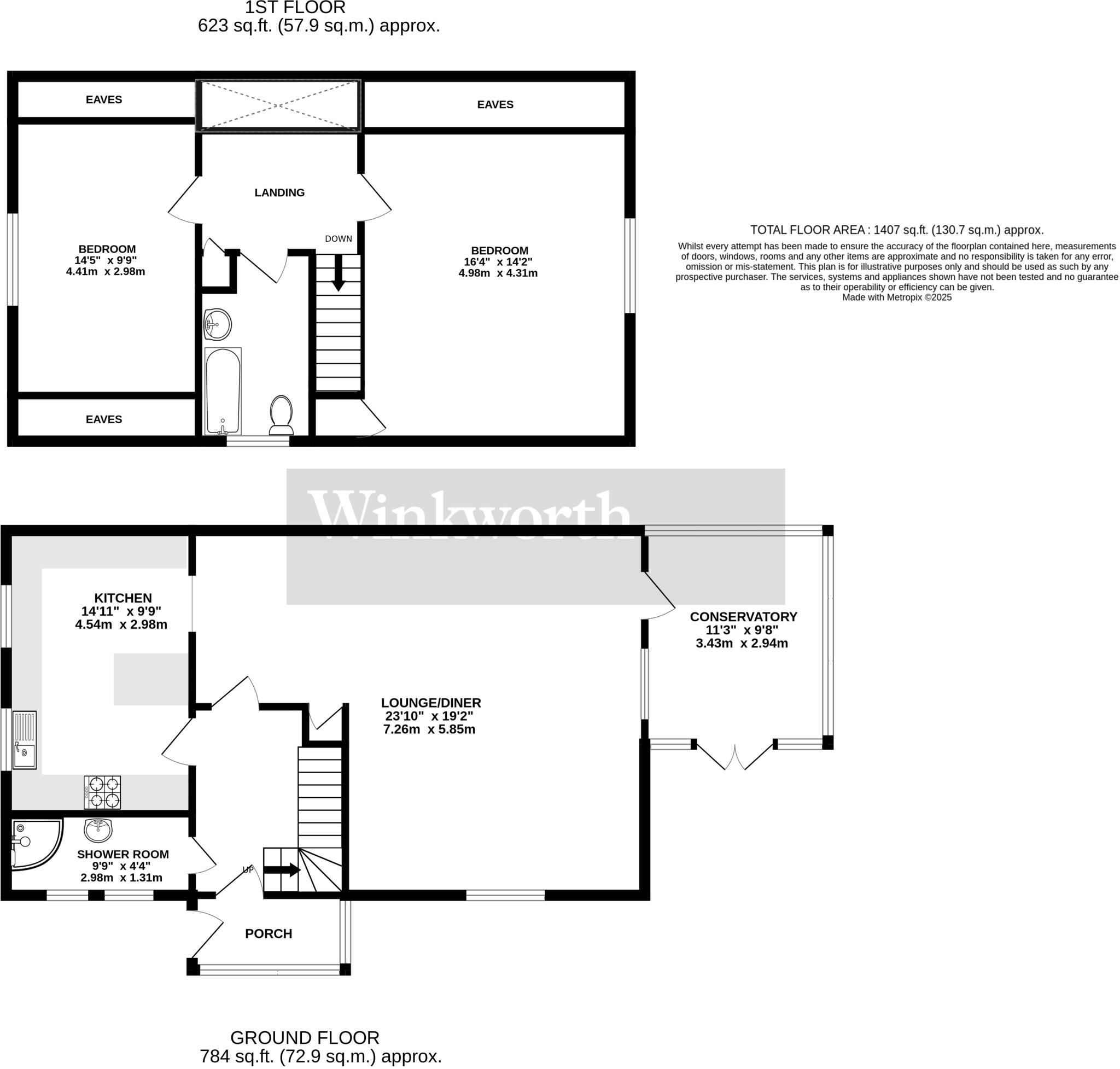
- Sqft (est)
- 1,407.00
The heatmap indicates the level of crime in the area. The color of the heatmap indicates the crime severity and recency.
Metrics Year-on-Year
- Average area value
- 867,500.00 £Increased by 41.91 %
- Est sale value
- 740,082.00 £Decreased by 2.77 %
- Average area rental value
- 980.00 £/moDecreased by 37.78 %
- Est letting value
- 0.00 £/moDecreased by 100.00 %
- Est rental Yield
- 1.36 %Decreased by 55.99 %
- Crime Rate
- 6.00 %Unchanged by 0.00 %
Agent Activity
Winkworth created the listing.
Nearby Schools
| Name | Type | Ofsted | Distance |
|---|---|---|---|
| Reydon Primary School | Academy Sponsor Led | Good | 0.39 KM |
| Saint Felix School | Other Independent School | 1.18 KM | |
| Southwold Primary School | Academy Sponsor Led | 2.07 KM | |
| The Old School | Other Independent School | 8.48 KM |
Images
Nearby Streets
| Name | Average Price | Average Sqft | Distance |
|---|---|---|---|
| Teal Close | £ 0 | 0 | 0.00 KM |
| Lakeside Close | £ 500,000 | 0 | 0.00 KM |
| Lupin Close | £ 722,500 | 0 | 0.00 KM |
| Hill Road | £ 475,000 | 0 | 0.00 KM |
| Winston Road | £ 0 | 0 | 0.00 KM |
Nearby Listings
| Address | Price | Type | Score | Distance |
|---|---|---|---|---|
| The Crescents, Reydon, Southwold, Suffolk, IP18 | £ 375,000 | BUY | 6 / 10 | 0.00 KM |
| Wangford Road, Reydon | £ 595,000 | BUY | Unknown | 0.18 KM |
| Windsor Road, Reydon, Southwold | £ 250,000 | BUY | 6 / 10 | 0.20 KM |
| Wangford Road, Reydon, Southwold, Suffolk, IP18 | £ 875,000 | BUY | Unknown | 0.24 KM |
| Wangford Road, Reydon, Southwold, Suffolk, IP18 | £ 800,000 | BUY | 8 / 10 | 0.28 KM |
Nearby Properties
| Address | Price | Distance |
|---|---|---|
| 13 The Crescents | £ 178,000 | 0.01 KM |
| 1 The Crescents | £ 234,000 | 0.01 KM |
| 23 The Crescents | £ 184,635 | 0.01 KM |
| 18 The Crescents | £ 175,000 | 0.01 KM |
| 11 The Crescents | £ 242,500 | 0.01 KM |