Collin Croft, Kendal, LA9
By Arnold Greenwood Estate Agents
£ 225,000
Reviews
3 out of 5 stars
Arnold Greenwood Estate Agents says ..
This two-bedroom cottage is a real gem, tucked away in a cobbled courtyard in one of Kendal's historic yards in the town centre, it provides the ideal ratio of charm to practicality.
Property Oracle says ..
Collin Croft is located in Kendal town centre, South Lakeland, Cumbria. The property benefits from being within close proximity to several highly-rated schools including South Lakes Academy (Good), Stramongate Primary School (Good), Ghyllside Primary School (Good), and Kendal Nursery School (Outstanding). All are within a 0.71km radius. Excellent transport links are also nearby, with Kendal train station just 1.18km away, offering connections to various destinations.
Based on the provided images, the property appears to be in good condition. The interior is well-maintained and presented, with a modern kitchen and bathroom. There is evidence of some minor cosmetic updates, suggesting the property has been recently improved. The property includes a small, manageable garden area.
The list price of £225,000 seems reasonable considering the location and condition. While the plot size is small, the property’s proximity to amenities and transport links in Kendal, coupled with its presented condition, makes it a potentially attractive option for buyers. However, a lack of comparable data from nearby properties (missing square footage) makes a precise price-per-square-foot comparison difficult. The nearby properties on Collin Croft itself show a wide range of prices, from £57,100 to £230,000, indicating significant variation in property values on the street. More detailed information on the size and features of these comparable properties would allow for a more precise assessment of the list price.
Therefore, we give this property 6 / 10. *Disclaimer: This is our option and does constitute a recommendation or financial advice. Do your own research. *
- Price
- 7
- Condition
- 8
- Location
- 9
- Land
- 3
- Bedrooms
- 2
- Bathrooms
- 1
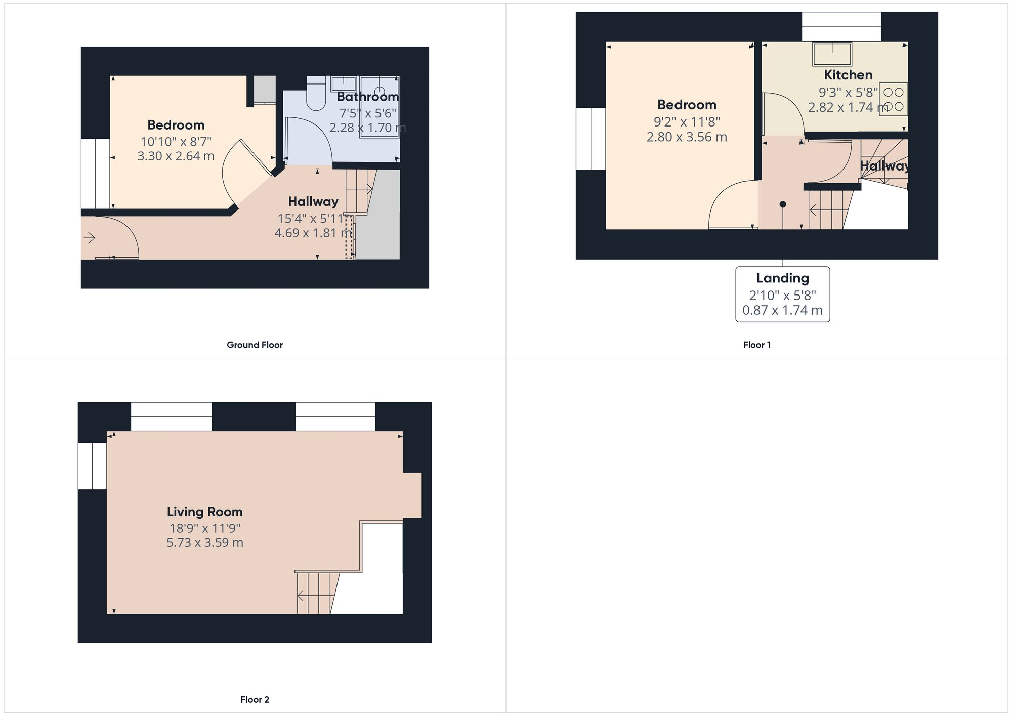
- Sqft (est)
- 732.42
The heatmap indicates the level of crime in the area. The color of the heatmap indicates the crime severity and recency.
Metrics Year-on-Year
- Average area value
- 603,889.00 £Increased by 40.02 %
- Est sale value
- 366,210.00 £Increased by 46.63 %
- Average area rental value
- 1,340.00 £/moIncreased by 1.44 %
- Est letting value
- 732.42 £/moUnchanged by 0.00 %
- Est rental Yield
- 2.66 %Decreased by 27.72 %
- Crime Rate
- 51.00 %Unchanged by 0.00 %
Agent Activity
Arnold Greenwood Estate Agents created the listing.
Nearby Schools
| Name | Type | Ofsted | Distance |
|---|---|---|---|
| South Lakes Academy | Other Independent Special School | Good | 0.18 KM |
| Stramongate Primary School | Academy Converter | Good | 0.61 KM |
| Ghyllside Primary School | Academy Converter | Good | 0.71 KM |
| Kendal Nursery School | Local Authority Nursery School | Outstanding | 0.71 KM |
| Kendal College | Further Education | Good | 0.94 KM |
Images
Nearby Streets
| Name | Average Price | Average Sqft | Distance |
|---|---|---|---|
| Sandes' Hospital Cottages | £ 142,500 | 0 | 0.00 KM |
| Angel Yard | £ 0 | 0 | 0.00 KM |
| Yard 77 | £ 0 | 0 | 0.00 KM |
| Cross View Yard | £ 0 | 0 | 0.00 KM |
| Yard 135 | £ 0 | 0 | 0.00 KM |
Nearby Transport
| Name | NLC | TLC | Distance |
|---|---|---|---|
| Kendal | 1976 | KEN | 1.18 KM |
| Burneside (Cumbria) | 1975 | BUD | 3.76 KM |
| Oxenholme Lake District | 2090 | OXN | 3.79 KM |
| Staveley (Cumbria) | 1977 | SVL | 9.50 KM |
Nearby Listings
| Address | Price | Type | Score | Distance |
|---|---|---|---|---|
| Collin Croft, Kendal, LA9 | £ 225,000 | BUY | 6 / 10 | 0.00 KM |
| Collin Croft, Kendal, LA9 | £ 250,000 | BUY | 7 / 10 | 0.07 KM |
| Websters Yard, Highgate, Kendal, Cumbria, LA9 | £ 130,000 | BUY | Unknown | 0.07 KM |
| 9 Websters Yard, Kendal, Cumbria LA9 4HA | £ 120,000 | BUY | Unknown | 0.07 KM |
| Websters Yard, Highgate, Kendal, LA9 | £ 85,000 | BUY | 6 / 10 | 0.07 KM |
Nearby Properties
| Address | Price | Distance |
|---|---|---|
| 7 Collin Croft | £ 150,000 | 0.03 KM |
| 10 Collin Croft | £ 160,000 | 0.03 KM |
| 5 Collin Croft | £ 230,000 | 0.03 KM |
| 8 Collin Croft | £ 57,100 | 0.03 KM |
| 18 Collin Croft | £ 169,000 | 0.06 KM |