Baxter Road, Royal Docks, London, E16
By Foxtons
£ 487,000
Reviews
3 out of 5 stars
Foxtons says ..
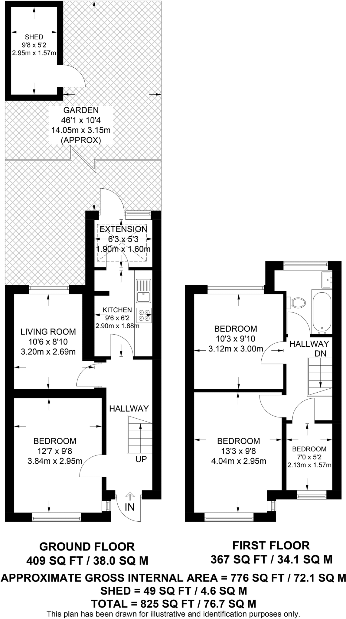
A charming 3-bedroom terraced house featuring a separate kitchen, bright reception room, sleek modern bathroom, generous storage space and a spacious rear garden with a shed.
Property Oracle says ..
Therefore, we give this property 6 / 10. *Disclaimer: This is our option and does constitute a recommendation or financial advice. Do your own research. *
- Price
- 7
- Condition
- 6
- Location
- 7
- Land
- 6
- Bedrooms
- 3
- Bathrooms
- 1
- Sqft (est)
- 825.00
The heatmap indicates the level of crime in the area. The color of the heatmap indicates the crime severity and recency.
Metrics Year-on-Year
- Average area value
- 547,500.00 £Increased by 30.58 %
- Est sale value
- 531,300.00 £Increased by 19.26 %
- Average area rental value
- 1,699.00 £/moDecreased by 9.14 %
- Est letting value
- 1,650.00 £/moUnchanged by 0.00 %
- Est rental Yield
- 3.72 %Decreased by 30.47 %
- Crime Rate
- 5.00 %Unchanged by 0.00 %
from 419,289.00 £
from 445,500.00 £
from 1,870.00 £/mo
from 1,650.00 £/mo
from 5.35 %
from 5.00 %
Agent Activity
Foxtons created the listing.
Nearby Schools
| Name | Type | Ofsted | Distance |
|---|---|---|---|
| Scott Wilkie Primary School | Academy Converter | 0.22 KM | |
| Royal Docks Academy | Academy Sponsor Led | Good | 0.28 KM |
| Jasper City School | Other Independent School | Requires improvement | 0.30 KM |
| Calverton Primary School | Community School | Good | 0.55 KM |
| St Joachim'S Catholic Primary School | Academy Converter | Good | 0.67 KM |
Images
Nearby Streets
| Name | Average Price | Average Sqft | Distance |
|---|---|---|---|
| Longmark Road | £ 0 | 0 | 0.00 KM |
| Sandstone Lane | £ 0 | 0 | 0.00 KM |
| Jersey Road | £ 0 | 0 | 0.00 KM |
| Goldcrest Close | £ 0 | 0 | 0.00 KM |
| Fleetwood Close | £ 229,000 | 0 | 0.00 KM |
Nearby Transport
| Name | NLC | TLC | Distance |
|---|---|---|---|
| Charlton | 5144 | CTN | 2.92 KM |
| Woolwich Dockyard | 5153 | WWD | 3.08 KM |
| Westcombe Park | 5151 | WCB | 3.75 KM |
| West Ham | 7474 | WEH | 3.91 KM |
| Woodgrange Park | 7467 | WGR | 4.18 KM |
Nearby Listings
| Address | Price | Type | Score | Distance |
|---|---|---|---|---|
| Baxter Road, Royal Docks, London, E16 | £ 487,000 | BUY | 6 / 10 | 0.00 KM |
| Baxter Road, London, E16 | £ 430,000 | BUY | 5 / 10 | 0.04 KM |
| Randolph Approach, London | £ 700,000 | BUY | 5 / 10 | 0.05 KM |
| Randolph Approach, London | £ 475,000 | BUY | 6 / 10 | 0.07 KM |
| Alnwick Road, Beckton, London, E16 | £ 325,000 | BUY | 7 / 10 | 0.12 KM |
Nearby Properties
| Address | Price | Distance |
|---|---|---|
| 109 Baxter Road | £ 62,995 | 0.03 KM |
| 137 Baxter Road | £ 250,000 | 0.03 KM |
| 133 Baxter Road | £ 203,000 | 0.03 KM |
| 135 Baxter Road | £ 245,000 | 0.03 KM |
| 131 Baxter Road | £ 370,000 | 0.03 KM |